Siège Suisse DOKA

Niederhasli (ZH)

Bau eines Bürogebäudes im Gewerbegebiet Niederhasli für den Schweizer Hauptsitz des Unternehmens DOKA.

Das Gebäude ist die erste Landmarke im Viertel und Teil der Entwicklung des Bahnhof-Areals Niederhasli. Es soll eine Verbindung zwischen dem Industriegebiet mit seinen Produktions- und Lagerhallen und einem zukünftigen Wohngebiet schaffen.

Das von CCHE entworfene Gebäude bietet seinen Nutzern zwei Büroetagen (1. und 2. Stock) sowie Gemeinschafts- und öffentliche Bereiche im Erdgeschoss mit einem Restaurant für alle DOKA-Mitarbeiter, ein Schulungszentrum mit Konferenzraum sowie die auf allen drei Ebenen offene Ausstellungshalle.

Die fünfte Dachfassade ist komplett mit Photovoltaik-Paneelen ausgestattet, um den Energiebedarf des Gebäudes und eines Teils der DOKA-Produktionsstätte zu decken.

Jahr

2021

Entwickelt von

CCHE Nyon SA
CCHE Lausanne SA

Bauherr

HIAG Immobilien Schweiz AG

Typologie

Büro, Restaurant und Konferenzsaal

Verfahren

Ausschreibungsverfahren

Realisierung

W. Schmid AG

Architecture de CCHE pour le siège suisse Doka
Architecture de CCHE pour le siège suisse Doka

Genau wie die von DOKA entwickelten Schalungsträger basiert auch das Tragwerk des Verwaltungsgebäudes auf diesem Konzept. Wir haben das Gebäude mit vertikalen Außenlamellen entworfen, an denen die beiden komplett verglasten Längsfassaden angebracht sind, um die Verbindung zwischen Wohnen und Industrie zu ermöglichen. Um dieses Erscheinungsbild zu betonen, sind die beiden Giebelfassaden und die inneren tragenden Querkonstruktionen aus zufällig gelochtem Sichtbeton gefertigt.

Architecture de CCHE pour le siège suisse Doka
Architecture de CCHE pour le siège suisse Doka
Architecture de CCHE pour le siège suisse Doka
Architecture de CCHE pour le siège suisse Doka
Architecture de CCHE pour le siège suisse Doka
Architecture de CCHE pour le siège suisse Doka
Architecture de CCHE pour le siège suisse Doka
Architecture de CCHE pour le siège suisse Doka
Architecture de CCHE pour le siège suisse Doka
Architecture de CCHE pour le siège suisse Doka
Architecture de CCHE pour le siège suisse Doka
Architecture de CCHE pour le siège suisse Doka
Architecture de CCHE pour le siège suisse Doka
Architecture de CCHE pour le siège suisse Doka
Architecture de CCHE pour le siège suisse Doka
Architecture de CCHE pour le siège suisse Doka
Architecture de CCHE pour le siège suisse Doka
Architecture de CCHE pour le siège suisse Doka
Architecture de CCHE pour le siège suisse Doka
Architecture de CCHE pour le siège suisse Doka
Architecture de CCHE pour le siège suisse Doka
Architecture de CCHE pour le siège suisse Doka
Architecture de CCHE pour le siège suisse Doka
Architecture de CCHE pour le siège suisse Doka
Architecture de CCHE pour le siège suisse Doka

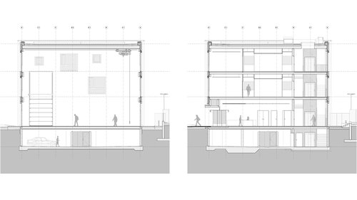
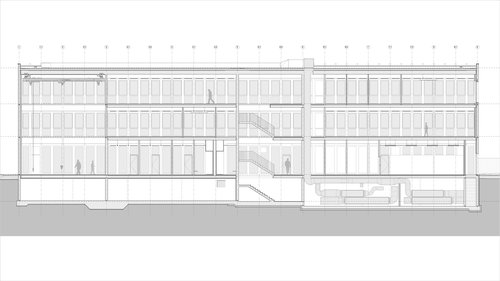
Längsschnitt, Querschnitt, Hauptfassade, Giebelfassade, Grundriss Stockwerk 2 und Grundriss Erdgeschoss

3D-Bilder des Projekts

Architecture de CCHE pour le siège Suisse Doka
Architecture de CCHE pour le siège Suisse Doka

Fassadenkonzept

Das ursprüngliche Konzept, basierte auf Doka-Strukturen (Balken), die vertikal verlegt wurden, um das Skelett des Gebäudes zu schaffen. Vorfertigung der äußeren Betonpfosten, die vor dem Verlegen der Bodenplatten aufgestellt werden. Um ein wenig Dynamik zu bieten, sind die Pfosten auf der Diagonale, die den Eingang markiert, gestutzt.

Projet d'architecture de CCHE pour le siège Suisse Doka
Projet d'architecture de CCHE pour le siège Suisse Doka
Projet : Siège Suisse DOKA - animation
Projet d'architecture de CCHE pour le siège Suisse Doka
Projet d'architecture de CCHE pour le siège Suisse Doka
Zurück zu Projekte