Quinta das Lavadeiras

Lisbonne, Portugal

Dans le cadre d’un concours portant sur la création d’un nouveau quartier résidentiel à Lisbonne, notre projet : Quinta das Lavadeiras, classé quatrième, propose une approche holistique du développement durable. Il explore un équilibre entre architecture, qualité de vie et respect de l’environnement à travers une série d’interventions complémentaires. Le bâtiment résidentiel proposé traduit sa rationalité et sa compacité par l'implantation d'un volume parallélépipédique unique qui couronne la ceinture de bâtiments résidentiels de Quinta das Lavadeiras.

L'espace public a été redessiné pour créer une zone communautaire accessible à tous les groupes d'âge, particulièrement axée sur le plaisir social et communautaire. Cette zone comprend l'aire de pique-nique située à côté du bâtiment et l'aire de jeux pour enfants, qui tire parti de la topographie existante pour créer différents niveaux de stimulation et de défi. Un mur de jeu est proposé pour unifier les deux zones, créant un élément sculptural continu qui sert de banc pour les enfants.

Parallèlement au réaménagement de l'espace communautaire, il est proposé d'augmenter l'espace vert le long de la promenade, créant ainsi un élément de protection et d'encadrement pour le développement des différentes activités, tout en augmentant la perméabilité et la qualité du paysage urbain. L'implantation irrégulière du bâtiment permet de différencier les accès, le niveau supérieur constituant l'entrée des logements, et le niveau inférieur l'accès à la zone commerciale et au parking - créant un système hiérarchique d'espaces publics entre les différentes activités et environnements, lui conférant, dans son ensemble, une autonomie de « quartier ».

Développé par

CCHE Porto Lda

Maître de l'ouvrage

Lisboa Ocidental SRU

Typologie

Quartier d'habitation

Programme

24 appartements
Espaces communs
Espaces verts

Procédure

Concours en procédure ouverte

Surface (SBP)

3'484 m²

Réalisation

CCHE Porto Lda

Architecture de CCHE pour Quinta das Lavadeiras à Lisbonne Portugal
Architecture de CCHE pour Quinta das Lavadeiras à Lisbonne Portugal
Architecture de CCHE pour Quinta das Lavadeiras à Lisbonne Portugal
Architecture de CCHE pour Quinta das Lavadeiras à Lisbonne Portugal
Architecture de CCHE pour Quinta das Lavadeiras à Lisbonne Portugal

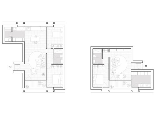
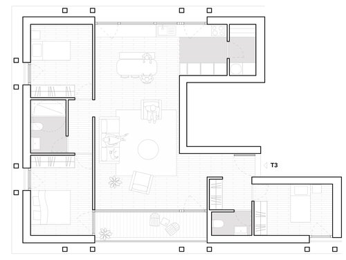
En révélant une volumétrie relativement étroite, le bâtiment a rendu compatible une transversalité généralisée des typologies, permettant une double orientation dans les zones principales de chaque appartement. Les appartements ont 2 ou 3 façades, positionnées de part et d'autre du bâtiment. L'exposition au soleil à des heures différentes dans le salon et la cuisine permet de transformer les deux espaces en un seul espace où les balcons ajoutent de l'espace extérieur à l'intérieur. C'est dans cet espace extérieur que l'on se rend compte qu'il y a un micromonde maximisé, grâce à l'amplitude spatiale des différentes pièces.

Architecture de CCHE pour Quinta das Lavadeiras à Lisbonne Portugal

Nous pensons à des bâtiments dont la consommation d'énergie est réduite et dont l'empreinte écologique est faible. Nous devenons durables en utilisant des systèmes à faible technicité : orientation du bâtiment ; géométrie, proportion des travées ; protection contre les conditions environnementales ; matériaux à bonne performance thermique ; ventilation naturelle, réflexion du rayonnement solaire direct, ombrage, refroidissement par évaporation, isolation thermique, inertie thermique et chauffage passif. Grâce à l'utilisation de sources renouvelables, nous réduisons la consommation de ressources naturelles par la rétention d'eau, la récupération de l'énergie solaire et la réutilisation des terrains locaux pour les aménagements extérieurs. La proportion des ouvertures est équilibrée, dimensionnée en fonction de la surface des compartiments et répétée sur les différents étages. Le choix des matériaux contribue à la longévité et à la durabilité de la solution, révélant une maintenance réduite du bâtiment. Nous proposons l'utilisation de matériaux et de techniques de construction à faible énergie intrinsèque, ce qui permet de réduire le temps et l'investissement financier associés aux matières premières, à l'équipement et à la main-d'œuvre.

Architecture de CCHE pour Quinta das Lavadeiras à Lisbonne Portugal

Plan étage type

Architecture de CCHE pour Quinta das Lavadeiras à Lisbonne Portugal
Architecture de CCHE pour Quinta das Lavadeiras à Lisbonne Portugal


Plans des appartements : 2,5, 3,5, 4,5 pièces

Architecture de CCHE pour Quinta das Lavadeiras à Lisbonne Portugal

Axonométrie éclatée

Architecture de CCHE pour Quinta das Lavadeiras à Lisbonne Portugal
Architecture de CCHE pour Quinta das Lavadeiras à Lisbonne Portugal


Plan d'implantation, Plan du rez-de-chaussée

Architecture de CCHE pour Quinta das Lavadeiras à Lisbonne Portugal

Répartition typologique

Retour aux projets