Quinta das Lavadeiras

Lissabon, Portugal

Im Rahmen eines Wettbewerbs zur Schaffung eines neuen Wohnviertels in Lissabon, bei dem Quinta das Lavadeiras den 4. Platz belegte, schlägt unser Projekt einen ganzheitlichen Ansatz für nachhaltige Entwicklung vor. Es erforscht ein Gleichgewicht zwischen Architektur, Lebensqualität und Umweltfreundlichkeit durch eine Reihe von sich ergänzenden Interventionen. Das vorgeschlagene Wohngebäude vermittelt seine Rationalität und Kompaktheit durch die Platzierung eines einzigen quaderförmigen Volumens, das den Gürtel der Wohngebäude von Quinta das Lavadeiras krönt.

Der öffentliche Raum wurde neugestaltet, um einen für alle Altersgruppen zugänglichen Gemeinschaftsbereich zu schaffen, der besonders auf das soziale und gemeinschaftliche Vergnügen ausgerichtet ist. Dieser Bereich umfasst den Picknickbereich neben dem Gebäude und den Kinderspielplatz, der die vorhandene Topografie nutzt, um verschiedene Ebenen der Stimulation und Herausforderung zu schaffen. Eine Spielwand wird vorgeschlagen, um die beiden Bereiche zu vereinen und ein durchgehendes skulpturales Element zu schaffen, das als Sitzbank für die Kinder dient.

Parallel zur Neugestaltung des Gemeinschaftsbereichs wird vorgeschlagen, die Grünfläche entlang der Promenade zu vergrößern und so ein schützendes und rahmendes Element für die Entwicklung der verschiedenen Aktivitäten zu schaffen, während gleichzeitig die Durchlässigkeit und Qualität der Stadtlandschaft erhöht wird. Die unregelmäßige Anordnung des Gebäudes ermöglicht unterschiedliche Zugänge, wobei die obere Ebene den Eingang zu den Wohnungen und die untere Ebene den Zugang zum Geschäftsbereich und zum Parkplatz darstellt - so wird ein hierarchisches System öffentlicher Räume zwischen den verschiedenen Aktivitäten und Umgebungen geschaffen, das dem Gebäude insgesamt die Autonomie eines „Viertels“ verleiht.

Entwickelt von

CCHE Porto Lda

Bauherr

Lisboa Ocidental SRU

Typologie

Wohnviertel

Programm

24 Wohnungen
Gemeinschaftsräume
Grünflächen

Verfahren

Wettbewerb im offenen Verfahren

Geschossfläche (BGF)

3'484 m²

Realisierung

CCHE Porto Lda

Architecture de CCHE pour Quinta das Lavadeiras à Lisbonne Portugal
Architecture de CCHE pour Quinta das Lavadeiras à Lisbonne Portugal
Architecture de CCHE pour Quinta das Lavadeiras à Lisbonne Portugal
Architecture de CCHE pour Quinta das Lavadeiras à Lisbonne Portugal
Architecture de CCHE pour Quinta das Lavadeiras à Lisbonne Portugal

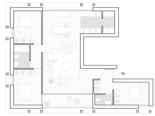
Durch die Enthüllung einer schmalen Volumetrie machte das Gebäude eine allgemeine Transversalität der Typologien kompatibel, die eine doppelte Orientierung in den Hauptbereichen jeder Wohnung ermöglicht. Die Wohnungen haben 2 oder 3 Fassaden, die auf beiden Seiten des Gebäudes positioniert sind. Die Sonneneinstrahlung zu unterschiedlichen Zeiten im Wohnzimmer und in der Küche ermöglicht, die beiden Räume in einen einzigen Raum zu verwandeln, in dem die Balkone dem Innenraum einen Außenraum hinzufügen. In diesem Außenraum wird man sich bewusst, dass es eine maximierte Mikrowelt gibt, die durch die räumliche Amplitude der verschiedenen Räume entsteht.

Architecture de CCHE pour Quinta das Lavadeiras à Lisbonne Portugal

Wir denken an Gebäude, die weniger Energie verbrauchen und einen geringen ökologischen Fußabdruck haben. Wir werden nachhaltig, indem wir Low-Tech-Systeme verwenden : Gebäudeausrichtung ; Geometrie, Feldproportionen ; Schutz vor Umweltbedingungen ; Materialien mit guter Wärmeleistung ; natürliche Belüftung, Reflexion direkter Sonnenstrahlung, Beschattung, Verdunstungskühlung, Wärmedämmung, thermische Trägheit und passives Heizen. Durch die Nutzung erneuerbarer Quellen reduzieren wir den Verbrauch natürlicher Ressourcen durch Wasserrückhaltung, die Nutzung von Sonnenenergie und die Wiederverwendung lokaler Grundstücke für die Außenanlagen. Das Verhältnis der Öffnungen ist ausgewogen, entsprechend der Fläche der Abteile dimensioniert und wiederholt sich auf den verschiedenen Stockwerken. Die Wahl der Materialien trägt zur Langlebigkeit und Nachhaltigkeit der Lösung bei und offenbart einen geringen Wartungsaufwand für das Gebäude. Wir schlagen die Verwendung von Materialien und Bautechniken mit niedriger intrinsischer Energie vor, wodurch der mit Rohstoffen, Ausrüstung und Arbeitskraft verbundene Zeit- und Kostenaufwand reduziert wird.

Architecture de CCHE pour Quinta das Lavadeiras à Lisbonne Portugal

Grundriss Muster-Stockwerk

Architecture de CCHE pour Quinta das Lavadeiras à Lisbonne Portugal
Architecture de CCHE pour Quinta das Lavadeiras à Lisbonne Portugal

Grundrisse der Wohnungen : 2,5, 3,5, 4,5 Zimmer

Architecture de CCHE pour Quinta das Lavadeiras à Lisbonne Portugal

Axonometrie nach Explosionszeichnung

Architecture de CCHE pour Quinta das Lavadeiras à Lisbonne Portugal
Architecture de CCHE pour Quinta das Lavadeiras à Lisbonne Portugal

Lageplan, Grundriss des Erdgeschosses

Architecture de CCHE pour Quinta das Lavadeiras à Lisbonne Portugal

Typologische Aufteilung

Zurück zu Projekte