Quinta das Lavadeiras

Lisbon, Portugal

As part of a competition to create a new residential district in Lisbon, our project, Quinta das Lavadeiras, which ranked fourth, proposes a holistic approach to sustainable development. It explores a balance between architecture, quality of life and respect for the environment through a series of complementary interventions. The proposed residential building translates its rationality and compactness with the implantation of a single parallelepiped volume that tops off the belt of residential buildings at Quinta das Lavadeiras.

The public space has been redesigned to create a community area accessible to all age groups, especially geared towards social and community enjoyment. This area incorporates the picnic area next to the building and the children's play area, which takes advantage of the existing topography to create different levels of stimulation and challenge. A play wall is proposed to unify the two areas, creating a continuous, sculptural element that serves as a bench for children to play on.

Alongside the redesign of the community area, it is proposed to increase the green area along the promenade, creating an element of protection and framing for the development of the various activities, while increasing the permeability and quality of the urban landscape. The building's uneven layout makes it possible to differentiate the accesses, with the upper level establishing the entrance to the housing, and the lower level the access to the commercial area and car parking - creating a hierarchical system of public spaces between different activities and surroundings, giving it, as a whole, a “neighborhood” autonomy.

Developed by

CCHE Porto Lda

Client

Lisboa Ocidental SRU

Typology

Residential area

Program

24 Apartments
Common areas
Landscape areas

Procedure

Open competition

Floor area (GFA)

3'484 m²

Realization

CCHE Porto Lda

Architecture de CCHE pour Quinta das Lavadeiras à Lisbonne Portugal
Architecture de CCHE pour Quinta das Lavadeiras à Lisbonne Portugal
Architecture de CCHE pour Quinta das Lavadeiras à Lisbonne Portugal
Architecture de CCHE pour Quinta das Lavadeiras à Lisbonne Portugal
Architecture de CCHE pour Quinta das Lavadeiras à Lisbonne Portugal

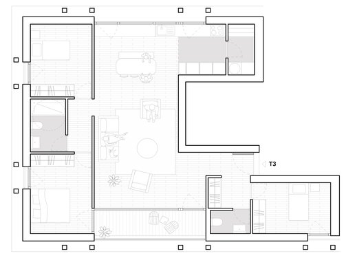
By revealing a relatively narrow volumetry, the building has made a generalized transversality of typologies compatible, allowing dual orientation in the prime areas of each apartment. The apartments have 2 or 3 fronts, positioned on both sides of the building. The exposure to the sun at different times in the living room and kitchen allows both spaces to be transformed into a single space where the balconies add exterior space to the interior. It is in this outdoor space that we realize that there is a maximized microworld, through the spatial amplitude of the different rooms.

Architecture de CCHE pour Quinta das Lavadeiras à Lisbonne Portugal

We think about buildings with reduced energy consumption and a low ecological footprint. We become sustainable, as we use low-tech systems : building orientation ; Geometry, proportion of spans ; Protection against environmental conditions ; Materials with good thermal performance ; Natural ventilation, reflection of direct solar radiation, shading, evaporative cooling, thermal insulation, thermal inertia and passive heating. With the use of renewable sources, we reduce the consumption of natural resources through water retention, recovery of solar energy and the reuse of local land for outdoor arrangements. The proportion of the openings is balanced, sized according to the area of the compartments and repeated on the various floors. The choice of materials contributes to the longevity and sustainability of the solution, revealing reduced building maintenance. We propose the use of materials and construction techniques with low embodied energy, allowing the reduction of time and financial investment, associated with raw materials, equipment and labor.

Architecture de CCHE pour Quinta das Lavadeiras à Lisbonne Portugal

Typical floor plan

Architecture de CCHE pour Quinta das Lavadeiras à Lisbonne Portugal
Architecture de CCHE pour Quinta das Lavadeiras à Lisbonne Portugal


Plans of flats: 2.5, 3.5, 4.5 rooms

Architecture de CCHE pour Quinta das Lavadeiras à Lisbonne Portugal

Exploded Axonometry

Architecture de CCHE pour Quinta das Lavadeiras à Lisbonne Portugal
Architecture de CCHE pour Quinta das Lavadeiras à Lisbonne Portugal


Site plan, Ground floor plan

Architecture de CCHE pour Quinta das Lavadeiras à Lisbonne Portugal

Typological Distribution

Back to projects