NSP Schenk

Rolle

Projet de construction d'un nouveau site de production vinicole pour l'entreprise Schenk

L’entreprise viticole Schenk souhaite développer un nouveau site de production regroupant l’ensemble de ses activité, en parallèle du développement d’un quartier mixte au nord de la gare de Rolle, pour lequel CCHE avait obtenu le 1er prix du mandat d'étude parallèle MEP Gare Nord - Schenk à Rolle.

Ce projet, basé sur une volumétrie et un process interne déjà développés et pilotés par le bureau MPAIC depuis quelques années, redéfinit le concept de design des façades, des aménagements des bureaux et d'un magasin de vente en collaboration avec ce bureau. Il prévoit en outre de passer d'une consommation du site actuel de 267'000 litres de mazout à seulement 54'000 m3 de gaz naturel. L'expression architecturale en équilibre entre tradition et technologie, propre au travail à la vigne et à l'élevage du vin en cave, a été développée en mêlant matériaux d'aspect naturel comme le bois à d'autres de lecture plus industrielle comme le métal.

Notre intervention porte également sur le développement architectural et constructif général du NSP et du dessin d'architecture BIM participatif, dans la phase de projet de l'ouvrage puis celle de demande d'autorisation de construire, ainsi que sur les appels d'offres des corps architecturaux de l'ouvrage.

Année

2020

Développé par

CCHE Nyon SA

Maître de l'ouvrage

Schenk SA

Typologie

Nouvelle construction

Programme

Outil de production vinicole complet, de la réception des vendanges au stockage et à l'expédition du vin produit
Bureaux
Magasin de vente

Surface (SBP)

31'300 m2

Volume (SIA)

271'000 m3

Mandat

Projet

Collaboration

MPAIC

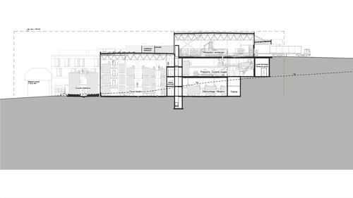
Architecture de CCHE pour le projet NSP Schenk Suisse
Architecture de CCHE pour le projet NSP Schenk Suisse
Architecture de CCHE pour le projet NSP Schenk Suisse
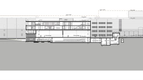
Architecture de CCHE pour le projet NSP Schenk Suisse
Architecture de CCHE pour le projet NSP Schenk Suisse
Architecture de CCHE pour le projet NSP Schenk Suisse
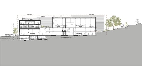
Architecture de CCHE pour le projet NSP Schenk Suisse
Architecture de CCHE pour le projet NSP Schenk Suisse
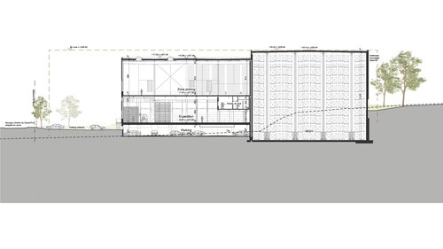
Projet d'Architecture d'intérieur de CCHE pour le projet NSP Schenk Suisse
Projet d'Architecture d'intérieur de CCHE pour le projet NSP Schenk Suisse
Projet d'Architecture d'intérieur de CCHE pour le projet NSP Schenk Suisse
Retour aux projets