NSP Schenk

Rolle

Bauprojekt für eine neue Weinproduktionsstätte des Unternehmens Schenk

Das Weinunternehmen Schenk möchte eine neue Produktionsstätte entwickeln, in der alle seine Aktivitäten zusammengefasst werden. Dies soll parallel zur Entwicklung eines gemischten Viertels nördlich des Bahnhofs von Rolle geschehen, für das CCHE den ersten Preis des Mandats für eine Parallelstudie MEP Gare Nord - Schenk in Rolle erhalten hatte.

Dieses Projekt, das auf einer Volumetrie und einem internen Prozess basiert, die bereits seit einigen Jahren vom Büro MPAIC entwickelt und gesteuert werden, definiert das Konzept für die Gestaltung der Fassaden, die Einrichtung der Büros und eines Verkaufsgeschäfts in Zusammenarbeit mit diesem Büro neu. Außerdem soll der Verbrauch des derzeitigen Standorts von 267.000 Litern Heizöl auf nur 54.000 m3 Erdgas gesenkt werden. Der architektonische Ausdruck im Gleichgewicht zwischen Tradition und Technologie, die der Arbeit im Weinberg und dem Reifungsprozess des Weins im Keller eigen ist, wurde entwickelt, indem natürlich aussehende Materialien wie Holz mit anderen, eher industriell geprägten Materialien wie Metall vermischt wurden.

Unsere Beteiligung bezieht sich auch auf die allgemeine architektonische und konstruktive Entwicklung des NSP und der partizipativen Architekturzeichnung BIM in der Entwurfsphase des Bauwerks und anschließend in der Phase des Baugenehmigungsantrags sowie auf die Ausschreibungen der Architekturkörper des Bauwerks.

Jahr

2020

Entwickelt von

CCHE Nyon SA

Bauherr

Schenk SA

Typologie

Neubau

Programm

Komplettes Produktionswerkzeug für Wein, von der Annahme der Weinlese bis zur Lagerung und zum Versand des produzierten Weins
Büroräume
Verkaufsgeschäft

Geschossfläche (BGF)

31'300 qm

Volumen (SIA)

71'000 m3

Auftrag

Projekt

Zusammenarbeit

MPAIC

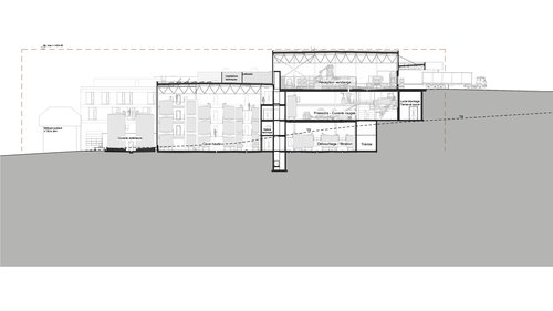
Architecture de CCHE pour le projet NSP Schenk Suisse
Architecture de CCHE pour le projet NSP Schenk Suisse
Architecture de CCHE pour le projet NSP Schenk Suisse
Architecture de CCHE pour le projet NSP Schenk Suisse
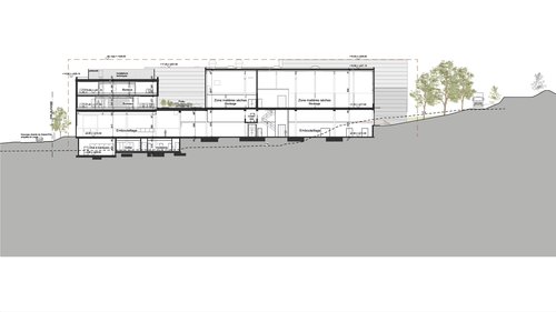
Architecture de CCHE pour le projet NSP Schenk Suisse
Architecture de CCHE pour le projet NSP Schenk Suisse
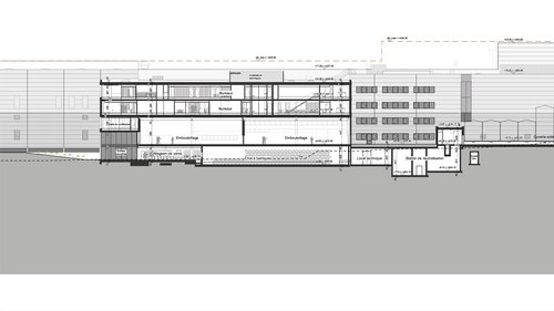
Architecture de CCHE pour le projet NSP Schenk Suisse
Architecture de CCHE pour le projet NSP Schenk Suisse
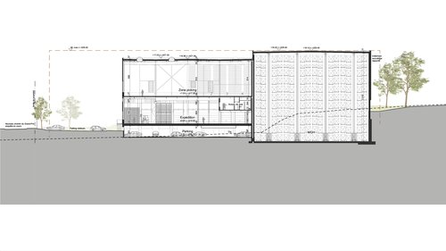
Projet d'Architecture d'intérieur de CCHE pour le projet NSP Schenk Suisse
Projet d'Architecture d'intérieur de CCHE pour le projet NSP Schenk Suisse
Projet d'Architecture d'intérieur de CCHE pour le projet NSP Schenk Suisse
Zurück zu Projekte