Les Logis de Pampigny

Pampigny

Situés en plein centre du village, à proximité des commodités (transports publics, commerces, école, restaurants, ...), les Logis de Pampigny s'intègrent en parfaite harmonie à l'architecture locale. Le projet tire parti de la topographie du site en allant chercher les ouvertures et les dégagements sur cet environnement magnifique. L'ensemble est composé de quatre immeubles à taille humaine. Les 41 logements, allant du studio au 4.5 pièces, offrent des volumes spacieux, complétés par des balcons ou terrasses généreux et un parking sous-terrain. La qualité de construction et des finitions (haut de gamme, avec domotique) garantit des logements modernes, adaptés aux plus exigeants. Les bâtiments sont équipés de panneaux solaires, respectent le standard de construction Minergie et intègrent une solution domotique.

Année

2020

Développé par

CCHE Lausanne SA

Maître de l'ouvrage

L'Habitat de Pampigny Centre SA

Typologie

Quartier d'habitation

Procédure

Appel d'offres

Programme

41 logements

Surface (SBP)

3'825 m2

Volume (SIA)

12'772 m3

Réalisation

CCHE Lausanne SA

Architecture de CCHE pour les Logis de Pampigny Suisse

Plan aménagements extérieurs

Architecture de CCHE pour les Logis de Pampigny Suisse
Architecture de CCHE pour les Logis de Pampigny Suisse
Architecture de CCHE pour les Logis de Pampigny Suisse
Architecture de CCHE pour les Logis de Pampigny Suisse
Architecture de CCHE pour les Logis de Pampigny Suisse
Architecture de CCHE pour les Logis de Pampigny Suisse
Architecture de CCHE pour les Logis de Pampigny Suisse
Architecture de CCHE pour les Logis de Pampigny Suisse
Architecture de CCHE pour les Logis de Pampigny Suisse

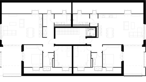
Plans

Echelle 1:100

Architecture de CCHE pour les Logis de Pampigny Suisse

Façade Nord-Est

Architecture de CCHE pour les Logis de Pampigny Suisse

Façade Nord-Ouest

Architecture de CCHE pour les Logis de Pampigny Suisse

Façade Sud-Est

Architecture de CCHE pour les Logis de Pampigny Suisse

Façade Sud-Ouest

Architecture de CCHE pour les Logis de Pampigny Suisse
Architecture de CCHE pour les Logis de Pampigny Suisse
Architecture de CCHE pour les Logis de Pampigny Suisse

Rez-de-chaussée, 1er étage, Combles

Retour aux projets