Le Petit Vignoble

Vich

Construction de deux immeubles d'habitations Minergie en entrée de village, avec parking souterrain commun

A l'orée du village, entre parcelles agricoles et zone bâtie, les deux bâtiments Minergie marquent l'entrée de Vich.

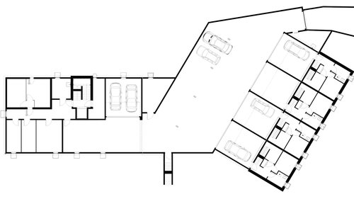
L'implantation des bâtiments met en valeur cette situation particulière et stratégique. Le bâtiment de biais, au sud, accueille le visiteur, et se tourne vers les champs, le lac et les montagnes. Il se libère de la logique d’implantation du village parallèle à la route, marquant la fin de ce système, dans lequel s'inscrit l’autre bâtiment. Bordant la route dans le prolongement du bâti existant, il dialogue avec le premier, et marque cette transition. Les toitures à quatre pans accentuent l'unité et l'homogénéité du projet, qui se concentre sur la partie sud de la parcelle, afin de conserver la vigne existante au nord, caracteristique forte de la région.

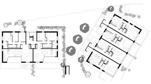
Les typologies répondent également au contexte. Le bâtiment le long de la route accueille cinq appartements, organisés autour de confortables loggias, au sud-ouest. L'autre bâtiment est composé de quatre villas contiguës, s'ouvrant sur la verdure et le verger voisin, et tournées vers les Alpes, au sud.

La parcelle est libérée du stationnement automobile par un vaste parking souterrain commun aux deux bâtiments, judicieusement conçu afin d’offrir un accès direct à chaque villa et au bâtiment d’appartements. Outre l'attention particulière portée aux aménagements extérieurs, cette configuration permet de dégager, entre les deux bâtiments, un agréable espace partagé, offert à l'appropriation des habitants. Les appartements tout comme les villas conservent leur privacité, avec leurs généreux jardins favorablement orientés.

Année

2016

Développé par

CCHE Nyon SA

Maître de l'ouvrage

Client privé

Typologie

Construction

Programme

4 maisons contigües et 5 appartements Minergie

Surface (SBP)

1'300 m²

Volume (SIA)

7'500 m³

Réalisation

CCHE Nyon SA

Architecture et réalisation du quartier Le Petit Vignoble à Vich Suisse
Architecture et réalisation du quartier Le Petit Vignoble à Vich Suisse
Architecture et réalisation du quartier Le Petit Vignoble à Vich Suisse
Architecture et réalisation du quartier Le Petit Vignoble à Vich Suisse
Architecture et réalisation du quartier Le Petit Vignoble à Vich Suisse
Architecture et réalisation du quartier Le Petit Vignoble à Vich Suisse
Architecture et réalisation du quartier Le Petit Vignoble à Vich Suisse
Architecture et réalisation du quartier Le Petit Vignoble à Vich Suisse
Architecture et réalisation du quartier Le Petit Vignoble à Vich Suisse
Architecture et réalisation du quartier Le Petit Vignoble à Vich Suisse
Architecture et réalisation du quartier Le Petit Vignoble à Vich Suisse
Retour aux projets