Le Petit Vignoble

Vich

Bau von zwei Minergie-Wohngebäuden am Dorfeingang, mit gemeinsamer Tiefgarage

Am Rande des Dorfes, zwischen landwirtschaftlichen Parzellen und bebautem Gebiet, markieren die beiden Minergie-Gebäude den Eingang von Vich.

Die Anordnung der Gebäude hebt diese besondere und strategische Lage hervor. Das schräge Gebäude im Süden empfängt den Besucher und blickt auf die Felder, den See und die Berge. Es befreit sich von der Logik, das Dorf parallel zur Straße zu errichten und markiert das Ende dieses Systems, in das sich das andere Gebäude einfügt. Da es die Straße in Verlängerung der bestehenden Bebauung säumt, tritt es in einen Dialog mit der ersten und markiert diesen Übergang. Die vierseitigen Dächer betonen die Einheit und Homogenität des Projekts, das sich auf den südlichen Teil des Grundstücks konzentriert, um die bestehenden Weinberge im Norden zu erhalten, die ein starkes Merkmal der Region sind.

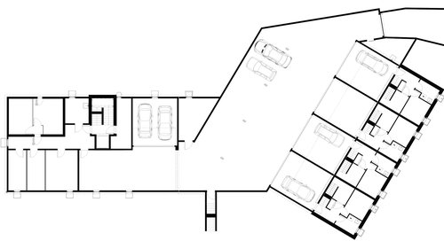
Auch die Typologien entsprechen dem Kontext. Das Gebäude entlang der Straße beherbergt fünf Wohnungen, die um komfortable Loggien im Südwesten organisiert sind. Das andere Gebäude besteht aus vier aneinandergrenzenden Villen, die sich zum Grün und zum benachbarten Obstgarten hin öffnen und im Süden den Alpen zugewandt sind.

Das Grundstück wird durch eine große gemeinsame Tiefgarage für beide Gebäude vom Auto-Parken befreit. Die Tiefgarage ist klug konzipiert, um einen direkten Zugang zu jeder Villa und dem Apartmentgebäude zu ermöglichen. Neben der besonderen Aufmerksamkeit, die den Außenanlagen gewidmet wurde, ermöglicht diese Konfiguration, zwischen den beiden Gebäuden einen gemeinsamen Raum zu schaffen, den sich die Bewohner aneignen können. Sowohl die Wohnungen als auch die Villen behalten ihre Privatsphäre mit ihren großzügigen, günstig ausgerichteten Gärten.

Jahr

2016

Entwickelt von

CCHE Nyon SA

Bauherr

Privatkunde

Typologie

Aufbau

Programm

4 Reihenhäuser und 5 Minergie-Wohnungen

Geschossfläche (BGF)

1'300 qm

Volumen (SIA)

7'500 m³

Realisierung

CCHE Nyon SA

Architecture et réalisation du quartier Le Petit Vignoble à Vich Suisse
Architecture et réalisation du quartier Le Petit Vignoble à Vich Suisse
Architecture et réalisation du quartier Le Petit Vignoble à Vich Suisse
Architecture et réalisation du quartier Le Petit Vignoble à Vich Suisse
Architecture et réalisation du quartier Le Petit Vignoble à Vich Suisse
Architecture et réalisation du quartier Le Petit Vignoble à Vich Suisse
Architecture et réalisation du quartier Le Petit Vignoble à Vich Suisse
Architecture et réalisation du quartier Le Petit Vignoble à Vich Suisse
Architecture et réalisation du quartier Le Petit Vignoble à Vich Suisse
Architecture et réalisation du quartier Le Petit Vignoble à Vich Suisse
Architecture et réalisation du quartier Le Petit Vignoble à Vich Suisse
Zurück zu Projekte