Hôtel des Horlogers

Le Brassus

Hôtel des Horlogers : un lieu en osmose avec son environnement

Inspiré par la vallée de Joux, le tout nouvel Hôtel des Horlogers a récemment ouvert ses portes. Ce projet a été conçu par BIG (Bjarke Ingels Group) et réalisé par CCHE, les deux partenaires qui avait déjà signé le Musée Atelier Audemars Piguet situé à quelques pas de là.

Grâce à un concept et une architecture avant-gardiste, le bâtiment suit la topographie de la Vallée et se mélange à la nature pour plonger les visiteurs dans l’environnement naturel du lieu. La structure est constituée de dalles qui s’avancent en zigzags vers la Vallée et s’inclinent légèrement pour embrasser le relief et créer un chemin continu dans la nature. Ce concept appréhende le site comme une série de crêtes montagneuses descendant la colline, où les blocs du bâtiment sont une série de bermes bordées d’arbres et de végétaux variés. Les aménagements intérieurs sont signés par l’agence AUM, qui a développé un concept entrelaçant qualité, confort et convivialité, et faisant la part belle au matériaux locaux tels que le bois et la pierre.

Année

2022

Développé par

Consortium BIG (Bjarke Ingels Group) / CCHE Lausanne SA, Architecture d'intérieur: AUM Pierre Minassian

Maître de l'ouvrage

Manufacture d'Horlogerie Audemars Piguet SA, Le Brassus

Programme

Boutique Hotel, 50 chambres dont 12 suites, salles de conférences, lobby, 2 restaurants, bar et espace bien-être

Surface (SBP)

6'300 m²

Volume (SIA)

30'000 m³

Collaboration

BIG

Réalisation

CCHE

Réalisation de CCHE de l’Hôtel des Horlogers Le Brassus Suisse
Réalisation de CCHE de l’Hôtel des Horlogers Le Brassus Suisse
Réalisation de CCHE de l’Hôtel des Horlogers Le Brassus Suisse
Réalisation de CCHE de l’Hôtel des Horlogers Le Brassus Suisse
Réalisation de CCHE de l’Hôtel des Horlogers Le Brassus Suisse
Actualité de CCHE pour Retour en image sur le chantier de l’Hôtel des Horlogers Le Brassus Suisse
Actualité de CCHE pour Retour en image sur le chantier de l’Hôtel des Horlogers Le Brassus Suisse
Actualité de CCHE pour Retour en image sur le chantier de l’Hôtel des Horlogers Le Brassus Suisse
Actualité de CCHE pour Retour en image sur le chantier de l’Hôtel des Horlogers Le Brassus Suisse
Actualité de CCHE pour Retour en images sur le chantier de l’Hôtel des Horlogers Le Brassus Suisse
Actualité de CCHE pour Retour en image sur le chantier de l’Hôtel des Horlogers Le Brassus Suisse
Actualité de CCHE pour Retour en image sur le chantier de l’Hôtel des Horlogers Le Brassus Suisse
Actualité de CCHE pour Retour en image sur le chantier de l’Hôtel des Horlogers Le Brassus Suisse
Actualité de CCHE pour Retour en image sur le chantier de l’Hôtel des Horlogers Le Brassus Suisse
Actualité de CCHE pour Retour en images sur le chantier de l’Hôtel des Horlogers Le Brassus Suisse

Concept d'architecture

BIG (Bjarke Ingels Group)

Réalisation: CCHE

Réalisation de CCHE Hôtel des Horlogers Suisse
Réalisation de CCHE pour l'hôtel des horlogers Suisse
Hôtel des horlogers - animation schéma

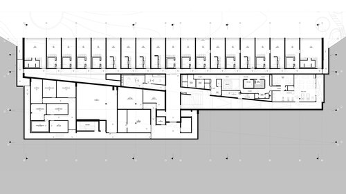
L’édifice en forme de « Z » est décliné en 5 rampes et s’intègre totalement dans le paysage vallonné de la Vallée de Joux. Chauffé au bois et composé de matériaux bruts comme la pierre et le bois de la région, il est doté d’une promenade intérieure reliant les chambres, le lobby, les restaurants, le spa et les salles de séminaires.

Réalisation de CCHE pour l'Hôtel des Horlogers Audemars Piguet en Suisse

Projet d'architecture d'intérieur

AUM. Pierre Minassian

Réalisation: CCHE

Images de AUM pour le projet architecture d'intérieur
Images de AUM pour le projet architecture d'intérieur
Images de AUM pour le projet architecture d'intérieur

Projet CCHE 2019

Le bureau CCHE la Vallée a été mandaté pour proposer une vision d’aménagement intérieur pour l’Hôtel des Horlogers, avec l'objectif de proposer un projet avec une identité forte à même d'incarner la renaissance du tourisme de luxe dans la région et de poser les bases d’un nouveau style propre à la Vallée de Joux. Pour cela, le projet trouve son inspiration dans le monde et les codes de l’horlogerie avec un aménagement et du mobilier incarnant la précision, le raffinement et le soucis du détail.

Projet intérieur de CCHE pour l'Hôtel des Horlogers Audemars Piguet en Suisse
Projet intérieur de CCHE pour l'Hôtel des Horlogers Audemars Piguet en Suisse
Projet intérieur de CCHE pour l'Hôtel des Horlogers Audemars Piguet en Suisse
Projet intérieur de CCHE pour l'Hôtel des Horlogers Audemars Piguet en Suisse
Projet intérieur de CCHE pour l'Hôtel des Horlogers Audemars Piguet en Suisse
Projet intérieur de CCHE pour l'Hôtel des Horlogers Audemars Piguet en Suisse

Première pierre

Projet intérieur de CCHE pour l'Hôtel des Horlogers Audemars Piguet en Suisse

Pose de la première pierre le lundi 4 juin 2018 du futur Hôtel des Horlogers d’Audemars Piguet. Voir l'article sur le sujet

Hôtel des horlogers - Page projet - vue dessus
Hôtel des horlogers - Page projet - vue bas/haut
Réalisation de CCHE pour l'hôtel des horloger Audemars Piguet en Suisse
Réalisation de CCHE pour l'hôtel des horloger Audemars Piguet en Suisse
Réalisation de CCHE pour l'Hôtel des Horlogers Audemars Piguet en Suisse
Réalisation de CCHE pour l'Hôtel des Horlogers Audemars Piguet en Suisse
Retour aux projets