Hôtel des Horlogers

Le Brassus

Hôtel des Horlogers: ein Ort in Osmose mit seiner Umgebung

Inspiriert vom Vallée de Joux öffnete das brandneue Hôtel des Horlogers kürzlich seine Türen. Das Projekt wurde von BIG (Bjarke Ingels Group) entworfen und von CCHE realisiert, den beiden Partnern, die bereits für das nur wenige Schritte entfernte Museum Atelier Audemars Piguet verantwortlich waren.

Mit einem avantgardistischen Konzept und Architektur folgt das Gebäude der Topographie des Tals und vermischt sich mit der Natur, um die Besucher in die natürliche Umgebung des Ortes einzutauchen. Die Struktur besteht aus Platten, die im Zickzack in Richtung des Tals verlaufen und sich leicht neigen, um das Relief zu umarmen und einen kontinuierlichen Weg in die Natur zu schaffen. Dieses Konzept begreift den Ort als eine Reihe von Bergkämmen, die den Hügel hinabführen, wobei die Gebäudeblöcke eine Reihe von Bermen darstellen, die von Bäumen und verschiedenen Pflanzen gesäumt werden. Die Inneneinrichtung wurde von der Agentur AUM entworfen, die ein Konzept entwickelt hat, das Qualität, Komfort und Benutzerfreundlichkeit miteinander verbindet und lokale Materialien wie Holz und Stein bevorzugt.

Jahr

2022

Entwickelt von

Consortium BIG (Bjarke Ingels Group) / CCHE Lausanne SA, Innenarchitektur: AUM Pierre Minassian

Bauherr

Manufacture d'Horlogerie Audemars Piguet SA, Le Brassus

Programm

Boutique Hotel, 50 Räume davon 12 Suiten, Konferenzräume, Lobby, 2 Restaurants, Bar und Wellnessbereich aufgeteilt.

Geschossfläche (BGF)

6.300 qm

Volumen (SIA)

30.000 m³

Zusammenarbeit

BIG

Realisierung

CCHE

Réalisation de CCHE de l’Hôtel des Horlogers Le Brassus Suisse
Réalisation de CCHE de l’Hôtel des Horlogers Le Brassus Suisse
Réalisation de CCHE de l’Hôtel des Horlogers Le Brassus Suisse
Réalisation de CCHE de l’Hôtel des Horlogers Le Brassus Suisse
Réalisation de CCHE de l’Hôtel des Horlogers Le Brassus Suisse
Actualité de CCHE pour Retour en image sur le chantier de l’Hôtel des Horlogers Le Brassus Suisse
Actualité de CCHE pour Retour en image sur le chantier de l’Hôtel des Horlogers Le Brassus Suisse
Actualité de CCHE pour Retour en image sur le chantier de l’Hôtel des Horlogers Le Brassus Suisse
Actualité de CCHE pour Retour en image sur le chantier de l’Hôtel des Horlogers Le Brassus Suisse
Actualité de CCHE pour Retour en images sur le chantier de l’Hôtel des Horlogers Le Brassus Suisse
Actualité de CCHE pour Retour en image sur le chantier de l’Hôtel des Horlogers Le Brassus Suisse
Actualité de CCHE pour Retour en image sur le chantier de l’Hôtel des Horlogers Le Brassus Suisse
Actualité de CCHE pour Retour en image sur le chantier de l’Hôtel des Horlogers Le Brassus Suisse
Actualité de CCHE pour Retour en image sur le chantier de l’Hôtel des Horlogers Le Brassus Suisse
Actualité de CCHE pour Retour en images sur le chantier de l’Hôtel des Horlogers Le Brassus Suisse

Konzept der Architektur

BIG (Bjarke Ingels Group)

Realisierung: CCHE

Réalisation de CCHE Hôtel des Horlogers Suisse
Réalisation de CCHE pour l'hôtel des horlogers Suisse
Hôtel des horlogers - animation schéma

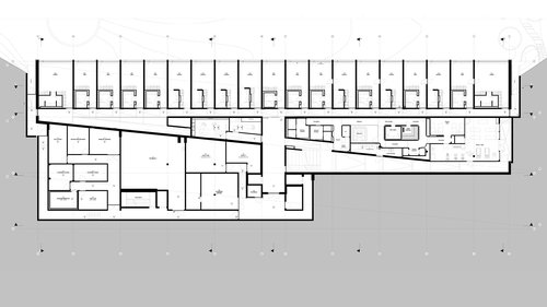
Das „Z“-förmige Gebäude ist in 5 Rampen angelegt und vollständig in die hügelige Landschaft des Vallée de Joux integriert. Es wird mit Holz beheizt und besteht aus Rohmaterialien wie lokalem Stein und Holz und verfügt über einen Innengang, der die Räume, die Lobby, die Restaurants, das Spa und die Seminarräume miteinander verbindet.

Réalisation de CCHE pour l'Hôtel des Horlogers Audemars Piguet en Suisse

Innenarchitekturprojekt

AUM. Pierre Minassian

Realisierung: CCHE

Images de AUM pour le projet architecture d'intérieur
Images de AUM pour le projet architecture d'intérieur
Images de AUM pour le projet architecture d'intérieur

2019 CCHE Vision

Das Büro CCHE la Vallée wurde beauftragt, 2019 eine Vision für die Inneneinrichtung des Hôtel des Horlogers zu entwerfen. Ziel ist es, ein Projekt mit einer starken Identität vorzuschlagen, das die Renaissance des Luxustourismus in der Region verkörpern und die Grundlage für einen neuen, dem Vallée de Joux eigenen Stil legen kann. Um dies zu erreichen, findet das Projekt seine Inspiration in der Welt und den Codes der Uhrmacherei mit einer Einrichtung und Möbeln, die Präzision, Raffinesse und Liebe zum Detail verkörpern.

Projet intérieur de CCHE pour l'Hôtel des Horlogers Audemars Piguet en Suisse
Projet intérieur de CCHE pour l'Hôtel des Horlogers Audemars Piguet en Suisse
Projet intérieur de CCHE pour l'Hôtel des Horlogers Audemars Piguet en Suisse
Projet intérieur de CCHE pour l'Hôtel des Horlogers Audemars Piguet en Suisse
Projet intérieur de CCHE pour l'Hôtel des Horlogers Audemars Piguet en Suisse
Projet intérieur de CCHE pour l'Hôtel des Horlogers Audemars Piguet en Suisse

Grundsteinlegung

Projet intérieur de CCHE pour l'Hôtel des Horlogers Audemars Piguet en Suisse

Am Montag, den 4. Juni 2018, wurde die Grundsteinlegung für das künftige Hôtel des Horlogers von Audemars Piguet gefeiert. Siehe Artikel dazu

Hôtel des horlogers - Page projet - vue dessus
Hôtel des horlogers - Page projet - vue bas/haut
Réalisation de CCHE pour l'hôtel des horloger Audemars Piguet en Suisse
Réalisation de CCHE pour l'hôtel des horloger Audemars Piguet en Suisse
Réalisation de CCHE pour l'Hôtel des Horlogers Audemars Piguet en Suisse
Réalisation de CCHE pour l'Hôtel des Horlogers Audemars Piguet en Suisse
Zurück zu Projekte