Craivavers 15

Lausanne

La maison existante se situe dans les hauts de Lausanne, dans le quartier résidentiel et calme de Chailly. Le bâtiment se trouve dans un terrain en forte pente, bordée au nord par une lisière forestière et ouverte au sud vers un magnifique paysage. Ce projet illustre avec justesse les principes de densification en zone résidentielle, conformément aux exigences de la LAT, en privilégiant une approche durable basée sur l’optimisation et l’extension de l’existant.

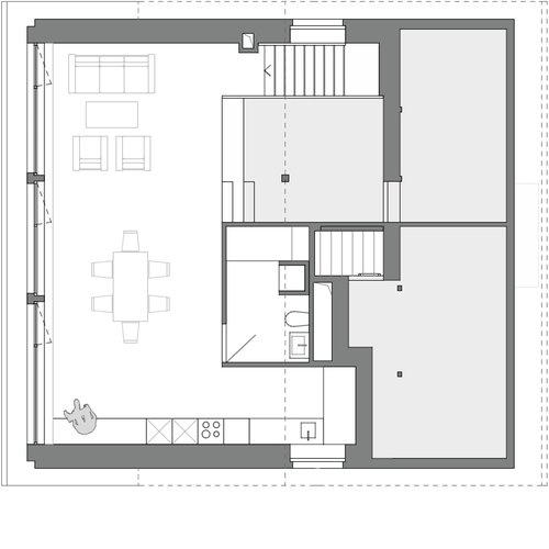
Le projet consiste en une transformation de la toiture existante en un nouvel appartement indépendant. La typologie en demi-niveaux de l’existant a guidé la stratégie d’intervention, favorisant une intégration cohérente du projet. Une nouvelle entrée indépendante a été aménagée au niveau inférieur, remplaçant une chambre, et permettant l’installation d’un escalier compact en bois. À l’étage, le geste spatial principal se traduit par une grande lucarne à pente inversée, s’étendant sur toute la longueur de la pièce. La pièce est ainsi spacieuse et habitable, tout en ouvrant des perspectives panoramiques sur le lac et les montagnes. Les ouvertures sont généreuses pour optimiser l’amenée de lumière et les dégagements panoramiques.

Année

2024

Développé par

CCHE Nyon SA

Maître de l'ouvrage

Privé

Typologie

Transformation

Programme

Transformation des combles en un nouvel appartement indépendant

Mandat

Direct

Surface (SBP)

72 m2

Volume (SIA)

200 m3

Réalisation

CCHE Nyon SA

Transformation de CCHE pour Craivavers 15  Lausanne Suisse

A l’image d’un loft, l’espace est entièrement ouvert, avec une zone plus intime, telle une mezzanine d’un côté, et une niche semi-ouverte accueillant la cuisine de l’autre. Des détails soignés et sur mesure confèrent une identité unique à ce nouveau logement: un caisson cache-radiateur filant sur toute la longueur, une banquette intégrant des rangements ou encore un porte-manteau minimaliste. Le projet est réalisé en ossature bois avec une revêtement en bardage pré-grisé de teinte claire. La toiture existante a été entièrement rénovée, tandis que celle de l’extension a été réalisée en aluminium, dans une teinte assortie aux nouvelles tuiles, assurant ainsi une intégration harmonieuse dans le contexte bâti environnant.

Transformation de CCHE pour Craivavers 15  Lausanne Suisse
Transformation de CCHE pour Craivavers 15  Lausanne Suisse
Transformation de CCHE pour Craivavers 15  Lausanne Suisse
Transformation de CCHE pour Craivavers 15  Lausanne Suisse
Transformation de CCHE pour Craivavers 15  Lausanne Suisse
Transformation de CCHE pour Craivavers 15  Lausanne Suisse
Transformation de CCHE pour Craivavers 15  Lausanne Suisse
Transformation de CCHE pour Craivavers 15  Lausanne Suisse

Coupe

Transformation de CCHE pour Craivavers 15  Lausanne Suisse

Plan de l'étage

Retour aux projets