Craivavers 15

Lausanne

Das bestehende Haus befindet sich in den Anhöhen von Lausanne, im ruhigen Wohnviertel Chailly. Das Gebäude steht auf einem stark geneigten Grundstück, das im Norden von einem Waldrand begrenzt und im Süden zu einer herrlichen Landschaft hin offen ist. Dieses Projekt veranschaulicht treffend die Prinzipien der Verdichtung in Wohngebieten gemäß den Anforderungen des Raumplanungsgesetzes (RPG), indem es einen nachhaltigen Ansatz bevorzugt, der auf der Optimierung und Erweiterung des Bestehenden basiert.

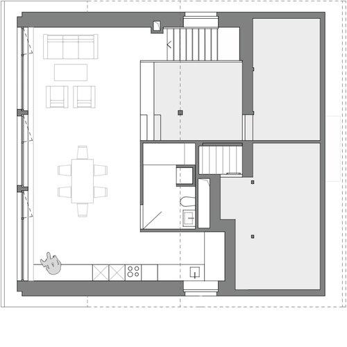
Das Projekt besteht aus dem Umbau des bestehenden Daches in eine neue unabhängige Wohnung. Die Anordnung der bestehenden Halbgeschosse war die Inspiration für die Vorgehensweise und ermöglichte eine kohärente Integration des Projekts. Auf der unteren Etage wurde ein neuer unabhängiger Eingang geschaffen, der ein Zimmer ersetzt und die Installation einer kompakten Holztreppe ermöglicht. Im Obergeschoss ist das Hauptmerkmal des Raums ein großes, über die gesamte Länge des Raumes verlaufendes Dachfenster mit umgekehrter Neigung. Der Raum ist somit geräumig und wohnlich und bietet gleichzeitig einen Panoramablick auf den See und die Berge. Die Öffnungen sind großzügig gestaltet, um die Lichtzufuhr und den Panoramablick zu optimieren.

Jahr

2024

Entwickelt von

CCHE Nyon SA

Bauherr

Privatkunde

Typologie

Umbau

Programm

Umbau des Dachgeschosses in eine neue unabhängige Wohnung

Auftrag

Direkt

Geschossfläche (BGF)

72 m2

Volumen (SIA)

200 m3

Realisierung

CCHE Nyon SA

Transformation de CCHE pour Craivavers 15  Lausanne Suisse

Wie in einem Loft ist der Raum vollständig offen gestaltet, mit einem intimeren Bereich, wie einem Zwischengeschoss auf der einen Seite, und einer halboffenen Nische, in der sich die Küche auf der anderen Seite befindet. Sorgfältig ausgearbeitete und maßgeschneiderte Details verleihen dieser neuen Wohnung eine einzigartige Identität: ein Heizkörperverkleidungskasten, der sich über die gesamte Länge erstreckt, eine Bank mit integriertem Stauraum oder eine minimalistische Garderobe. Das Projekt wurde in Holzrahmenbauweise mit einer vorgegrauten, hellen Fassadenverkleidung realisiert. Das bestehende Dach wurde komplett renoviert, während das Dach des Anbaus aus Aluminium in einer Farbe gefertigt wurde, die zu den neuen Dachziegeln passt, um eine harmonische Integration in die umgebende Bebauung zu gewährleisten.

Transformation de CCHE pour Craivavers 15  Lausanne Suisse
Transformation de CCHE pour Craivavers 15  Lausanne Suisse
Transformation de CCHE pour Craivavers 15  Lausanne Suisse
Transformation de CCHE pour Craivavers 15  Lausanne Suisse
Transformation de CCHE pour Craivavers 15  Lausanne Suisse
Transformation de CCHE pour Craivavers 15  Lausanne Suisse
Transformation de CCHE pour Craivavers 15  Lausanne Suisse
Transformation de CCHE pour Craivavers 15  Lausanne Suisse

Seitenansicht

Transformation de CCHE pour Craivavers 15  Lausanne Suisse

Grundriss

Zurück zu Projekte