Craivavers 15

Lausanne

The existing house is located in the heights of Lausanne, in the quiet residential district of Chailly. The building stands on a steeply sloping plot, bordered by a forest to the north and a magnificent landscape to the south. This project aptly illustrates the principles of densification in residential areas, in accordance with the requirements of the spatial planning law (SPA), and favors a sustainable approach based on the optimization and expansion of what is already on site.

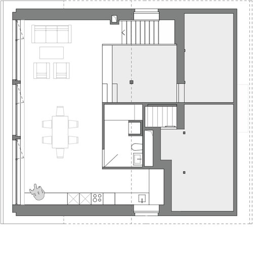
The project involves converting the existing roof into a new independent apartment. The typology of the existing half-levels was the inspiration behind the intervention strategy and favored a coherent integration of the project. On the lower level, a new independent entrance was created, replacing a room and allowing the installation of a compact wooden staircase. On the upper floor, the main spatial feature is a large, inverted sloping skylight running the entire length of the room. It is therefore spacious and habitable, while simultaneously offering a panoramic view of the lake and mountains. The openings are generously designed to optimize the light and the panorama.

Year

2024

Developed by

CCHE Nyon SA

Client

Private

Typology

Conversion

Program

Conversion of attic into a new independent apartment

Assignment

Direct

Floor area (GFA)

72 m2

Volume (SIA)

200 m3

Realization

CCHE Nyon SA

Transformation de CCHE pour Craivavers 15  Lausanne Suisse

Just like in a loft, the space is completely open, with a more private area, such as a mezzanine on one side, and a semi-open alcove (where the kitchen is located) on the other. Carefully crafted and bespoke details give this new apartment a unique identity: a radiator casing that extends the entire length of the room, a bench with integrated storage, and a minimalist coat rack. The project was built using a timber frame construction with a previously grayed, light-colored facade cladding. The existing roof was completely renovated, while the extension’s aluminum roof was finished in a color that matches the new roof tiles. This ensured it blended harmoniously with the surrounding buildings.

Transformation de CCHE pour Craivavers 15  Lausanne Suisse
Transformation de CCHE pour Craivavers 15  Lausanne Suisse
Transformation de CCHE pour Craivavers 15  Lausanne Suisse
Transformation de CCHE pour Craivavers 15  Lausanne Suisse
Transformation de CCHE pour Craivavers 15  Lausanne Suisse
Transformation de CCHE pour Craivavers 15  Lausanne Suisse
Transformation de CCHE pour Craivavers 15  Lausanne Suisse
Transformation de CCHE pour Craivavers 15  Lausanne Suisse

Section

Transformation de CCHE pour Craivavers 15  Lausanne Suisse

Floor plan

Back to projects