Concours TicTac

Bussigny

Concours d'architecture portant sur le développement d'un quartier d'habitation à Bussigny Ouest.

CCHE propose un programme qui se déploie avec deux bâtiments en L permettant de créer un espace vert au centre de la parcelle qui renforce le rôle de connecteur spatial et social du projet. La liaison topographique originelle est restituée au territoire grâce à ce parc, qui propose un aménagement extérieur en trois moments paysagers hiérarchisés du plus collectif (le socle commercial) au plus intimiste (terrasses des logements au rez-de-chaussée). L’implantation des bâtiments a deux rôles prépondérants. Elle vient d’une part souder la continuité urbaine des équipements publics au sud de la parcelle avec un socle commercial sur lequel pose un volume orienté est-ouest, tout en marquant d’autre part la fin de la coulée verte au nord avec un bâtiment qui se retourne et privilégie une orientation nord-sud.

L’ensemble s’oriente autour de cette espace majeure partagé permettant à chaque appartement de profiter de la meilleure orientation solaire ainsi que des vues dégagés vers le grand paysage. Le parc se présente comme un élément de transition est-ouest entre l’axe routier de Champ Perrin et l’Esplanade «Au-Jordil» et aussi nord-sud entre logements et commerces. Il forme un espace propice à la vie de quartier qui accueil la place de jeu, des collines et de la végétation organique et sur lequel s’oriente la salle de quartier située au rez-de-chaussée du bâtiment nord.

Le volume commercial s’intègre de manière franche et frontal dans le site en renforçant le caractère propre à cette parcelle (la fin du tissu résidentiel). Il vient relier les équipements commerciaux voisins (le café de l’Aimant et le magasin de tennis) par sa relation ouverte avec les espaces extérieures à l’angle sud-est. Le volume est creusé sur ce front afin d’affirmer les accès principaux des surfaces commerciales ainsi que permettre l’appropriation publique de l’espace extérieur appartenant aux deux parcelles voisines – la place et la parcelle triangulaire de la Commune de Bussigny.

Un parvis d’entrée triangulaire relie la sortie du parking du commerce à l’accès principale côté place publique, protégé par un avant-toit qui renforce cet angle.

Le projet atteint la performance énergétique Minergie-P, par l’utilisation de dispositifs simples, low-tech et la limitation de matière. La qualité de l’enveloppe thermique assure le confort tant en été qu’en hiver avec des moyens passifs et un recours minimal aux techniques, pour une efficacité et économicité maximale.

Année

2022

Procédure

Concours en procédure sélective

Maître de l'ouvrage

Retraites populaires CPEV

Typologie

Quartier d'habitation

Programme

Logements

Surface (SBP)

4'121 m2

Volume (SIA)

22'702 m3

Concours de CCHE pour Bussigny Ouest Parcelles 3372 Suisse

Plan d'implantation

Concours de CCHE pour Bussigny Ouest Parcelles 3372 Suisse
Concours de CCHE pour Bussigny Ouest Parcelles 3372 Suisse

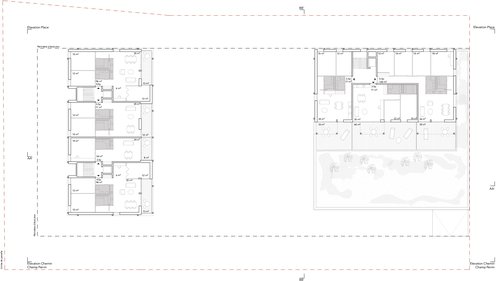
Coupe AA, Plan étage type

Concours de CCHE pour Bussigny Ouest Parcelles 3372 Suisse
Concours de CCHE pour Bussigny Ouest Parcelles 3372 Suisse
Concours de CCHE pour Bussigny Ouest Parcelles 3372 Suisse

Coupe 1.20

Concours de CCHE pour Bussigny Ouest Parcelles 3372 Suisse
Concours de CCHE pour Bussigny Ouest Parcelles 3372 Suisse

Prolongement de la verdure et des connexions pédestres

Concours de CCHE pour Bussigny Ouest Parcelles 3372 Suisse

Renforcement du rapport entre les services et l'espace public

Concours de CCHE pour Bussigny Ouest Parcelles 3372 Suisse

Schéma paysagiste

Retour aux projets