TicTac-Wettbewerb

Bussigny

Architekturwettbewerb um die Entwicklung eines Wohnviertels in Bussigny Ouest.

CCHE schlägt ein Programm vor, das sich mit zwei L-förmigen Gebäuden entfaltet, die ermöglichen, einen Grünraum in der Mitte des Grundstücks zu schaffen, der die Rolle des Projekts als räumliches und soziales Verbindungsstück verstärkt. Die ursprüngliche topografische Verbindung wird dem Gebiet durch diesen Park zurückgegeben, der eine Außengestaltung in drei hierarchisch gegliederten landschaftlichen Momenten vorschlägt, die vom kollektivsten (der Geschäftssockel) bis zum intimsten (Terrassen der Wohnungen im Erdgeschoss) reichen. Die Anordnung der Gebäude hat zwei entscheidende Rollen. Einerseits wird die urbane Kontinuität der öffentlichen Einrichtungen im Süden des Grundstücks mit einem Geschäftssockel, auf dem ein ost-westlich ausgerichtetes Volumen steht, zusammengeschweißt, andererseits markiert sie das Ende des Grünzugs im Norden mit einem Gebäude, das sich umkehrt und eine Nord-Süd-Ausrichtung bevorzugt.

Der gesamte Komplex orientiert sich um diesen großen, gemeinsam genutzten Bereich, der jeder Wohnung ermöglicht, die beste Sonnenausrichtung und den freien Blick auf die weite Landschaft zu genießen. Der Park ist ein Ost-West-Übergangselement zwischen der Champ-Perrin-Straße und der Esplanade "Au-Jordil" sowie ein Nord-Süd-Übergangselement zwischen Wohnungen und Geschäften. Er bildet einen für das Quartierleben günstigen Raum, der den Spielplatz, die Hügel und die organische Vegetation aufnimmt und auf den sich der im Erdgeschoss des Nordgebäudes gelegene Quartiersaal orientiert.

Das Geschäftsvolumen fügt sich offen und frontal in das Gelände ein und verstärkt den besonderen Charakter dieses Grundstücks (das Ende des Wohngebiets). Es verbindet die benachbarten kommerziellen Einrichtungen (das Café de l'Aimant und das Tennisgeschäft) durch seine offene Beziehung zu den Außenbereichen an der südöstlichen Ecke. Das Volumen ist an dieser Front eingegraben, um die Hauptzugänge zu den Geschäftsflächen zu markieren und die öffentliche Aneignung des Außenraums zu ermöglichen, der den beiden benachbarten Parzellen - dem Platz und der dreieckigen Parzelle der Gemeinde Bussigny - gehört.

Jahr

2022

Verfahren

Wettbewerb im Auswahlverfahren

Bauherr

Retraites populaires CPEV

Typologie

Wohnviertel

Programm

Wohnungen

Geschossfläche (BGF)

4.121 m2

Volumen (SIA)

22.702 m3

Concours de CCHE pour Bussigny Ouest Parcelles 3372 Suisse

Lageplan

Concours de CCHE pour Bussigny Ouest Parcelles 3372 Suisse
Concours de CCHE pour Bussigny Ouest Parcelles 3372 Suisse

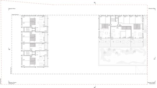
Schnitt AA, Grundriss Muster-Stockwerk

Concours de CCHE pour Bussigny Ouest Parcelles 3372 Suisse
Concours de CCHE pour Bussigny Ouest Parcelles 3372 Suisse
Concours de CCHE pour Bussigny Ouest Parcelles 3372 Suisse

Schnitt 1.20

Concours de CCHE pour Bussigny Ouest Parcelles 3372 Suisse
Concours de CCHE pour Bussigny Ouest Parcelles 3372 Suisse

Verlängerung von Grünflächen und Fußgänger-Verbindungen

Concours de CCHE pour Bussigny Ouest Parcelles 3372 Suisse

Stärkung der Beziehung zwischen den Dienstleistungen und dem öffentlichen Raum.

Concours de CCHE pour Bussigny Ouest Parcelles 3372 Suisse

Landschaftsplanerisches Schema

Zurück zu Projekte