Concours extension de l'école de Lullier

Lullier

Le site de Lullier accueille deux écoles du canton de Genève : le Centre de formation professionnelle nature et environnement et la Haute école du paysage, d’ingénierie et d’architecture (HEPIA).

C'est dans un contexte où les deux établissements partagent des bâtiments devenus trop petits et ne répondant plus aux exigences actuelles qu'est né le besoin d’une extension, dans une réflexion paysagère et architecturale en lien avec la singularité de ce site.

L’analyse des lieux a mis en lumière deux thématiques fortes du site. La première réside dans une architecture à la fois maîtrisée (orthogonalité) et harmonieuse (unité de teinte), mais aussi diversifiée (variation de hauteur) et fonctionnelle (synergie des différentes filiales).

L'impression générale se ressent dans une horizontalité affirmée, animée par des imbrications de volumes.

La deuxième thématique réside dans le paysage et les aménagements exceptionnels, composés par exemple de prairie sèche, de massifs entretenus, de bosquets urbains, de cordon boisé ou encore d'arbres remarquables et isolés.

De ce constat, la stratégie d’implantation consiste à minimiser l'emprise au sol du bâtiment ainsi qu'à réduire les interventions au strict nécessaire, en s’intégrant harmonieusement dans le parc scolaire imaginé par Walter Brugger. Tous les arbres existants sont maintenus et les nouveaux arbres s'insèrent dans la logique existante, tantôt en groupes, tantôt isolés ou alignés.

Année

2024

Procédure

Concours en procédure ouverte

Résultat

2ème tour

Développé par

CCHE Nyon SA

Programme

Enseignement, Extension du CFPNE & HEPIA

Maître de l'ouvrage

L’OCBA (office cantonal des bâtiments)

Typologie

Extension des salles de classes et de la bibliothèque

Surface (SBP)

3'500 m²

Volume (SIA)

12'600 m³

Architecture de CCHE pour le Concours extension de l'école de Lullier Nyon Suisse

Le projet cherche à se densifier en vertical avec humilité et compacité, contrastant avec l'horizontalité des édifices existants, évitant dans ce sens une certaine rivalité.

En effet, le nouveau bâtiment se détache et s'éloigne le plus possible des volumes existants, maintenant de généreux vides qui profiteront à la nature.

Cette idée sonne comme une évidence sur ce site et a orienté vers le positionnement de la bibliothèque au dernier étage, permettant ainsi aux élèves et aux professeurs d'apprécier l'ensemble du site et la vue imprenable vers le Salève et le paysage alentour.

Le lieu du savoir se présente également tel un perchoir sur la cime du bâtiment, devenant ainsi un repère visible, et offrant la possibilité d'observer la richesse des plantations sur le site.

"Prendre de la hauteur" est une expression, née au cours du XXe siècle, qui s'appuie sur le fait que lorsque l'on s'élève dans les airs, tout apparait différemment. Ainsi, cette maxime signifie "avoir un point de vue, un regard différent".

Architecture de CCHE pour le Concours extension de l'école de Lullier Nyon Suisse
Architecture de CCHE pour le Concours extension de l'école de Lullier Nyon Suisse
Architecture de CCHE pour le Concours extension de l'école de Lullier Nyon Suisse
Architecture de CCHE pour le Concours extension de l'école de Lullier Nyon Suisse
Architecture de CCHE pour le Concours extension de l'école de Lullier Nyon Suisse
Architecture de CCHE pour le Concours extension de l'école de Lullier Nyon Suisse
Architecture de CCHE pour le Concours extension de l'école de Lullier Nyon Suisse

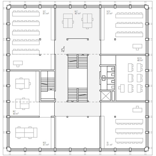
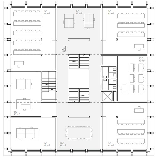
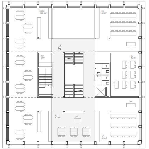
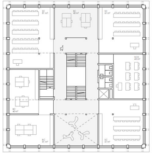
Etage 1, Sous-sol

Architecture de CCHE pour le Concours extension de l'école de Lullier Nyon Suisse
Architecture de CCHE pour le Concours extension de l'école de Lullier Nyon Suisse

Etage 2, Etage 3

Architecture de CCHE pour le Concours extension de l'école de Lullier Nyon Suisse
Architecture de CCHE pour le Concours extension de l'école de Lullier Nyon Suisse

Etage 5, Etage 4

Architecture de CCHE pour le Concours extension de l'école de Lullier Nyon Suisse
Retour aux projets