École de Pont-Rouge

Genève Lancy - Pont Rouge

Premier prix d'un concours, le projet "Au fil des Saisons" a implanté l'école au sein d'un parc d’apprentissage regroupant nature et culture dans un environnement proche et innovant.

Située entre deux contextes contrastés, l’urbain et le paysager, le minéral et le végétal, l'école de Pont-Rouge est proposée comme une entité posée dans un parc ne faisant qu’un avec celui de la Mairie. Cet espace public majeur constitue le cœur et le poumon d’un quartier très dense et le relie aux autres secteurs de la Ville de Lancy. La liaison topographique originelle est finement restituée au territoire grâce à un pré en pente douce liant la Mairie à l'école. L’idée forte de la proposition était de transformer le parc en école. L’extérieur et l’intérieur se mélangent, transformant l’école en un « parc d’apprentissage » dans lequel nature et culture se rejoignent dans un environnement proche et innovant.

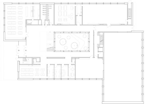
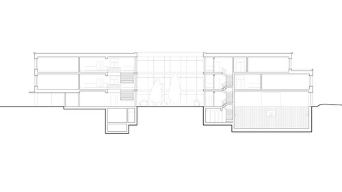
L’implantation du bâtiment dans la partie nord-ouest du périmètre permet de dégager un espace paysager généreux dans lequel prennent place la passerelle de franchissement de la noue à l’est, et le terrain de sport et le parc au sud. La présence de nombreux arbres favorise une zone fraîche bénéfique à l’ensemble du site. L’entrée principale de l’école et des activités parascolaires se fait par un parvis couvert au sud du bâtiment, dans une séquence préau extérieur-préau couvert-entrée.

Le programme scolaire se développe autour du «cœur» d’apprentissage situé au centre de l’édifice. Cet îlot de fraîcheur végétal regroupe la zone d’arrivée de l’école, les connections entre les étages et des vues directes sur la salle de sport, le réfectoire, la salle de rythmique et les classes. Ce cœur confère à l’espace une qualité lumineuse et vibrante tout en le subdivisant en un certain nombre de zones clairement définies. Il est destiné à l’apprentissage du jardinage pour les enfants en bas âge dans une ambiance facilement contrôlée par les enseignants. Un espace qui invite le soleil, la lumière du jour et les plantes au cœur même du bâtiment, laissant la nature rester l'élément central de l'expérience spatiale.

Année

2023

Mention

1er prix

Développé par

CCHE Lausanne SA
CCHE Genève SA
CCHE Porto Lda

Maître de l'ouvrage

Ville de Lancy

Programme

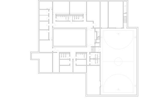
Réalisation d'un demi-groupe scolaire, salle polyvalente et salle de quartier

Surface (SBP)

5'990 m2

Volume (SIA)

21'961 m3

Collaboration

2M ingénierie civile SA
ARFOLIA SA
Estia SA
ISI sàrl Ingénierie et Sécurité Incendie

Signalétique

CCHE Design

Artiste oeuvre

Pauline Cordier, œuvre « Variations »

Architecture de CCHE pour l'école de Pont-Rouge à Lancy Genève Suisse

Une forme urbaine en dialogue avec le parc

L'école est entourée de différents contextes: l’urbain très dense des quartiers résidentiels et le poumon vert et naturel du parc de la Mairie.

Le prolongement doux et naturel du parc vert existant de la Mairie, a valorisé et confirmé l’opportunité de planifier une école riche en programme et ouvre la voie à de nouvelles approches pour stimuler la capacité et le désir des enfants d’apprendre. En incorporant l’apprentissage et le paysage en un seul, ce projet offre aux enfants la possibilité de jouer et d’apprendre dans un écosystème complet qui change au fil du temps - au cours d’une journée, mais aussi au fil des saisons. L'organisation du programme permet de bien distinguer le programme écolier du programme du quartier afin d’assurer le bon fonctionnement et la sécurité de l’établissement.

Architecture de CCHE pour l'école de Pont-Rouge à Lancy Genève Suisse
Architecture de CCHE pour l'école de Pont-Rouge à Lancy Genève Suisse
Architecture de CCHE pour l'école de Pont-Rouge à Lancy Genève Suisse
Architecture de CCHE pour l'école de Pont-Rouge à Lancy Genève Suisse
Architecture de CCHE pour l'école de Pont-Rouge à Lancy Genève Suisse
Architecture de CCHE pour l'école de Pont-Rouge à Lancy Genève Suisse
Architecture de CCHE pour l'école de Pont-Rouge à Lancy Genève Suisse
Architecture de CCHE pour l'école de Pont-Rouge à Lancy Genève Suisse
Architecture de CCHE pour l'école de Pont-Rouge à Lancy Genève Suisse
Architecture de CCHE pour l'école de Pont-Rouge à Lancy Genève Suisse
Architecture de CCHE pour l'école de Pont-Rouge à Lancy Genève Suisse
Architecture de CCHE pour l'école de Pont-Rouge à Lancy Genève Suisse

Signalétique

La signalétique développée pour le bâtiment est issue de l’étude des matérialités présentes sur le site. Les éléments caractéristiques d'un bâtiment scolaire ont été détournés de leur attribution première pour être intégrés dans le concept d’orientation, de façon à ce qu’il soit implicitement identifiable pour les visiteurs, et à la fois assez discret pour se fondre dans son environnement aux yeux des usagers courants.

Signalétique de CCHE pour l'école de Pont-Rouge à Lancy Genève Suisse
Architecture de CCHE pour l'école de Pont-Rouge à Lancy Genève Suisse
Architecture de CCHE pour l'école de Pont-Rouge à Lancy Genève Suisse

La signalétique s’intègre ainsi de manière cohérente dans l’ensemble, en utilisant par exemple le linoleum base liège pour les éléments de signalétique. 

Architecture de CCHE pour l'école de Pont-Rouge à Lancy Genève Suisse
Architecture de CCHE pour l'école de Pont-Rouge à Lancy Genève Suisse
Architecture de CCHE pour l'école de Pont-Rouge à Lancy Genève Suisse
Architecture de CCHE pour l'école de Pont-Rouge à Lancy Genève Suisse
Architecture de CCHE pour l'école de Pont-Rouge à Lancy Genève Suisse
Architecture de CCHE pour l'école de Pont-Rouge à Lancy Genève Suisse
Architecture de CCHE pour l'école de Pont-Rouge à Lancy Genève Suisse
Architecture de CCHE pour l'école de Pont-Rouge à Lancy Genève Suisse
Architecture de CCHE pour l'école de Pont-Rouge à Lancy Genève Suisse
Architecture de CCHE pour l'école de Pont-Rouge à Lancy Genève Suisse
Architecture de CCHE pour l'école de Pont-Rouge à Lancy Genève Suisse
Architecture de CCHE pour l'école de Pont-Rouge à Lancy Genève Suisse
Architecture de CCHE pour l'école de Pont-Rouge à Lancy Genève Suisse
Architecture de CCHE pour l'école de Pont-Rouge à Lancy Genève Suisse
Architecture de CCHE pour l'école de Pont-Rouge à Lancy Genève Suisse
Architecture de CCHE pour l'école de Pont-Rouge à Lancy Genève Suisse

Concours

Architecture de CCHE pour l'école de Pont-Rouge à Lancy Genève Suisse
Architecture de CCHE pour l'école de Pont-Rouge à Lancy Genève Suisse
Architecture de CCHE pour l'école de Pont-Rouge à Lancy Genève Suisse
Architecture de CCHE pour l'école de Pont-Rouge à Lancy Genève Suisse
Architecture de CCHE pour l'école de Pont-Rouge à Lancy Genève Suisse
Architecture de CCHE pour l'école de Pont-Rouge à Lancy Genève Suisse
Retour aux projets