Wettbewerb für die Erweiterung der Schule in Lullier

Lullier

Der Standort Lullier beherbergt zwei Schulen des Kantons Genf: das Centre de formation professionnelle nature et environnement (Berufsbildungszentrum für Natur und Umwelt) und die Haute école du paysage, d'ingénierie et d'architecture (HEPIA) (Hochschule für Landschaftsgestaltung, Ingenieurwesen und Architektur).

Vor dem Hintergrund, dass beide Einrichtungen Gebäude teilen, die zu klein geworden sind und nicht mehr den aktuellen Anforderungen entsprechen, entstand der Bedarf an einer Erweiterung, die sich in die Landschaft und Architektur einfügt und die Einzigartigkeit dieses Standorts berücksichtigt.

Die Analyse der Örtlichkeiten hat zwei wesentliche Merkmale des Standorts ans Licht gebracht. Das erste liegt in einer Architektur, die sowohl beherrscht (Orthogonalität) als auch harmonisch (Farbabstimmung), aber auch vielfältig (Höhenvariation) und funktional (Synergie der verschiedenen Bereiche) ist.

Der Gesamteindruck wird durch eine ausgeprägte Horizontalität vermittelt, die durch die Verschachtelung von Volumen belebt wird.

Das zweite Thema ist die Landschaft und ihre Besonderheiten, die beispielsweise aus Trockenwiesen, gepflegten Beeten, städtischen Wäldchen, Waldstreifen oder auch bemerkenswerten, alleinstehenden Bäumen bestehen.

Ausgehend von dieser Überlegung besteht die Umsetzungsstrategie darin, die Grundfläche des Gebäudes zu minimieren und die Baumaßnahmen auf das Nötigste zu beschränken, um eine harmonische Einbindung in das von Walter Brugger entworfene Schulgelände zu gewährleisten. Alle bestehenden Bäume bleiben erhalten und die neuen Bäume werden in die bestehende Anlage integriert, teilweise in Gruppen, teilweise einzeln oder in Reihen.

Jahr

2024

Verfahren

Wettbewerb im offenen Verfahren

Ergebnis

2. Runde

Entwickelt von

CCHE Nyon SA

Programm

Schulwesen, Erweiterung des CFPNE & HEPIA

Bauherr

L'OCBA (Kantonales Gebäudeamt)

Typologie

Erweiterung der Klassenzimmer und der Bibliothek

Geschossfläche (BGF)

3'500 m²

Volumen (SIA)

12'600 m³

Architecture de CCHE pour le Concours extension de l'école de Lullier Nyon Suisse

Das Projekt strebt eine vertikale Verdichtung mit Bescheidenheit und Kompaktheit an, die im Kontrast zur Horizontalität der bestehenden Gebäude steht und in diesem Sinne eine gewisse Rivalität vermeidet.

Tatsächlich hebt sich der Neubau ab und entfernt sich so weit wie möglich von den bestehenden Volumen, wodurch großzügige Freiräume entstehen, die der Natur zugutekommen.

Diese Idee erscheint für diesen Standort als naheliegend und hat zur Positionierung der Bibliothek im obersten Stockwerk geführt, sodass Schüler und Lehrer das gesamte Gelände und den atemberaubenden Blick auf den Salève und die umliegende Landschaft genießen können.

Der Ort des Wissens präsentiert sich auch wie ein Hochsitz auf der Spitze des Gebäudes, wird so zu einem sichtbaren Wahrzeichen und bietet die Möglichkeit, die Vielfalt der Bepflanzung auf dem Gelände zu beobachten.

"Hoch hinauskommen" ist ein Ausdruck, der im 20. Jahrhundert entstand und sich auf die Tatsache stützt, dass alles anders erscheint, wenn man sich in die Luft erhebt. So bedeutet diese Maxime "einen Standpunkt haben, einen anderen Blickwinkel".

Architecture de CCHE pour le Concours extension de l'école de Lullier Nyon Suisse
Architecture de CCHE pour le Concours extension de l'école de Lullier Nyon Suisse
Architecture de CCHE pour le Concours extension de l'école de Lullier Nyon Suisse
Architecture de CCHE pour le Concours extension de l'école de Lullier Nyon Suisse
Architecture de CCHE pour le Concours extension de l'école de Lullier Nyon Suisse
Architecture de CCHE pour le Concours extension de l'école de Lullier Nyon Suisse
Architecture de CCHE pour le Concours extension de l'école de Lullier Nyon Suisse

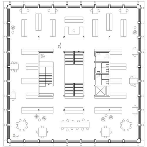
1. Etage, Untergeschoss

Architecture de CCHE pour le Concours extension de l'école de Lullier Nyon Suisse
Architecture de CCHE pour le Concours extension de l'école de Lullier Nyon Suisse

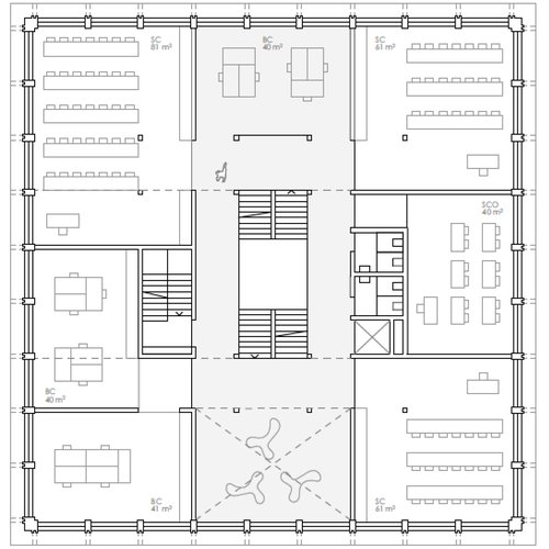
2. Etage, 3. Etage

Architecture de CCHE pour le Concours extension de l'école de Lullier Nyon Suisse
Architecture de CCHE pour le Concours extension de l'école de Lullier Nyon Suisse

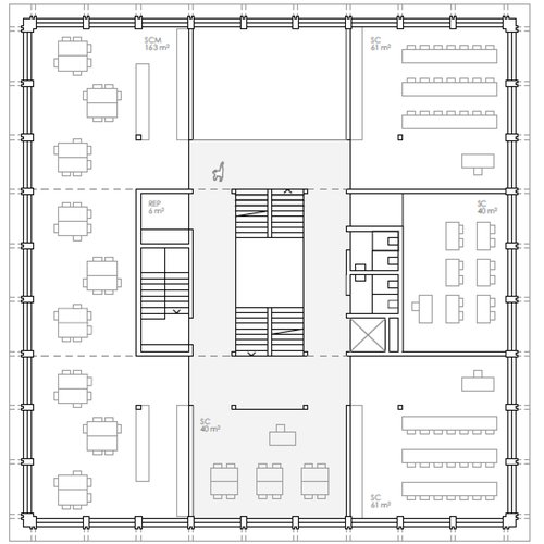
5. Etage, 4. Etage

Architecture de CCHE pour le Concours extension de l'école de Lullier Nyon Suisse
Zurück zu Projekte