Common Ground

Moudon

Le projet "Common Ground" est un concours d'architecture sur invitation, visant à transformer la Colline du Fey à Moudon. Situé sur un terrain généreux de 12'800 m², le programme prévoit la création de 16'600 m² de surface brute de plancher, répartie entre logements, un EMS (établissement médico-social) et des activités diverses.

Un cœur paysager au centre du quartier : Au cœur du site, un îlot de fraîcheur est imaginé, composé de jardins thématiques, d'espaces verts, de potagers et de vergers. Cette conception, étalée sur trois niveaux de hauteur, vise à favoriser la biodiversité et à offrir un cadre verdoyant pour l’ensemble des habitants.

Des lieux propices à l’échange intergénérationnel : La convivialité entre les générations est un principe clé du projet. Des espaces communs ouverts au rez-de-chaussée, accessibles à tous les âges, sont répartis autour d'une maison de quartier fédératrice, encourageant les échanges entre enfants, adultes et seniors.

Développé par

CCHE Lausanne SA

Maître de l'ouvrage

ECA Lausanne

Typologie

Quartier d'habitation

Programme

Logements, EMS et diverses activités

Procédure

Concours en procédure sélective

Surface (SBP)

16'600 m²

Volume (SIA)

55'397 m³

Collaboration

Osmia Advisors SA

Architecture de CCHE pour Common Ground Moudon Suisse
Architecture de CCHE pour Common Ground Moudon Suisse


Rationalité et efficacité de construction : La rationalité est un des piliers de la conception. La répétition de sept bâtiments d’habitation permet d'optimiser la préfabrication et d'assurer une construction efficace. L'ensemble du site, y compris les logements et l'EMS, est conçu en bois, conformément aux normes Minergie P-ECO, garantissant une haute performance énergétique et écologique.

Une vue dégagée pour chaque logement : Chaque logement bénéficie d’une double orientation pour maximiser la lumière naturelle et les vues dégagées. Les espaces de séjour sont conçus en format "4 saisons", fusionnant harmonieusement l’intérieur et l’extérieur pour une qualité de vie exceptionnelle tout au long de l'année.

Le projet "Common Ground" propose ainsi une vision durable et humaine, où l'architecture, la nature et les interactions sociales cohabitent harmonieusement pour offrir un cadre de vie stimulant et agréable.

Architecture de CCHE pour Common Ground Moudon Suisse
Architecture de CCHE pour Common Ground Moudon Suisse
Architecture de CCHE pour Common Ground Moudon Suisse
Architecture de CCHE pour Common Ground Moudon Suisse

Plans : situation, rez-de-chaussée, attique, étage type

Architecture de CCHE pour Common Ground Moudon Suisse

Coupe logements

Schémas

Architecture de CCHE pour Common Ground Moudon Suisse
Architecture de CCHE pour Common Ground Moudon Suisse

Un coeur paysager au centre du quartier : Îlot de fraîcheur et biodiversité

1 : Jardins thématiques
2 : Espace vert et arboré
3 : Verger
4 : Potager

***

Des lieux propices à l'échange intergénérationnel : Espaces intérieurs et extérieurs

1 : Places de jeux
2 : Jardin forestier
3 : Place vita
4 : Verger
5 : Potager
6 : Place des générations
7 : Maison de quartier

Architecture de CCHE pour Common Ground Moudon Suisse
Architecture de CCHE pour Common Ground Moudon Suisse

Rationalité et efficacité du projet

Échelle Urbaine :
-Répétition du bâtiment de logements (7x)
-Compacité du parking en sous-sol
-Site Minergie P - ECO

Échelle architecturale :
-Modules préfabriqués en façade
-Mise en place d'un étage type
-Une unique cage par bâtiment de logements

***

Une vue dégagée pour chaque logement

Double orientation :
-Double orientation des logements
-Séjour à l'angle

Espace séjour 4 saisons :
-Pièce de vie autant intérieure qu'extérieure
-Espace vitré et ouvrable
-Prolongement par un balcon/loggia

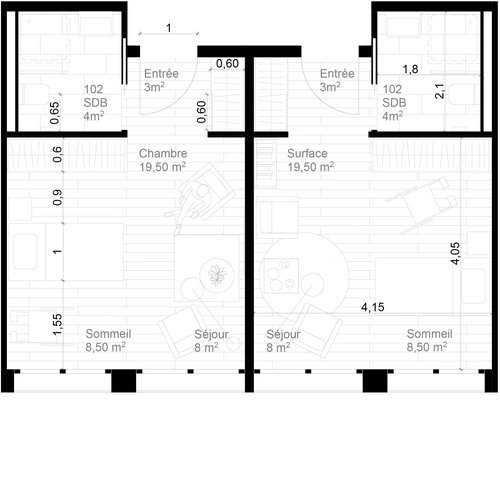
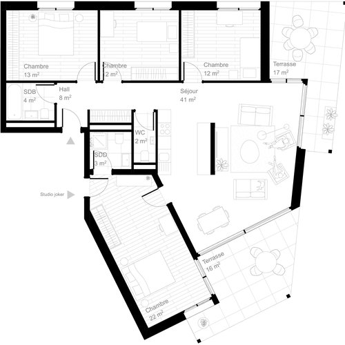
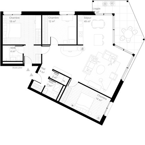
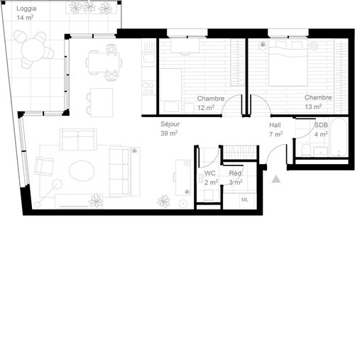
Typologies

Logements

Architecture de CCHE pour Common Ground Moudon Suisse
Architecture de CCHE pour Common Ground Moudon Suisse
Architecture de CCHE pour Common Ground Moudon Suisse
Architecture de CCHE pour Common Ground Moudon Suisse

EMS (Établissements médico-sociaux), SRS (Soins renforcés spécifiques)

Architecture de CCHE pour Common Ground Moudon Suisse
Architecture de CCHE pour Common Ground Moudon Suisse
Retour aux projets