Common Ground

Moudon

Das Projekt „Common Ground“ ist ein Architekturwettbewerb auf Einladung, der die Colline du Fey in Moudon umgestalten soll. Auf einem grosszügigen Grundstück von 12.800 m² gelegen, sieht das Programm die Schaffung von 16.600 m² Bruttogeschossfläche vor, die sich auf Wohnungen, ein Alters- und Pflegeheim (EMS) und verschiedene Aktivitäten verteilen.

Ein landschaftliches Herz im Zentrum des Viertels: Im Herzen des Geländes wird eine Insel der Frische entworfen, die aus Themengärten, Grünflächen, Gemüse- und Obstgärten besteht. Diese Konzeption, die sich über drei Höhenebenen erstreckt, soll die Biodiversität fördern und eine grüne Umgebung für alle Bewohner bieten.

Orte, die den Austausch zwischen den Generationen fördern: Das Zusammenleben der Generationen ist ein Schlüsselprinzip des Projekts. Offene Gemeinschaftsräume im Erdgeschoss, die für alle Altersgruppen zugänglich sind, verteilen sich um ein verbindendes Nachbarschaftshaus, das den Austausch zwischen Kindern, Erwachsenen und Senioren fördert.

Entwickelt von

CCHE Lausanne SA

Bauherr

ECA Lausanne

Typologie

Wohnviertel

Programm

Wohnungen, Pflegeheim und verschiedene Aktivitäten

Verfahren

Wettbewerb im selektiven Verfahren

Geschossfläche (BGF)

16'600 m²

Volumen (SIA)

55'397 m³

Zusammenarbeit

Osmia Advisors SA

Architecture de CCHE pour Common Ground Moudon Suisse
Architecture de CCHE pour Common Ground Moudon Suisse

Rationalität und Baueffizienz: Rationalität ist eine der Säulen des Entwurfs. Durch die Wiederholung von sieben Wohngebäuden wird die Vorfertigung optimiert und eine effiziente Bauweise gewährleistet. Die gesamte Anlage, einschließlich der Wohnungen und des Pflegeheims, ist in Holzbauweise nach Minergie P-ECO-Standards konzipiert, wodurch eine hohe Energie- und Umweltleistung gewährleistet wird.

Freie Sicht für jede Wohnung : Jede Wohnung verfügt über eine doppelte Ausrichtung, um das natürliche Licht und die freie Sicht zu maximieren. Die Wohnbereiche sind im „4-Jahreszeiten“-Format gestaltet und verschmelzen Innen- und Außenbereich harmonisch miteinander, um das ganze Jahr über eine außergewöhnliche Lebensqualität zu bieten.

Das Projekt „Common Ground“ bietet somit eine nachhaltige und menschliche Vision, in der Architektur, Natur und soziale Interaktionen harmonisch zusammenleben, um ein anregendes und angenehmes Lebensumfeld zu bieten.

Architecture de CCHE pour Common Ground Moudon Suisse
Architecture de CCHE pour Common Ground Moudon Suisse
Architecture de CCHE pour Common Ground Moudon Suisse
Architecture de CCHE pour Common Ground Moudon Suisse

Grundrisse: Lage, Erdgeschoss, Penthouse, Muster-Stockwerk

Architecture de CCHE pour Common Ground Moudon Suisse

Schnitt Wohnungen

Schemata

Architecture de CCHE pour Common Ground Moudon Suisse
Architecture de CCHE pour Common Ground Moudon Suisse

Ein landschaftliches Herz im Zentrum des Viertels : Insel der Frische und Biodiversität

1: Thematische Gärten
2: Grünfläche mit Bäumen
3: Obstgarten
4: Gemüsegarten

***

Orte, die den Austausch zwischen den Generationen fördern : Innen- und Außenbereiche

1: Spielplätze
2: Waldgarten
3: Vita-Platz
4: Obstgarten
5: Gemüsegarten
6: Platz der Generationen
7: Nachbarschaftshaus

Architecture de CCHE pour Common Ground Moudon Suisse
Architecture de CCHE pour Common Ground Moudon Suisse

Rationalität und Effizienz des Projekts

Urbaner Maßstab:
-Wiederholung des Wohngebäudes (7x).
-Kompaktheit des Parkhauses im Untergeschoss.
-Standort Minergie P - ECO

Architektonischer Maßstab:
-Vorgefertigte Module an der Fassade
-Einsetzen eines Muster-Stockwerks
-Ein einziger Schacht pro Wohngebäude

***

Ein freier Blick für jede Wohnung

Doppelte Ausrichtung:
-Doppelte Ausrichtung der Wohnungen.
-Wohnbereich an der Ecke

Wohnbereich 4 Jahreszeiten:
-Lebensraum, der sowohl innen als auch außen liegt.
-Verglaster und zu öffnender Raum
-Verlängerung durch einen Balkon/Loggia

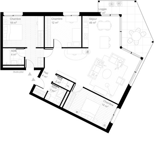
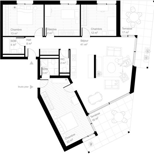
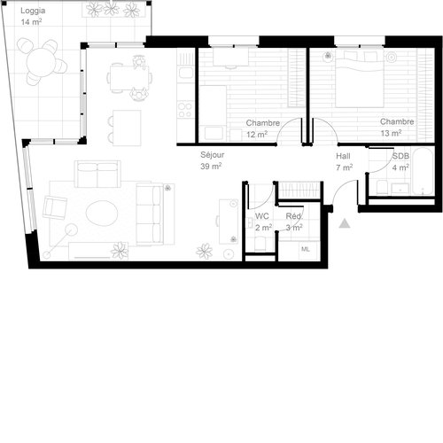
Typologien

Wohnungen

Architecture de CCHE pour Common Ground Moudon Suisse
Architecture de CCHE pour Common Ground Moudon Suisse
Architecture de CCHE pour Common Ground Moudon Suisse
Architecture de CCHE pour Common Ground Moudon Suisse

Pflegeheime (Alters- und Pflegeheime), SRS (Spezielle verstärkte Pflege)

Architecture de CCHE pour Common Ground Moudon Suisse
Architecture de CCHE pour Common Ground Moudon Suisse
Zurück zu Projekte