Centre communal multifonctions CCM

Arzier

Le village d’Arzier-Le Muids, sur les pentes du Jura vaudois, a connu une forte croissance ces trente dernières années, notamment par une extension de sa zone villas. Avec ses 2'220 habitants, étagés entre 600 et 1000 mètres d’altitude, la nécessité de compléter l'offre en équipements publiques s'imposa. Parallèlement à la rénovation de son auberge, la commune lança en 2008 un concours d'architecture pour la réalisation d'un nouveau centre communal multifonctions et multigénérations, destiné à accueillir sous un même toit 21 enfants en crèche/garderie, 24 enfants en UAPE (unité d’accueil pour la petite enfance), la bibliothèque communale, le club des aînés et des salles pour sociétés.

Année

2015

Mention

1er prix

Développé par

CCHE Nyon SA (ex-Suard Architectes SA)

Maître de l'ouvrage

Commune d'Arzier

Typologie

Construction nouvelle

Programme

Construction d’un centre communal multifonctions MINERGIE ECO destinés à la bibliothèque, l’UAPE, l’accueil de sociétés et du club des aînés.

Surface (SBP)

817 m²

Volume (SIA)

3'420 m³

Réalisation

CCHE Nyon SA (ex-Suard Architectes SA)

Concept

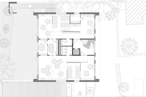
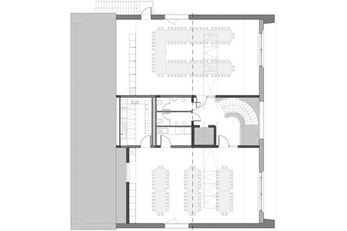
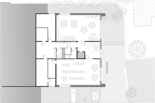
Le centre du village cherche ses limites. Le bâtiment propose de mieux le contenir par son implantation, en participant à la définition de sa façade amont. La reconnaissance de l’espace public est ainsi placée au cœur du projet. Toutes les fonctions motrices du programme, ainsi que l’entrée du bâtiment, sont orientées sur la place du village, puis le lac et les Alpes. Elles sont ensuite réparties entre les différents niveaux, selon leurs besoins d’accessibilité, de privacité ou leur usage. Ainsi, passé l'esplanade d'entrée en aval, le rez inférieur accueille la bibliothèque puis le club des aînés agrémenté d'une belle terrasse avec vue. La crèche, la garderie et l’UAPE occupent le rez supérieur afin de bénéficier de préaux privatifs de plain pied en amont. Les combles proposent ensuite deux salles pour les sociétés ; l’une d’entre elles fonctionnant comme réfectoire pour la structure d'accueil scolaire, avec cuisine semi-professionnelle et buanderie.

Dans le même esprit les façades du bâtiment rappellent le contexte bâti environnant, en proposant une interprétation contemporaine du langage traditionnel dominant en périphérie de la place. Le bâtiment neuf pourrait ainsi tout à fait être confondu avec la rénovation soignée d’un immeuble ancien.

Architecture de CCHE pour le Centre communal multifonction CCM Nyon Suisse


Durabilité

Le CCM est un parfait exemple de conception de bâtiment selon les 3 piliers du développement durable. Par la mixité générationnelle qu’il accueille et les riches échanges qu’elle induit. Par l’économie de moyen mise en œuvre en réunissant ses différentes fonctions dans un volume compact. Par son accessibilité à tous et sa localisation au centre du village et à proximité immédiate de réseaux de mobilité douce. Par sa construction efficiente et écologique.

Energie

Par respect des préoccupations énergétiques actuelles et du confort des futurs utilisateurs, la certification MINERGIE ECO a été atteinte. Les locaux sont chauffés par une pompe à chaleur air/eau, en attendant le raccordement au futur réseau de chauffage à distance communal en cours de réalisation. L'eau chaude sanitaire est essentiellement obtenue par des capteurs solaires thermiques en toiture. Une ventilation double flux à récupération d'énergie complète l'installation.

Architecture de CCHE pour le Centre communal multifonction CCM Nyon Suisse
Architecture de CCHE pour le Centre communal multifonction CCM Nyon Suisse

Matériaux

Le choix des matériaux est majoritairement orienté par la certification ciblée. La structure porteuse intérieure et le soubassement sont ainsi réalisés en béton recyclé, dont l'usage atteint globalement 87% du béton coulé utilisé. Les 2 façades en pignon sont pour leur part en construction monolithique faite de briques de béton cellulaire.

Dans une commune forestière, le bois n'a cependant pas été oublié. L'ossature et le revêtement intérieur des toitures et des façades Lac et Jura sont réalisés en sapin blanc communal. Le revêtement extérieur des façades est pour sa part en mélèze issue de la commune voisine de La Rippe tandis que la toiture est recouverte de tuiles en terre cuite du pays. Fibre de bois et laine de roche en constituent l’isolation thermique additionnée.

L'ambiance lumineuse intérieure est optimisée par de larges baies vitrées et des revêtements clairs. Des touches de couleurs vives sur 4 tons animent les différents espaces via faïences, peintures, vitrages ou mobilier. Un soin particulier est aussi apporté au confort phonique entre les différentes fonctions et acoustique des espaces.

Architecture de CCHE pour le Centre communal multifonction CCM Nyon Suisse

La bibliothèque et le club des aînés prennent ainsi place au rez inférieur à côté de l’entrée tandis que l’UAPE occupe le rez supérieur afin de bénéficier d’un préau privatif. Les façades reconnaissent le contexte bâti en proposant une interprétation contemporaine du langage dominant en périphérie de la place.

Architecture d'intérieur de CCHE pour le Centre communal multifonction CCM Nyon Suisse
Architecture d'intérieur de CCHE pour le Centre communal multifonction CCM Nyon Suisse
cche-architeArchitecture d'intérieur de CCHE pour le Centre communal multifonction CCM Nyon Suissecture-centre-communal-multifonction-ccm-010.jpg
Architecture d'intérieur de CCHE pour le Centre communal multifonction CCM Nyon Suisse
Architecture d'intérieur de CCHE pour le Centre communal multifonction CCM Nyon Suisse
Architecture d'intérieur de CCHE pour le Centre communal multifonction CCM Nyon Suisse
Retour aux projets