Multifuction communal center CCM

Arzier

The village of Arzier-Le Muids, on the slopes of the Vaud Jura, has experienced strong growth over the last thirty years, notably through an extension of its villa zone. With its 2'220 inhabitants, spread between 600 and 1000 meters of altitude, the need to complete the offer in public facilities became obvious. In parallel with the renovation of its hostel, in 2008 the municipality launched an architectural competition for the construction of a new multi-functional and multi-generation community center, designed to accommodate under one roof 21 children in a crèche/daycare center, 24 children in a UAPE (early childhood care unit), the community library, the senior citizens' club and rooms for companies.

Year

2015

Mention

1st prize

Developed by

CCHE Nyon SA (ex-Suard Architects SA)

Client

Commune of Arzier

Typology

New construction

Program

Construction of a multifunctional MINERGIE ECO communal centre for the library, the UAPE, the reception of societies and the seniors' club.

Floor area (GFA)

817 m²

Volume (SIA)

3,420 m³

Realization

CCHE Nyon SA (ex-Suard Architects SA)

Concept

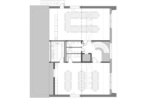
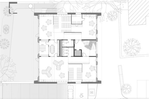
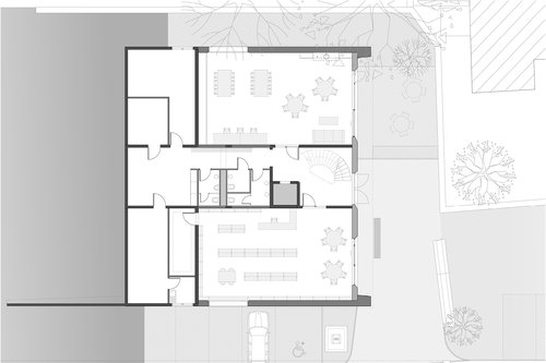
The center of the village is looking for its limits. The building proposes to better contain it by its implantation, by participating in the definition of its upstream facade. The recognition of the public space is thus placed at the heart of the project. All the driving functions of the program, as well as the building's entrance, are oriented towards the village square, then the lake and the Alps. They are then distributed between the different levels, according to their needs for accessibility, privacy or use. Thus, past the entrance esplanade downstream, the lower ground floor hosts the library and then the seniors' club with a beautiful terrace with a view. The crèche, the daycare center and the UAPE occupy the upper ground floor in order to benefit from private yards on the same level upstream. The attic then offers two rooms for companies; one of them functioning as a refectory for the school reception structure, with a semi-professional kitchen and laundry room.

In the same spirit, the facades of the building recall the surrounding built context, offering a contemporary interpretation of the traditional language dominant on the outskirts of the square. The new building could thus be completely confused with the careful renovation of an old building.

Architecture de CCHE pour le Centre communal multifonction CCM Nyon Suisse

Sustainability

The CCM is a perfect example of building design according to the 3 pillars of sustainable development. By the generational mix that it hosts and the rich exchanges that it induces. By the economy of means implemented by bringing together its various functions in a compact volume. By its accessibility to all and its location in the center of the village and in the immediate vicinity of soft mobility networks. By its efficient and ecological construction.

Energy

MINERGIE ECO certification has been achieved by respecting current energy concerns and the comfort of future users. The premises are heated by an air-to-water heat pump, pending connection to the future communal district heating network currently under construction. Domestic hot water is mainly obtained by solar thermal collectors on the roof. A double flow ventilation system with energy recovery completes the installation.

Architecture de CCHE pour le Centre communal multifonction CCM Nyon Suisse
Architecture de CCHE pour le Centre communal multifonction CCM Nyon Suisse

Materials

The choice of materials is mainly oriented by the targeted certification. The interior load-bearing structure and the substructure are thus made of recycled concrete, which is used in 87% of the cast concrete used. The 2 gable façades are in monolithic construction made of aerated concrete bricks.

In a forest community, however, wood has not been forgotten. The framework and the interior cladding of the roofs and the Lac et Jura façades are made of communal white fir. The exterior cladding of the façades is made of larch from the neighbouring commune of La Rippe while the roof is covered with local terracotta tiles. Wood fiber and rock wool constitute the added thermal insulation.

The interior lighting is optimized by large bay windows and light coverings. The different spaces are animated by touches of bright colors in 4 tones through earthenware, paint, glazing or furniture. Particular care is also taken to ensure sound comfort between the different functions and acoustics of the spaces.

Architecture de CCHE pour le Centre communal multifonction CCM Nyon Suisse

The library and the senior citizens' club are located on the lower ground floor next to the entrance, while the UAPE is located on the upper ground floor to benefit from a private courtyard. The facades recognize the built context by proposing a contemporary interpretation of the dominant language on the periphery of the square.

Architecture d'intérieur de CCHE pour le Centre communal multifonction CCM Nyon Suisse
Architecture d'intérieur de CCHE pour le Centre communal multifonction CCM Nyon Suisse
cche-architeArchitecture d'intérieur de CCHE pour le Centre communal multifonction CCM Nyon Suissecture-centre-communal-multifonction-ccm-010.jpg
Architecture d'intérieur de CCHE pour le Centre communal multifonction CCM Nyon Suisse
Architecture d'intérieur de CCHE pour le Centre communal multifonction CCM Nyon Suisse
Architecture d'intérieur de CCHE pour le Centre communal multifonction CCM Nyon Suisse
Back to projects