Multifunktions-Gemeindezentrum CCM

Arzier

Die Gemeinde Arzier-Le Muids, an den Hängen des Waadtländer Juras gelegen, hat in den letzten 30 Jahren ein starkes Wachstum erlebt, insbesondere durch eine Erweiterung ihrer Villenviertels. Ihre 2.220 Einwohner verteilen sich auf 600 bis 1.000 Meter über dem Meeresspiegel und es wurde notwendig, das Angebot an öffentlichen Einrichtungen zu vervollständigen. Parallel zur Renovierung ihres Gasthofes hat die Gemeinde 2008 einen Architekturwettbewerb für den Bau eines neuen multifunktionalen und generationenübergreifenden Gemeindezentrums ausgeschrieben, das unter einem Dach 21 Kinder in einer Kindertagesstätte, 24 Kinder in einer UAPE (Betreuung von Kindern im Vorschulalter), die Gemeindebibliothek, den Seniorenclub und Räume für Firmen unterbringen soll.

Jahr

2015

Erwähnung

1.Preis

Entwickelt von

CCHE Nyon SA (ex-Suard Architectes SA)

Bauherr

Commune of Arzier

Typologie

Neubau

Programm

Bau eines multifunktionalen MINERGIE ECO-Gemeindezentrums für die Bibliothek, die UAPE, Firmen und den Seniorenclub.

Geschossfläche (BGF)

817 qm

Volumen (SIA)

3.420 m³

Realisierung

CCHE Nyon SA (ex-Suard Architects SA)

Konzept

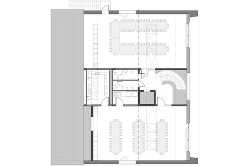
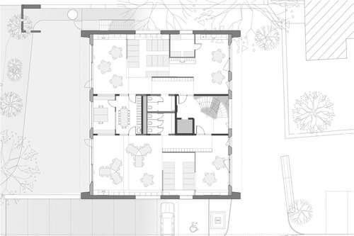
Das Zentrum der Gemeinde sucht nach ihren Grenzen. Das Gebäude sieht vor, es durch seine Lage besser einzugrenzen, indem es sich an der Gestaltung seiner vorgelagerten Fassade beteiligt. Die Wahrnehmung des öffentlichen Raums steht somit im Mittelpunkt des Projekts. Alle wichtigen Funktionen des Bauprojekts sowie der Eingang zum Gebäude sind auf den Dorfplatz, den See und die Alpen ausgerichtet. Sie werden dann auf die verschiedenen Stockwerke verteilt, je nach ihren Bedürfnissen nach Zugänglichkeit, Privatsphäre oder Nutzung. Nach der Ankunft über die abwärts gelegene Esplanade bietet das untere Erdgeschoss Zugang zur Bibliothek und zum Seniorenclub mit einer schönen Aussichtsterrasse. Die Kindertagesstätte und die UAPE nehmen das obere Erdgeschoss ein, um von den privaten, ebenerdigen Höfen oberhalb zu profitieren. Das Dachgeschoss bietet dann zwei Räume für Unternehmen; einer davon fungiert als Speisesaal für die Betreuung der Schulkinder, mit einer semi-professionellen Küche und einem Wäscheraum.

Im gleichen Sinne erinnern die Fassaden des Gebäudes an den umgebenden bebauten Hintergrund und bieten eine zeitgenössische Interpretation des traditionellen Ausdrucks, der rund um den Platz vorherrscht. Der Neubau könnte daher völlig mit der sorgfältigen Renovierung eines alten Gebäudes verwechselt werden.

Architecture de CCHE pour le Centre communal multifonction CCM Nyon Suisse


Nachhaltigkeit

Das CCM ist ein perfektes Beispiel für die Bauplanung nach den 3 Säulen der nachhaltigen Entwicklung. Durch die Generationenmischung, die es beherbergt und den reichen Austausch, den es hervorruft. Durch die Einsparung der Mittel, die durch die Kombination seiner verschiedenen Funktionen in einem kompakten Volumen umgesetzt wird. Durch seine Erreichbarkeit für alle und seine Lage im Zentrum der Gemeinde und die unmittelbare Nähe der Netzwerke für sanfte Mobilität. Durch seine effiziente und ökologische Bauweise.

Energie

Durch die Berücksichtigung der aktuellen Energiefragen und des Komforts der zukünftigen Benutzer wurde die MINERGIE ECO-Zertifizierung erreicht. Die Räume werden mit einer Luft/Wasser-Wärmepumpe beheizt, bis der Anschluss an das künftige städtische Fernwärmenetz erfolgt, das derzeit gebaut wird. Warmwasser wird hauptsächlich durch solarthermische Kollektoren auf dem Dach produziert. Eine Doppelströmungslüftung mit Energierückgewinnung vervollständigt die Installation.

Architecture de CCHE pour le Centre communal multifonction CCM Nyon Suisse
Architecture de CCHE pour le Centre communal multifonction CCM Nyon Suisse

Materialien

Die Auswahl der Materialien richtet sich hauptsächlich nach der angestrebten Zertifizierung. Die innere Tragstruktur und der Unterbau bestehen somit aus Recyclingbeton, der 87% des verwendeten Gussbetons ausmacht. Die 2 Giebelfassaden sind in monolithischer Bauweise aus Porenbetonziegeln ausgeführt.

In einer Waldgemeinde ist das Holz jedoch nicht vergessen worden. Das Gerüst und die Innenverkleidung der Dächer und der Fassaden Lac und Jura bestehen aus kommunaler Weißtanne. Die Außenverkleidung der Fassaden besteht aus Lärchenholz aus der Nachbargemeinde La Rippe, während das Dach mit lokalen Terrakottaziegeln gedeckt ist. Holzfasern und Steinwolle bilden die zusätzliche Wärmedämmung.

Das Lichtambiente im Inneren wird durch große Fenster und helle Verkleidungen optimiert. Die verschiedenen Räume werden durch leuchtende Farben in 4 Tönen belebt, wobei Steingut, Lack, Glas und Möbel eingesetzt werden. Besonderes Augenmerk wird auch auf den akustischen Komfort zwischen den verschiedenen Funktionen und die Akustik der Räume gelegt.

Architecture de CCHE pour le Centre communal multifonction CCM Nyon Suisse

Bibliothek und Seniorenclub befinden sich im unteren Erdgeschoss neben dem Eingang, während die UAPE im oberen Erdgeschoss untergebracht ist, um von einem privaten Schulhof zu profitieren. Die Fassaden berücksichtigen den baulichen Kontext, indem sie eine zeitgenössische Interpretation der dominanten Sprache im Randbereich des Platzes bieten.

Architecture d'intérieur de CCHE pour le Centre communal multifonction CCM Nyon Suisse
Architecture d'intérieur de CCHE pour le Centre communal multifonction CCM Nyon Suisse
cche-architeArchitecture d'intérieur de CCHE pour le Centre communal multifonction CCM Nyon Suissecture-centre-communal-multifonction-ccm-010.jpg
Architecture d'intérieur de CCHE pour le Centre communal multifonction CCM Nyon Suisse
Architecture d'intérieur de CCHE pour le Centre communal multifonction CCM Nyon Suisse
Architecture d'intérieur de CCHE pour le Centre communal multifonction CCM Nyon Suisse
Zurück zu Projekte