Brasserie Le Vaudois

Lausanne

Brasserie Le Vaudois : moderniser en préservant l’authenticité


La Brasserie Le Vaudois se trouve dans le centre-ville de Lausanne, à la Riponne. L’établissement a connu une transformation visant à le mettre au goût du jour tout en conservant son authenticité.

L’intervention a porté sur la rénovation de la façade, la restructuration des espaces intérieurs et un changement complet des installations CVSE. Le tout pour recréer l’atmosphère d’une brasserie traditionnelle, inspirée par l’époque du bâtiment existant.

Le chantier, mené en pleine période covid, a nécessité une gestion très rigoureuse en termes de planning, mais également en termes d’accessibilité pour acheminer les livraisons et sécuriser le périmètre dans un contexte urbain.

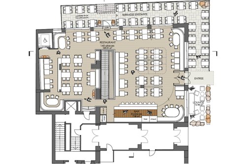
Cette brasserie « neo-traditionnelle » peut désormais accueillir 200 personnes (150 dans la salle principale et 50 dans le caveau).

Année

2021

Mention

1er prix

Procédure

Concours en procédure sélective

Développé par

CCHE Lausanne SA

Maître de l'ouvrage

SI Maison Vaudoise SA

Typologie

Transformation

Programme

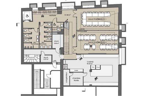
Salle principale de 150 places, nouvel escalier, caveau de 50 places, cuisine professionnelle, locaux annexes et techniques, chambre froides, nouvel ascenseur

Artiste oeuvre

Faux-plafond imprimé ("verrière") et panneaux de plexiglas gravés entre les groupe de tables : Catherine Bolle

Surface (SBP)

770 m2

Volume (SIA)

2'500 m3

Réalisation

CCHE Lausanne SA

Collaboration

Prorema et Miral Architecture - Appui pour les aménagements spécifiques au propriétaire

Architecture d'intérieur de CCHE pour la Brasserie le Vaudois Lausanne Suisse
Architecture d'intérieur de CCHE pour la Brasserie le Vaudois Lausanne Suisse

L’optimisation de l'espace, en vue d’augmenter le nombre de services, a mené au déplacement de la cuisine professionnelle au sous-sol et à la récupération de l'espace dans la salle au rez-de-chaussée. Une terrasse a été aménagée à l’extérieur, en conformité avec les demandes de la ville de Lausanne. L’acoustique, l’éclairage et la ventilation ont également été revus pour le confort des clients.

La création d’une liaison verticale au centre de l’espace a permis de dynamiser la communication entre les deux étages et d’améliorer la modularité des espaces. Le lien direct entre les deux niveaux offre une fluidité spatiale naturelle, ainsi qu'un apport supplémentaire de lumière naturelle au sous-sol.

La nouvelle salle du sous-sol est pensée comme espace pouvant être dédié au service traditionnel ou à l’accueil des groupes dans une zone plus intime. Liée esthétiquement à la salle principale, elle bénéficie néanmoins d'une ambiance et une identité qui lui sont propres. Dans un soucis de cohérence, le revêtement de sol entre la salle existante et la nouvelle est unifié avec un nouveau parquet.

Architecture d'intérieur de CCHE pour la Brasserie le Vaudois Suisse
Architecture d'intérieur de CCHE pour la Brasserie le Vaudois Suisse
Architecture d'intérieur de CCHE pour la Brasserie le Vaudois Suisse
Architecture d'intérieur de CCHE pour la Brasserie le Vaudois Lausanne Suisse
Architecture d'intérieur de CCHE pour la Brasserie le Vaudois Lausanne Suisse

Aménagement

La recherche de l'optimisation de l'espace pour augmenter le nombre de services amène à une réorganisation de la zone de la cuisine et du bar et à la récupération de l'espace dans la salle au rez-de-chaussée.

L'espace brasserie a ainsi gagné en cohérence et en luminosité et a acquis un vrai lien avec le caveau au sous-sol. Plus qu'une simple circulation, le nouvel escalier est devenu l'élément central qui invite les visiteurs à rejoindre l'étage inférieur.

Dans la salle principale, une oeuvre de la plasticienne lausannoise Catherine Bolle ornemente l’imposante verrière. Les impressions avec les motifs sont inspirés par la thématique de la glace se trouvant au centre du plafond tendu rétroéclairé. Les matrices gravées ont été posées sur les éléments de séparations entre certains groupes de table, en créant un filtre qui garantit à la fois l’intimité des clients et la vision vers l’extérieur à travers les tableaux translucides.

Architecture d'intérieur de CCHE pour la Brasserie le Vaudois Lausanne Suisse
Architecture d'intérieur de CCHE pour la Brasserie le Vaudois Lausanne Suisse
Architecture d'intérieur de CCHE pour la Brasserie le Vaudois Lausanne Suisse
Architecture d'intérieur de CCHE pour la Brasserie le Vaudois Lausanne Suisse


Le déplacement du bar privilégie la communication verticale directe avec la cuisine et lui confère une position stratégique entre les différentes salles, les entrées et le lounge.

Brasserie Le Vaudois - 002
Architecture d'intérieur de CCHE pour la Brasserie le Vaudois Lausanne Suisse
Architecture d'intérieur de CCHE pour la Brasserie le Vaudois Lausanne Suisse
Brasserie Le Vaudois - 02
Architecture d'intérieur de CCHE pour la Brasserie le Vaudois Lausanne Suisse

Découvrir l'intérieur de la brasserie Le Vaudois en réalité virtuelle

Le Vaudois
Architecture d'intérieur de CCHE pour la Brasserie le Vaudois Suisse
Architecture d'intérieur de CCHE pour la Brasserie le Vaudois Suisse
Architecture d'intérieur de CCHE pour la Brasserie le Vaudois Suisse
Architecture d'intérieur de CCHE pour la Brasserie le Vaudois Suisse
Architecture d'intérieur de CCHE pour la Brasserie le Vaudois Suisse

Images du projet

Retour aux projets