Brasserie Le Vaudois

Lausanne

Brasserie Le Vaudois: Modernisieren und dabei die Authentizität bewahren.

Die Brasserie Le Vaudois befindet sich im Stadtzentrum von Lausanne, in der Riponne. Das Lokal wurde einem Umbau unterzogen, um es auf den neuesten Stand zu bringen und gleichzeitig seine Authentizität zu bewahren.

Der Eingriff umfasste die Sanierung der Fassade, die Umstrukturierung der Innenräume und einen kompletten Austausch der CVSE-Anlagen. Dadurch sollte die Atmosphäre einer traditionellen Brauerei wiederhergestellt werden, die sich an der Epoche des bestehenden Gebäudes orientiert.

Die Baustelle, die mitten in der Covid-Periode durchgeführt wurde, erforderte ein sehr rigoroses Management in Bezug auf die Planung, aber auch in Bezug auf die Zugänglichkeit, um die Lieferungen zuzustellen und die Umgebung in einem städtischen Kontext zu sichern.

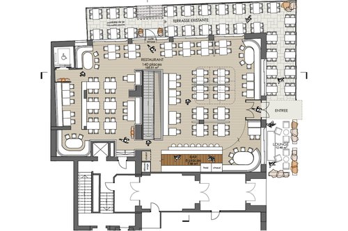
Die "neo-traditionelle" Brauerei bietet nun Platz für 200 Personen (150 im Hauptraum und 50 im Weinkeller).

Jahr

2021

Erwähnung

1. Preis

Verfahren

Wettbewerbe im selektiven Verfahren

Entwickelt von

CCHE Lausanne SA

Bauherr

SI Maison Vaudoise SA

Typologie

Umbau

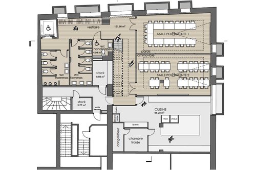
Programm

Hauptsaal mit 150 Plätzen, neue Treppe, Weinkeller mit 50 Plätzen, professionelle Küche, Neben- und Technikräume, Kühlräume, neuer Aufzug

Künstlerische Arbeit

Bedruckte Zwischendecke ("Glasdach") und gravierte Plexiglasplatten zwischen den Tischgruppen: Catherine Bolle.

Geschossfläche (BGF)

770 qm

Volumen (SIA)

2'500 m3

Realisierung

CCHE Lausanne SA

Zusammenarbeit

Prorema und Miral Architecture - Unterstützung für eigentümerspezifische Anpassungen

Architecture d'intérieur de CCHE pour la Brasserie le Vaudois Lausanne Suisse
Architecture d'intérieur de CCHE pour la Brasserie le Vaudois Lausanne Suisse

Die Optimierung des Raums mit dem Ziel, die Anzahl der Restaurantservices zu erhöhen, führte zur Verlegung der Großküche in das Untergeschoss und zur Rückgewinnung des Raums im Saal im Erdgeschoss. Im Außenbereich wurde eine Terrasse angelegt, die den Anforderungen der Stadt Lausanne entsprach. Akustik, Beleuchtung und Belüftung wurden ebenfalls überarbeitet, um den Komfort der Kunden zu erhöhen.

Durch die Schaffung einer vertikalen Verbindung in der Mitte des Raumes wurde die Kommunikation zwischen den beiden Etagen dynamisiert und die Modularität der Räume verbessert. Die direkte Verbindung zwischen den beiden Ebenen bietet einen natürlichen Raumfluss sowie eine zusätzliche Versorgung des Untergeschosses mit Tageslicht.

Der neue Saal im Untergeschoss ist als Raum gedacht, der dem traditionellen Service oder dem Empfang von Gruppen in einem intimeren Bereich gewidmet werden kann. Er ist ästhetisch mit dem Hauptsaal verbunden, verfügt aber dennoch über eine eigene Atmosphäre und Identität. Im Interesse der Kohärenz wurde der Bodenbelag zwischen dem bestehenden und dem neuen Saal mit einem neuen Parkettboden vereinheitlicht.

Architecture d'intérieur de CCHE pour la Brasserie le Vaudois Suisse
Architecture d'intérieur de CCHE pour la Brasserie le Vaudois Suisse
Architecture d'intérieur de CCHE pour la Brasserie le Vaudois Suisse
Architecture d'intérieur de CCHE pour la Brasserie le Vaudois Lausanne Suisse
Architecture d'intérieur de CCHE pour la Brasserie le Vaudois Lausanne Suisse

Einrichtung

Das Bestreben, den Raum zu optimieren, um die Anzahl der Service zu erhöhen, führt zu einer Neuorganisation des Küchen- und Barbereichs und zur Rückgewinnung des Raums im Saal im Erdgeschoss.

Der Brasseriebereich hat dadurch an Kohärenz und Helligkeit gewonnen und eine echte Verbindung mit dem Weinkeller im Untergeschoss erhalten. Die neue Treppe ist mehr als nur ein Umlauf, sie wurde zum zentralen Element, das die Besucher einlädt, in die untere Etage zu gelangen.

Im Hauptsaal schmückt ein Werk der Lausanner Künstlerin Catherine Bolle das imposante Glasdach. Die Drucke mit den Motiven sind von der Thematik des Eises inspiriert, das sich im Zentrum der hinterleuchteten Spanndecke befindet. Die gravierten Matrizen wurden auf den Trennelementen zwischen bestimmten Tischgruppen angebracht, wodurch ein Filter entsteht, der sowohl die Privatsphäre der Gäste als auch den Blick nach draußen durch die lichtdurchlässigen Tafeln gewährleistet.

Architecture d'intérieur de CCHE pour la Brasserie le Vaudois Lausanne Suisse
Architecture d'intérieur de CCHE pour la Brasserie le Vaudois Lausanne Suisse
Architecture d'intérieur de CCHE pour la Brasserie le Vaudois Lausanne Suisse
Architecture d'intérieur de CCHE pour la Brasserie le Vaudois Lausanne Suisse


Die Verlagerung der Bar bevorzugt die direkte vertikale Kommunikation mit der Küche und verleiht ihr eine strategische Position zwischen den verschiedenen Räumen, den Eingängen und der Lounge.

Brasserie Le Vaudois - 002
Architecture d'intérieur de CCHE pour la Brasserie le Vaudois Lausanne Suisse
Architecture d'intérieur de CCHE pour la Brasserie le Vaudois Lausanne Suisse
Brasserie Le Vaudois - 02
Architecture d'intérieur de CCHE pour la Brasserie le Vaudois Lausanne Suisse

Entdecken Sie das Innere der Brasserie Le Vaudois in virtueller Realität.

Le Vaudois
Architecture d'intérieur de CCHE pour la Brasserie le Vaudois Suisse
Architecture d'intérieur de CCHE pour la Brasserie le Vaudois Suisse
Architecture d'intérieur de CCHE pour la Brasserie le Vaudois Suisse
Architecture d'intérieur de CCHE pour la Brasserie le Vaudois Suisse
Architecture d'intérieur de CCHE pour la Brasserie le Vaudois Suisse

Bilder des Projekts

Zurück zu Projekte