Centre de Biométrie du Flon

Lausanne

Dans le cadre de la modernisation des machines de biométrie, le Canton de Vaud a mandaté le bureau CCHE Lausanne SA pour le réaménagement de la partie publique du Centre de biométrie et des documents d'identité du canton de Vaud dans le quartier du Flon à Lausanne.

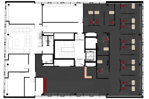
Le centre est un lieu de grande fréquentation pouvant accueillir jusqu’à 1000 personnes par jour. Ces dernières s’y rendent principalement pour la création ou le renouvellement de leurs documents d’identité (autant pour les nationaux que pour les étrangers).

Avec un nombre de visiteurs si élevé, la gestion du flux des personnes ainsi que la signalétique d’orientation ont nécessité une attention particulière afin de répondre aux besoins de l’exploitant , le SPOP – Service de la population. Ce travail minutieux a été réalisé afin que les administrés puissent se rendre facilement dans la bonne cabine et ainsi réaliser leurs documents d’identité rapidement dans le but de pouvoir accueillir un si grand nombre de personnes.

Le centre accueillant des personnes de tout âge, des solutions pour pouvoir palier aux besoins spécifiques de chacun ont dû être trouvées. Ainsi, des lits pour bébé, intégrés dans les cloisons de séparation et dépliables au besoin, ont été installés. Autre exemple, la mise en place d’un tabouret développé sur mesure pour le projet, sert aux plus jeunes qui peuvent se mettre debout afin d’être photographiés par la machine de biométrie mais aussi aux personnes avec difficultés ayant besoin de pouvoir s’assoir lors du processus. Ce même tabouret sert également de support pour le lit bébé lors que ce dernier est ouvert.

L’ensemble du projet a été développé sur mesure pour répondre aux besoins du centre de biométrie. Le choix des matériaux et des teintes pour les espaces de travail des collaborateurs a été pensé afin que ces derniers aient un outil de travail agréable, moderne et en adéquation avec leur manière de travail. Il en va de même pour les espaces publiques accueillant les administrés. Les murs rouges et blancs ainsi que les éléments acoustiques blancs au plafond rappellent les couleurs du drapeau Suisse. Sans oublier les empreintes digitales sur les murs qui sont en lien direct avec la fonction du lieu.

Developed by

CCHE Lausanne SA

Client

DGIP-Direction générale des immeubles et du patrimoine

Typology

Transformation

Program

Réaménagement intérieur (mobilier et machines) de la zone destinée au public du Centre de Biométrie du Flon

Floor area (GFA)

228 m2

Realization

CCHE Lausanne SA

Architecture et transformation de CCHE pour le centre biométrique du flon à Lausanne Suisse
Architecture et transformation de CCHE pour le centre biométrique du flon à Lausanne Suisse
Architecture et transformation de CCHE pour le centre biométrique du flon à Lausanne Suisse
Architecture et transformation de CCHE pour le centre biométrique du flon à Lausanne Suisse
Architecture et transformation de CCHE pour le centre biométrique du flon à Lausanne Suisse

Signalétique

Réalisation © CCHE Design

Architecture et transformation de CCHE pour le centre biométrique du flon à Lausanne Suisse
Architecture et transformation de CCHE pour le centre biométrique du flon à Lausanne Suisse
Architecture et transformation de CCHE pour le centre biométrique du flon à Lausanne Suisse
Architecture et transformation de CCHE pour le centre biométrique du flon à Lausanne Suisse
Architecture et transformation de CCHE pour le centre biométrique du flon à Lausanne Suisse

Plans

Architecture et transformation de CCHE pour le centre biométrique du flon à Lausanne Suisse
Architecture et transformation de CCHE pour le centre biométrique du flon à Lausanne Suisse
Architecture et transformation de CCHE pour le centre biométrique du flon à Lausanne Suisse
Back to projects