Villas La Lutrive

Lutry

S’imbriquer pour mieux s’ouvrir…

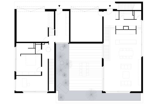
Paradoxalement, l’imbrication des surfaces distribuées sur deux niveaux permet une ouverture maximale sur le lac Léman. Les étages légèrement décalés permettent à chacune des habitations de profiter de la lumière naturelle jusqu’à plus soif, d’est en ouest. Pour pallier au manquement du terrain, une terrasse a été construite sur l’un des toits plats et l’autre au beau milieu de l’entité.

En décalant légèrement les quatre niveaux et en créant une façade borgne pour l’un des appartements, les deux familles peuvent jouir d’une totale intimité. Latérales au bâtiment, deux petites terrasses d’env. 20 m² viennent encore compléter les espaces ouverts et s’inscrivent parfaitement dans le paysage environnant.

Année

2007

Développé par

CCHE Lausanne SA

Maître de l'ouvrage

Client privé

Programme

2 villas mitoyennes

Surface (SBP)

534 m²

Volume (SIA)

2'980 m³

Réalisation

CCHE Lausanne SA

Architecture de CCHE pour les Villas la Lutrive Suisse
Architecture de CCHE pour les Villas la Lutrive Suisse
Architecture de CCHE pour les Villas la Lutrive Suisse
Architecture de CCHE pour les Villas la Lutrive Suisse
cche-architecture-villas-la-lutrive-006.jpg
Architecture de CCHE pour les Villas la Lutrive Suisse
Architecture de CCHE pour les Villas la Lutrive Suisse
Architecture de CCHE pour les Villas la Lutrive Suisse
Architecture de CCHE pour les Villas la Lutrive Suisse
Architecture de CCHE pour les Villas la Lutrive Suisse
Architecture de CCHE pour les Villas la Lutrive Suisse
Architecture de CCHE pour les Villas la Lutrive Suisse
Architecture de CCHE pour les Villas la Lutrive Suisse
Architecture de CCHE pour les Villas la Lutrive Suisse
Architecture de CCHE pour les Villas la Lutrive Suisse
Architecture de CCHE pour les Villas la Lutrive Suisse

Plans

Architecture de CCHE pour les Villas la Lutrive Suisse

coupe

Architecture de CCHE pour les Villas la Lutrive Suisse
Architecture de CCHE pour les Villas la Lutrive Suisse
Architecture de CCHE pour les Villas la Lutrive Suisse

Plan de situation, étages type

Retour aux projets