Villen La Lutrive

Lutry

Verschachteln, um sich besser zu öffnen...

Paradoxerweise ermöglicht die Verschachtelung der auf zwei Ebenen verteilten Flächen eine maximale Öffnung zum Genfersee. Die leicht versetzten Stockwerke ermöglichen es jeder Wohnung, das natürliche Licht bis zum Überdruss zu nutzen, von Osten nach Westen. Um den Mangel des Geländes auszugleichen, wurde auf einem der Flachdächer eine Terrasse gebaut, während das andere in der Mitte des Gebildes liegt.

Durch eine leichte Verschiebung der vier Ebenen und die Schaffung einer Blindfassade für eine der Wohnungen können die beiden Familien absolute Privatsphäre genießen. Seitlich des Gebäudes befinden sich zwei kleine Terrassen von ca. 20 m², die die offenen Räume ergänzen und sich perfekt in die umliegende Landschaft einfügen.

Jahr

2007

Entwickelt von

CCHE Lausanne SA

Bauherr

Privater Auftraggeber

Programm

2 Doppelhaushälften

Geschossfläche (BGF)

534 qm

Volumen (SIA)

2'980 m³

Realisierung

CCHE Lausanne SA

Architecture de CCHE pour les Villas la Lutrive Suisse
Architecture de CCHE pour les Villas la Lutrive Suisse
Architecture de CCHE pour les Villas la Lutrive Suisse
Architecture de CCHE pour les Villas la Lutrive Suisse
cche-architecture-villas-la-lutrive-006.jpg
Architecture de CCHE pour les Villas la Lutrive Suisse
Architecture de CCHE pour les Villas la Lutrive Suisse
Architecture de CCHE pour les Villas la Lutrive Suisse
Architecture de CCHE pour les Villas la Lutrive Suisse
Architecture de CCHE pour les Villas la Lutrive Suisse
Architecture de CCHE pour les Villas la Lutrive Suisse
Architecture de CCHE pour les Villas la Lutrive Suisse
Architecture de CCHE pour les Villas la Lutrive Suisse
Architecture de CCHE pour les Villas la Lutrive Suisse
Architecture de CCHE pour les Villas la Lutrive Suisse
Architecture de CCHE pour les Villas la Lutrive Suisse

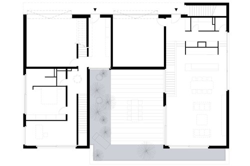
Pläne

Architecture de CCHE pour les Villas la Lutrive Suisse

Schnitt

Architecture de CCHE pour les Villas la Lutrive Suisse
Architecture de CCHE pour les Villas la Lutrive Suisse
Architecture de CCHE pour les Villas la Lutrive Suisse

Lageplan, typische Stockwerke

Zurück zu Projekte