Unimed

Ecublens

Le bâtiment d’Unimed SA s’inscrit dans la revitalisation d’un site industriel à travers le nouveau plan d’aménagement « Parcelle 79-Epenex », un futur quartier destiné à la réalisation d’activités compatibles avec l’habitat environnant, ainsi qu’à la mise en place d’espaces collectifs d’usage public et privé.

Cet immeuble a été développé et réalisé pour les besoins spécifiques de l'entreprise Unimed SA, figurant parmi les sociétés suisses leaders et actives dans le secteur biomédical et la production d'instruments de pointe pour les domaines médicaux et pharmacologiques.

Les façades minutieusement parées de leur écrin métallique jouant avec une densité de perforation variable, ne sont pas sans rappeler le cœur de métier de la société Unimed SA.

La morphologie vise a créer une couture et un lien cohérent avec les quartiers avoisinant, notamment par l’intégration d’une place publique animée et perméable et d’un rez-de-chaussée ouvert accueillant un tea-room. La création d’une entrée commune sur le front de la place renforce le dynamisme du rez-de-chaussée, alors que les livraisons sont entièrement assurées par l'accès au nord de la parcelle.

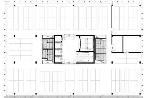
Le bâtiment s’érige sur 6 niveaux hors sol, un R+5 dont un en attique avec terrasse extérieure avec marquise, et deux niveaux de sous-sols.

En optant pour une structure poteaux dalle, la volonté fut de libérer le plan de la contrainte liée à un cloisonnement porteur et rigide afin d’offrir une grande liberté d’occupation et d’installation des process de production. Seuls les noyaux de cage d’escalier/ascenseur fixent le plan en leur centre, permettant un usage libre en couronne tout autour ainsi qu’une subdivision flexible des plateaux. Les compositions de dalles ont été réduites à leur strict minimum afin de minimiser le volume bâti tout en maximisant les hauteurs libres dans les étages afin d’y intégrer l’épaisse couche technique.

Année

2021

Développé par

CCHE Lausanne SA

Maître de l'ouvrage

Unimed SA

Typologie

Bâtiment industriel

Programme

Affectation en surfaces commerciales, administratives et activités de production
Bâtiment mutli-utilisateurs
Fabrication + sous-traitance articles médicaux

Surface (SBP)

8'445 m2

Volume (SIA)

33'840 m3

Réalisation

Complex Bau AG (direction de travaux EG de l’immeuble)
CCHE Lausanne SA (développement de projet et aménagements intérieur)

Architecture de CCHE pour le bâtiment administratif Unimed Suisse

L’enveloppe du bâtiment ainsi que les installations techniques permettent de garantir le respect des exigences et les standards du label Minergie. Les façades expriment clairement le contrecœur par un motif de percement sur le bandeau en finition alu éloxé. Son côté structuré et technique marié au métal et ponctué par le jeu de perforation rappelle et souligne la matière travaillée par Unimed.

Architecture de CCHE pour le bâtiment administratif Unimed Suisse
Unimed etx. 1

Tous les aménagements intérieurs, tels que le concept d’éclairage, le mobilier, les principes de distribution, installations électriques, ventilation, acoustique etc…toute la technicité avec laquelle il a fallu composer, ont dû répondre aux diverses contraintes techniques et pouvant s’adapter à chaque cas de figure tout en offrant une proposition d’ensemble cohérent.

L’éclairage est linéaire, rectangulaire avec un habillage latéral et une sous-face lisse. C’est un produit qui épouse différentes géométries et orientations et qui se décline de manières circulaire et rectangulaire, soit suspendu, encastré ou collé sous dalle. Ces luminaires accompagnent essentiellement les corridors en couronne autour des noyaux et ponctuent ensuite de manière perpendiculaire les ateliers de production et les bureaux.

Dans le cadre du savoir-faire d’Unimed et de la maîtrise du métal, certains éléments de mobilier et de finitions intérieures ont été réalisés en Inox.

L’ensemble de la matérialité du bâtiment, des sols au plafond, traduit un environnement à la fois introverti et affirmé, associé à des touches brillantes et métallisées pour faire ressortir le design industriel.

Unimed int. 1
Architecture de CCHE pour le bâtiment administratif Unimed Suisse
Architecture de CCHE pour le bâtiment administratif Unimed Suisse
Architecture de CCHE pour le bâtiment administratif Unimed Suisse
Architecture de CCHE pour le bâtiment administratif Unimed Suisse
Architecture de CCHE pour le bâtiment administratif Unimed Suisse

Signalétique

Unimed etx. 2
Retour aux projets