Unimed

Ecublens

Das Gebäude von Unimed SA ist Teil der Revitalisierung eines Industriestandorts durch den neuen Bebauungsplan "Parcelle 79-Epenex", ein zukünftiges Quartier, das für die Realisierung von Aktivitäten bestimmt ist, die mit der umgebenden Wohnbebauung vereinbar sind, sowie für die Einrichtung von Gemeinschaftsräumen für die öffentliche und private Nutzung.

Das Gebäude wurde für die spezifischen Bedürfnisse des Unternehmens Unimed SA entwickelt und gebaut, das zu den führenden Schweizer Unternehmen gehört, die im biomedizinischen Sektor tätig sind und hochmoderne Instrumente für den medizinischen und pharmakologischen Bereich herstellen.

Die sorgfältig gestalteten Fassaden mit ihrem Metallgehäuse, das mit einer variablen Lochdichte spielt, erinnern an das Kerngeschäft der Unimed AG.

Die Morphologie zielt darauf ab, eine Naht und eine kohärente Verbindung mit den umliegenden Quartieren zu schaffen, insbesondere durch die Integration eines belebten und durchlässigen öffentlichen Platzes und eines offenen Erdgeschosses, in dem ein Tea-Room untergebracht ist. Die Schaffung eines gemeinsamen Eingangs an der Vorderseite des Platzes verstärkt die Dynamik des Erdgeschosses, während die Anlieferung vollständig über den Zugang im Norden des Grundstücks abgewickelt wird.

Das Gebäude erstreckt sich über 6 oberirdische Stockwerke, ein R+5, wovon eines ein Penthouse mit Außenterrasse mit Markise ist, und zwei Untergeschosse.

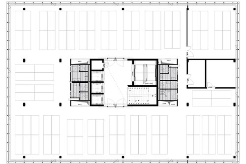
Durch die Entscheidung für eine Pfosten-Riegel-Konstruktion sollte der Grundriss von den Zwängen einer tragenden und starren Trennwand befreit werden, um eine große Freiheit bei der Belegung und der Einrichtung der Produktionsprozesse zu bieten. Nur die Treppenhaus-/Aufzugskerne fixieren den Grundriss in ihrer Mitte, was eine freie Nutzung in Form von Kränzen rundherum sowie eine flexible Unterteilung der Etagen ermöglicht. Die Plattenzusammensetzungen wurden auf ein absolutes Minimum reduziert, um das gebaute Volumen zu minimieren und gleichzeitig die freien Höhen in den Etagen zu maximieren, um die dicke technische Schicht zu integrieren.

Jahr

2021

Entwickelt von

CCHE Lausanne SA

Bauherr

Unimed SA

Typologie

Industrielles Gebäude

Programm

Nutzung als Geschäfts- und Verwaltungsflächen sowie Produktionsaktivitäten.
Gebäude mit mehreren Nutzern
Herstellung + Zulieferung von medizinischen Artikeln

Geschossfläche (BGF)

8.445 m2

Volumen (SIA)

33.840 m3

Realisierung

Complex Bau AG (Bauleitung EG des Gebäudes)
CCHE Lausanne SA (Projektentwicklung und Innenausbau)

Architecture de CCHE pour le bâtiment administratif Unimed Suisse

Die Gebäudehülle sowie die technischen Installationen sorgen dafür, dass die Anforderungen und Standards des Minergie-Labels eingehalten werden. Die Fassaden drücken das Gegenherz durch ein Durchbruchmuster auf dem Band in eloxiertem Alu-Finish deutlich aus. Seine strukturierte und technische Seite, die mit dem Metall kombiniert und durch das Spiel der Perforation punktiert wird, erinnert und betont das von Unimed verarbeitete Material.

Architecture de CCHE pour le bâtiment administratif Unimed Suisse
Unimed etx. 1

Alle Innenausstattungen, wie das Beleuchtungskonzept, die Möbel, die Verteilungsprinzipien, die elektrischen Installationen, die Belüftung, die Akustik usw., die ganze Technik, mit der man sich auseinandersetzen musste, mussten den verschiedenen technischen Zwängen entsprechen und sich an jeden Fall anpassen können, wobei sie einen Vorschlag für ein kohärentes Ganzes bieten mussten.

Die Leuchte ist linear, rechteckig, mit einer Seitenverkleidung und einer glatten Unterseite. Es handelt sich um ein Produkt, das verschiedene Geometrien und Orientierungen annimmt und in runder und rechteckiger Form erhältlich ist, entweder als Pendelleuchte, Einbauleuchte oder unter der Decke verklebt. Diese Leuchten begleiten vor allem die Korridore um die Kerne herum und punktieren dann rechtwinklig die Produktionsstätten und Büros.

Im Rahmen des Know-hows von Unimed und der Beherrschung von Metall wurden einige Möbelstücke und Innenausstattungen aus Edelstahl gefertigt.

Die gesamte Materialität des Gebäudes, vom Boden bis zur Decke, spiegelt eine introvertierte und zugleich selbstbewusste Umgebung wider, die mit glänzenden und metallischen Akzenten kombiniert wurde, um das Industriedesign hervorzuheben.

Unimed int. 1
Architecture de CCHE pour le bâtiment administratif Unimed Suisse
Architecture de CCHE pour le bâtiment administratif Unimed Suisse
Architecture de CCHE pour le bâtiment administratif Unimed Suisse
Architecture de CCHE pour le bâtiment administratif Unimed Suisse
Architecture de CCHE pour le bâtiment administratif Unimed Suisse

Wettbewerb

Unimed etx. 2
Zurück zu Projekte