Quai de Copet 5

Vevey

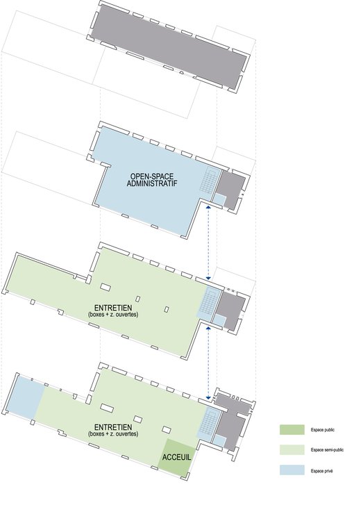
Das am Ufer des Veveyse gelegene ehemalige Umspannwerk wurde 1909 erbaut und ist ein Relikt des Heimatstils. Der Umbau des Gebäudes hatte zum Ziel, Verwaltungsräume für das Regionale Arbeitsvermittlungszentrum Vevey sowie vier Studios anstelle von zwei Wohnungen im obersten Stockwerk einzurichten. Der Respekt vor der Bausubstanz und den Empfehlungen des Denkmalschutzes durch die Erhaltung und Aufwertung des Gebäudes und seines Profils war eine der Herausforderungen des Projekts. Im Gebäudeinneren mussten zwei unterschiedliche vertikale Zirkulationen geplant werden, um der Mischung des Programms gerecht zu werden. Ein gemeinsamer, schlüsselbetriebener Aufzug bietet den Nutzern eine einfache Fortbewegung und bewahrt gleichzeitig ihre Privatsphäre. Das Energiekonzept sollte effizient und umweltfreundlich sein. Alle Fenster wurden ausgetauscht, das Erdgeschoss von innen isoliert und das Gebäude ist nun an das Fernwärmenetz angeschlossen.

Jahr

2021

Entwickelt von

CCHE Lausanne SA
CCHE Nyon SA

Bauherr

Retraites Populaires

Typologie

Büros und Wohnungen

Programm

Büros, Cafeteria, Empfang, 4 Studios

Verfahren

Direktes Mandat

Geschossfläche (BGF)

1.582 m2

Volumen (SIA)

5.443 m3

Realisierung

CCHE Lausanne SA

Transformation et réalisation de CCHE pour le Quai de Copet 5 à Vevey Suisse
Transformation et réalisation de CCHE pour le Quai de Copet 5 à Vevey Suisse
Transformation et réalisation de CCHE pour le Quai de Copet 5 à Vevey Suisse
Transformation et réalisation de CCHE pour le Quai de Copet 5 à Vevey Suisse
Transformation et réalisation de CCHE pour le Quai de Copet 5 à Vevey Suisse
Transformation et réalisation de CCHE pour le Quai de Copet 5 à Vevey Suisse
Transformation et réalisation de CCHE pour le Quai de Copet 5 à Vevey Suisse
Transformation et réalisation de CCHE pour le Quai de Copet 5 à Vevey Suisse
Transformation et réalisation de CCHE pour le Quai de Copet 5 à Vevey Suisse
Transformation et réalisation de CCHE pour le Quai de Copet 5 à Vevey Suisse
Transformation et réalisation de CCHE pour le Quai de Copet 5 à Vevey Suisse

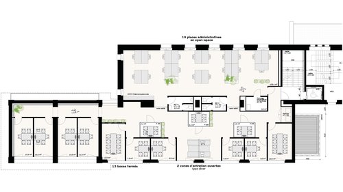
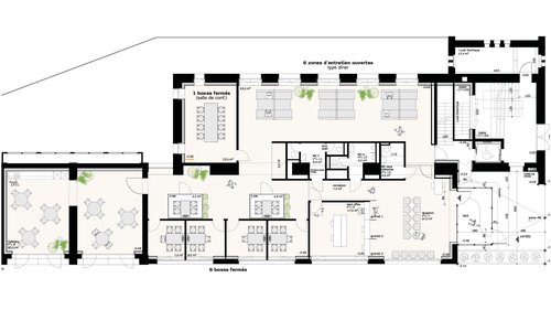
Maßstab 1:100: Erdgeschoss ,1. Stock, 2.

Transformation et réalisation de CCHE pour le Quai de Copet 5 à Vevey Suisse
Transformation et réalisation de CCHE pour le Quai de Copet 5 à Vevey Suisse

3D-Bild des Projekts

Transformation et réalisation de CCHE pour le Quai de Copet 5 à Vevey Suisse
Transformation et réalisation de CCHE pour le Quai de Copet 5 à Vevey Suisse
Zurück zu Projekte