Le Parc de Staël

Coppet

A quelques pas du Château de Coppet, véritable monument historique où a résidé Madame de Staël, un projet de trois immeubles de logements de haut standing se développe au milieu d’un écrin de verdure, avec le Léman à portée de main et les Alpes en arrière-plan.

Les nouvelles constructions qui composent « Le Parc de Staël » bénéficient donc d’une situation exceptionnelle et inspirante pour l’architecture. Les bâtiments sont ainsi disposés de manière à préserver les espaces verts entre et autour du bâti, mais aussi pour garantir des perspectives dégagées de part et d’autre, vers le paysage bucolique et vers le château emblématique. De légers décalages volumétriques permettent de renforcer l’idée de pavillons dans un parc, mettant en avant la présence des arbres.

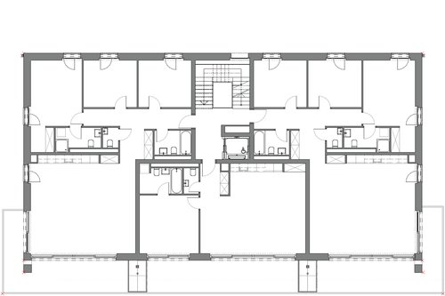
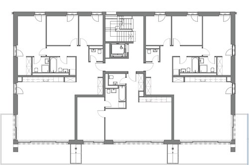
De forme simple et calme, les immeubles offrent des typologies à la fois spacieuses et rationnelles, offrant ainsi une grande flexibilité d’aménagements intérieurs. Chaque appartement a également un généreux prolongement extérieur offrant une vue panoramique et profitant de la course solaire. Au pied des bâtiments, certains appartements ont l’avantage d’un grand espace de jardin, agrémenté de végétation d’essences indigènes. Parmi les 35 appartements à disposition, une certaine diversité d’ambiance est ainsi proposée en plus d’une grande variété de typologies, permettant aux futur.e.s habitant.e.s de trouver la perle rare.

Outre les espaces privés, le projet est également agrémenté d’espaces collectifs et inclusifs : place de jeux dans la clairière, espace de fitness avec vue sur le paysage, sentier didactique dans la forêt, espaces de détentes le long du cheminement principal ou encore locaux de vélos et de poussettes. L’entier de la surface au sol est dédié à la mobilité douce, les voitures trouvant leur place dans un sous-sol accueillant, éclairé ponctuellement par de la lumière naturelle.

Plus d'infos sur : parcdestael.ch

Année

En cours

Développé par

CCHE Nyon SA

Maître de l'ouvrage

NDI EPSILON – p/a Naef Participations Financières

Programme

PPE de haut standing

Mandat

Direct

Surface (SBP)

4'956 m2

Volume (SIA)

28'450 m3

Réalisation

CCHE Nyon SA

Architecture de CCHE pour le projet Le Parc de Staël à Coppet Suisse

Le projet cherche également à s’inscrire dans son époque avec une architecture à la fois audacieuse et humble, durable et élégante. Dans ce sens, les façades sont composées d’un revêtement pérenne et écologique, en briquette de tonalité claire. Ce choix de matériau et de petits modules confère également une échelle humaine aux immeubles. Les façades sont composées d’une structure résistante en briques CAPO, pour minimiser l’empreinte carbone, avec une isolation au sein même des briques. Les vitrages et garde-corps sont assortis aux teintes donnant à l’édifice une élégance contemporaine.

Architecture de CCHE pour le projet Le Parc de Staël à Coppet Suisse

Le respect de l’environnement dans le cadre du développement durable sera aussi soigné. Le bâtiment atteindra les exigences d’une certification énergétique de type Minergie-P. La production de chaleur sera faite par des sondes géothermiques et sera complétée par l’installation de panneaux solaires photovoltaïques en toiture. Afin d’assurer un ouvrage de qualité répondant aux exigences en vigueur, des ingénieurs spécialisés en structure, installations techniques CVSE, sécurité incendie, thermique, paysage et acoustique ont été mandatés avec nous pour que la réalisation du projet soit une réussite durable et une fierté autant de ses constructeurs que de ses futurs résident.e.s.

Architecture de CCHE pour le projet Le Parc de Staël à Coppet Suisse

Plan d'implantation

Architecture de CCHE pour le projet Le Parc de Staël à Coppet Suisse
Architecture de CCHE pour le projet Le Parc de Staël à Coppet Suisse
Architecture de CCHE pour le projet Le Parc de Staël à Coppet Suisse

Plans étages types : bâtiment A, bâtiment B, bâtiment C

Retour aux projets