Der Parc de Staël

Coppet

Nur wenige Schritte vom Schloss Coppet entfernt, einem echten historischen Monument, in dem Madame de Staël residierte, entsteht inmitten einer grünen Oase ein Projekt mit drei Wohngebäuden mit hohem Standard, mit dem Genfersee in Reichweite und den Alpen im Hintergrund.

Die Neubauten, die den „Parc de Staël“ bilden, profitieren also von einer außergewöhnlichen und inspirierenden Lage für die Architektur. Die Gebäude sind so angeordnet, dass die Grünflächen zwischen und um die Gebäude herum erhalten bleiben, aber auch um freie Ausblicke auf beiden Seiten zu gewährleisten, auf die idyllische Landschaft und auf das symbolträchtige Schloss. Durch leichte volumetrische Verschiebungen wird die Idee von Pavillons in einem Park verstärkt und die Präsenz der Bäume hervorgehoben.

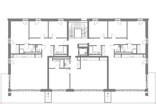
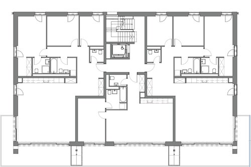
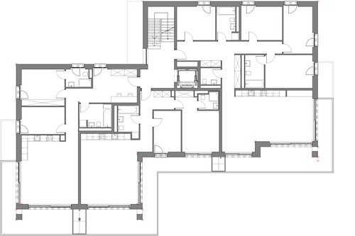
Mit ihrer einfachen und ruhigen Form bieten die Gebäude Typologien, die gleichzeitig geräumig und rational sind und somit eine große Flexibilität bei der Inneneinrichtung bieten. Jede Wohnung hat außerdem eine großzügige Außenverlängerung, die einen Panoramablick bietet und vom Sonnenlauf profitiert. Am Fuße der Gebäude haben einige Wohnungen den Vorteil eines großen Gartenbereichs, der mit einer Vegetation aus einheimischen Arten geschmückt ist. Unter den 35 Wohnungen, die zur Verfügung stehen, wird neben einer großen Vielfalt an Typologien auch eine gewisse atmosphärische Vielfalt geboten, die es den zukünftigen Bewohnern ermöglicht, die seltene Perle zu finden.

Neben den privaten Räumen bietet das Projekt auch kollektive und integrative Räume: einen Spielplatz auf der Lichtung, einen Fitnessbereich mit Blick auf die Landschaft, einen Waldlehrpfad, Entspannungsbereiche entlang des Hauptweges sowie Fahrrad- und Kinderwagenräume. Die gesamte Grundfläche ist der sanften Mobilität gewidmet, die Autos finden ihren Platz in einem einladenden Untergeschoss, das punktuell von natürlichem Licht erhellt wird.

Weitere Informationen unter : parcdestael.ch

Jahr

In Bearbeitung

Entwickelt von

CCHE Nyon SA

Bauherr

NDI EPSILON - p/a Naef Participations Financières

Programm

Eigentumswohnung mit hohem Standard

Auftrag

Direkt

Geschossfläche (BGF)

4'956 m2

Volumen (SIA)

28'450 m3

Realisierung

CCHE Nyon SA

Architecture de CCHE pour le projet Le Parc de Staël à Coppet Suisse

Das Projekt versucht auch, mit einer kühnen und zugleich bescheidenen, nachhaltigen und eleganten Architektur in die Zeit zu passen. In diesem Sinne bestehen die Fassaden aus einer dauerhaften und umweltfreundlichen Verkleidung aus Ziegelsteinen in einem hellen Farbton. Diese Wahl des Materials und der kleinen Module verleiht den Gebäuden auch einen menschlichen Maßstab. Die Fassaden bestehen aus einer widerstandsfähigen Struktur aus CAPO-Ziegeln, um den CO2-Fußabdruck zu minimieren, mit einer Isolierung innerhalb der Ziegel. Die Verglasung und die Geländer sind auf die Farbtöne abgestimmt, was dem Gebäude eine zeitgenössische Eleganz verleiht.

Architecture de CCHE pour le projet Le Parc de Staël à Coppet Suisse

Der Umweltschutz im Rahmen der nachhaltigen Entwicklung wird ebenfalls berücksichtigt. Das Gebäude wird die Anforderungen einer Energiezertifizierung des Typs Minergie-P erreichen. Die Wärmeerzeugung erfolgt über Erdwärmesonden und wird durch die Installation von photovoltaischen Solarpaneelen auf dem Dach ergänzt. Um ein qualitativ hochwertiges Bauwerk zu gewährleisten, das den geltenden Anforderungen entspricht, wurden gemeinsam mit uns Fachingenieure für Struktur, technische Installationen HLKS, Brandschutz, Wärmedämmung, Landschaft und Akustik beauftragt, damit die Durchführung des Projekts ein nachhaltiger Erfolg wird, auf den sowohl die Erbauer als auch die zukünftigen Bewohner stolz sein können.

Architecture de CCHE pour le projet Le Parc de Staël à Coppet Suisse

Plan für den Standort

Architecture de CCHE pour le projet Le Parc de Staël à Coppet Suisse
Architecture de CCHE pour le projet Le Parc de Staël à Coppet Suisse
Architecture de CCHE pour le projet Le Parc de Staël à Coppet Suisse

Musterstockwerkpläne: Gebäude A, Gebäude B, Gebäude C

Zurück zu Projekte