La Maison du Léman

Nyon

Située dans un quartier de villas, la parcelle en pente s’ouvre sur une magnifique vue sur le lac et les Alpes. Pour profiter au mieux du panorama à couper le souffle et de l’orientation du soleil, le projet de deux habitations mitoyennes Minergie a trouvé sa forme dans un jeu d’imbrication subtile.

Année

2014

Développé par

CCHE Nyon SA (ex-SUARD-CCHE Architecture SA)

Maître de l'ouvrage

Client privé

Programme

Maison mitoyenne Minergie

Surface (SBP)

480 m²

Volume (SIA)

2'900 m³

Réalisation

CCHE Nyon SA (ex-SUARD-CCHE Architecture SA)

Architecture de CCHE de la Maison du Léman Suisse

Le niveau de l’entrée ouvert sur le séjour offre de vastes espaces prolongés d’une belle terrasse en bois, face au Mont Blanc.

Architecture de CCHE de la Maison du Léman Suisse
Architecture de CCHE de la Maison du Léman Suisse
Architecture de CCHE de la Maison du Léman Suisse

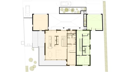
La première maison se développe sur deux niveaux. Le niveau de l’entrée ouvert sur le séjour, offre de vastes espaces prolongés d’une belle terrasse en bois, face au Mont Blanc. L’escalier en serrurerie métallique noir aéré, longeant une grande bibliothèque sur deux niveaux, joue le rôle de liaison entre l’espace jour et l’espace chambres à coucher enfants, de plain-pied avec le jardin.

La deuxième maison se développe sur trois niveaux. L’espace à vivre en attique s’ouvre sur une somptueuse terrasse avec une vue incroyable sur le petit lac. La circulation verticale est traitée avec une grande importance. Escalier droit, avec structure inox et marches en bois laissant passer la lumière sur les trois niveaux de la cage. A l’étage intermédiaire se trouve l’entrée et la suite parentale.

Architecture de CCHE de la Maison du Léman Suisse

Le souhait du Maître d'ouvrage était de vivre dans une maison toute en bois. Le choix de construction s’est donc porté sur une maison en ossature bois préfabriquée. Les façades sont revêtues d’un bardage bois avec traitement pré-grisé qui unifie les trois niveaux et qui fait ressortir les éléments en porte-à-faux des couverts. Le traitement des couleurs et matériaux est traité dans un camaïeu de gris-taupe qui se veut très doux.

Architecture de CCHE de la Maison du Léman Suisse

Cet escalier offre autant un rôle de circulation, qu’un rôle où l’on marque un arrêt pour feuilleter un livre.

Architecture d'intérieur de CCHE de la Maison du Léman Suisse
Architecture d'intérieur de CCHE de la Maison du Léman Suisse
Architecture d'intérieur de CCHE de la Maison du Léman Suisse
Architecture d'intérieur de CCHE de la Maison du Léman Suisse
Architecture d'intérieur de CCHE de la Maison du Léman Suisse
Plan de CCHE de la Maison du Léman Suisse
Plan de CCHE de la Maison du Léman Suisse
Plan de CCHE de la Maison du Léman Suisse
Retour aux projets