Fiduciaire Favre

Lausanne

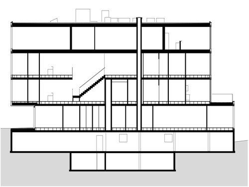
Le bâtiment prend sa forme au gré de ses différents retraits ou saillies, en fonction des terrasses ou de l’accès qui se situe sous un porte-à-faux de 3.60 m.

La façade, exécutée en éléments préfabriqués, permet une régulation individuelle du rapport à la lumière naturelle, aux sons de la ville et à la température. Cette façade associe les deux affectations requises par le bâtiment, bureaux sur deux étages et appartements au dernier étage. Par des ouvertures régulières, l’intérieur des bureaux, exécuté au moyen de matériaux classiques (chêne, aluminium et verre), permet une interaction du regard et tisse des liens visuels, aussi bien entre les collaborateurs, qu’avec l’extérieur.

La construction a été réalisée en seulement 14 mois, grâce notamment à la préfabrication des éléments et des dalles actives, ce qui a permis d’intégrer un maximum d’éléments techniques dans le béton et de générer un gain de temps important au second œuvre.

Année

2007

Développé par

CCHE Lausanne SA

Maître de l'ouvrage

Fiduciaire Favre Immobilier SA

Programme

Bâtiment administratif avec logements et parking souterrain.

Surface (SBP)

2'188 m²

Volume (SIA)

11'181 m³

Réalisation

CCHE Lausanne SA

Architecture de CCHE pour le bâtiment administratif Fiduciaire Favre Suisse de Lausanne
Architecture de CCHE pour le bâtiment administratif Fiduciaire Favre Suisse de Lausanne
Architecture de CCHE pour le bâtiment administratif Fiduciaire Favre Suisse de Lausanne
Architecture de CCHE pour le bâtiment administratif Fiduciaire Favre Suisse de Lausanne
Architecture de CCHE pour le bâtiment administratif Fiduciaire Favre Suisse de Lausanne
Architecture de CCHE pour le bâtiment administratif Fiduciaire Favre Suisse de Lausanne
Architecture de CCHE pour le bâtiment administratif Fiduciaire Favre Suisse de Lausanne
Architecture de CCHE pour le bâtiment administratif Fiduciaire Favre Suisse de Lausanne
Retour aux projets