Fiduciaire Favre

Lausanne

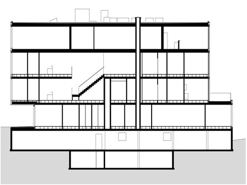
Die Form des Gebäudes ergibt sich aus den verschiedenen Rücksprüngen oder Vorsprüngen, je nach den Terrassen oder dem Zugang, der sich unter einem 3,60 m hohen Überhang befindet.

Die aus vorgefertigten Elementen gefertigte Fassade ermöglicht eine individuelle Regulierung hinsichtlich des Einfalls von natürlichem Licht, der Geräuschkulisse der Stadt und der Temperatur. Diese Fassade vereint die beiden Nutzungszwecke des Gebäudes: Büros auf zwei Etagen und Wohnungen im obersten Stockwerk. Durch regelmäßige Öffnungen ermöglicht das Innere der Büros, das mit klassischen Materialien (Eiche, Aluminium und Glas) gestaltet wurde, eine Interaktion der Blicke und stellt visuelle Verbindungen her, sowohl zwischen den Mitarbeitern als auch mit der Außenwelt.

Die Bauarbeiten wurden in nur 14 Monaten abgeschlossen, insbesondere dank der vorgefertigten Elemente und der Aktivplatten, wodurch ein Maximum an technischen Elementen in den Beton integriert werden konnte und ein erheblicher Zeitgewinn beim Ausbau erzielt wurde.

Jahr

2007

Entwickelt von

CCHE Lausanne SA

Bauherr

Fiduciaire Favre Immobilier SA

Programm

Verwaltungsgebäude mit Wohnungen und Tiefgarage.

Geschossfläche (BGF)

2.188 m²

Volumen (SIA)

11.181 m³

Realisierung

CCHE Lausanne SA

Architecture de CCHE pour le bâtiment administratif Fiduciaire Favre Suisse de Lausanne
Architecture de CCHE pour le bâtiment administratif Fiduciaire Favre Suisse de Lausanne
Architecture de CCHE pour le bâtiment administratif Fiduciaire Favre Suisse de Lausanne
Architecture de CCHE pour le bâtiment administratif Fiduciaire Favre Suisse de Lausanne
Architecture de CCHE pour le bâtiment administratif Fiduciaire Favre Suisse de Lausanne
Architecture de CCHE pour le bâtiment administratif Fiduciaire Favre Suisse de Lausanne
Architecture de CCHE pour le bâtiment administratif Fiduciaire Favre Suisse de Lausanne
Architecture de CCHE pour le bâtiment administratif Fiduciaire Favre Suisse de Lausanne
Zurück zu Projekte