Büros CCHE Nyon AG

Nyon

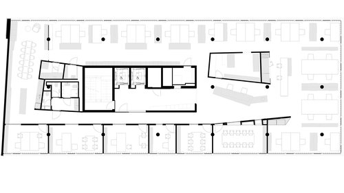
Inneneinrichtung eines neuen modernen und funktionellen Arbeitstools für das CCHE-Büro in Nyon. Die verschiedenen Arbeitsräume, die nach Maß für die Tochterfirma der CCHE-Gruppe in Nyon entwickelt wurden, befinden sich auf einer großen offenen Plattform, und fördern die Interaktion. Das Ambiente ist ruhig und behaglich „wie zu Hause“ und lässt viel Raum für Rohmaterialien und warme Grau- und Weißtöne. Das Büro befindet sich in der Nummer 9 des von CCHE errichteten Gebäudekomplexes „Les Résidences du Parc“ in der Rue de la Morâche in Nyon.

Jahr

2014

Entwickelt von

CCHE Lausanne SA

Bauherr

CCHE Nyon SA

Typologie

Innenausstattung

Geschossfläche (BGF)

470 qm

Volumen (SIA)

1.200 m³

Realisierung

CCHE Nyon SA (ex-SUARD-CCHE Architecture SA)

Architecture d'intérieur de CCHE pour le bureau de CCHE Nyon SA Suisse

Zwischen der Südfassade und dem zentralen Kern wurde ein Trennelement integriert, um einen Verteilungskorridor zu den geschlossenen Büros und Konferenzräumen zu schaffen. Es ist auf einer Seite mit lackierten Holzleisten verkleidet, die bis zur Decke reichen und sowohl eine ästhetische als auch technische Funktion haben. Dank seiner Zusammensetzung ermöglicht das Element die Schallabsorption und Integration der Haustechnik, die so unsichtbar in die geschlossenen Konferenzräume und Büros verteilt wird.

Architecture d'intérieur de CCHE pour le bureau de CCHE Nyon SA Suisse

Die freundliche Atmosphäre und die Anordnung der verschiedenen Bürobereiche auf einem großen Plateau fördern den Austausch, der bei der Arbeit eines Architekten sehr wichtig ist. Dieser offene, sehr gepflegte und avantgardistische Raum zeugt von dem Know-how von CCHE und ihrem Bemühen um Transparenz gegenüber ihren Kunden. Die Open-Space-Büros sind auf einem rohen Plateau mit einem großen zentralen Kern verteilt, der die vertikalen Zirkulationen einschließt.

Architecture d'intérieur de CCHE pour le bureau de CCHE Nyon SA Suisse
Architecture d'intérieur de CCHE pour le bureau de CCHE Nyon SA Suisse
Architecture d'intérieur de CCHE pour le bureau de CCHE Nyon SA Suisse
Architecture d'intérieur de CCHE pour le bureau de CCHE Nyon SA Suisse
Architecture d'intérieur de CCHE pour le bureau de CCHE Nyon SA Suisse
Architecture d'intérieur de CCHE pour le bureau de CCHE Nyon SA Suisse
Architecture d'intérieur de CCHE pour le bureau de CCHE Nyon SA Suisse
Architecture d'intérieur de CCHE pour le bureau de CCHE Nyon SA Suisse
Architecture d'intérieur de CCHE pour le bureau de CCHE Nyon SA Suisse
Zurück zu Projekte