Bourg 8

Lausanne

Innerer und äußerer Umbau zweier denkmalgeschützter Gebäude in der Rue de Bourg in Lausanne

Jahr

2017

Entwickelt von

CCHE Lausanne SA

Bauherr

Newport Bau AG

Typologie

Transformation

Programm

Innen- und Außenumbau zweier Gebäude

Geschossfläche (BGF)

656 qm

Volumen (SIA)

5.731 m³

Transformation et Rénovation de CCHE d'un bâtiment à la rue de Bourg à Lausanne Suisse
Transformation et Rénovation de CCHE d'un bâtiment à la rue de Bourg à Lausanne Suisse

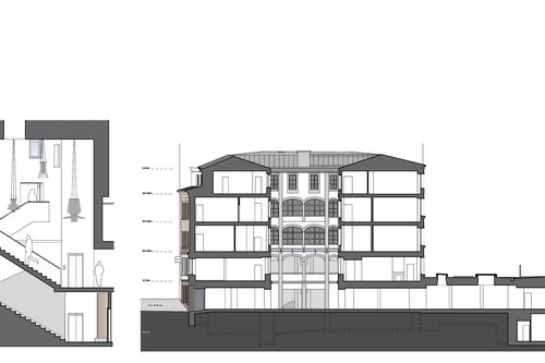
Ursprünglich bestand das bestehende Gebäude in der Rue de Bourg 8 aus zwei kleinen dreistöckigen Gebäuden, die im Jahre 1637 zusammengefügt wurden. Im Jahre 1746 wurden sie um ein Stockwerk erhöht und vollständig repariert.

Die Fassade an der Straße, wie auch das Innere, hat seit dem 18. Jahrhundert im Erdgeschoss und im 1. Stock zahlreiche Veränderungen erfahren, insbesondere die Schaffung einer Bodenplatte, die den Innenhof bedeckt und von 2 Geschäften im Hochparterre.

Das den Eingängen dienende Erdgeschoss der Nordfassade wurde daher völlig neu mit zeitgenössischem Material gestaltet, das sich harmonisch in die erhaltene historische Fassade der Obergeschosse einfügt.

Transformation et Rénovation de CCHE d'un bâtiment à la rue de Bourg à Lausanne Suisse

Die historische zentrale Treppe und ihre Podeste wurden restauriert und der alte Aufzug wurde ausgewechselt und versetzt, um die Vertikalität besser wahrzunehmen.

Transformation et Rénovation de CCHE d'un bâtiment à la rue de Bourg à Lausanne Suisse

Die klare und helle Innenatmosphäre erweckt die erhaltenen und restaurierten Teile wieder zum Leben, die neuen schlichten Elemente wie Verkleidungen, Geländer und Fenster respektieren die Seele des Gebäudes und fügen sich so gut in das Bestehende ein, dass es für den Besucher schwierig ist, sie von den erhaltenen Teilen zu unterscheiden.

Die Reorganisation der Räume und die Neudefinition der Zirkulation war notwendig, um eine große Gewerbefläche von 630 qm auf 2 Ebenen zu schaffen und gleichzeitig den ursprünglichen Charakter des Gebäudes so weit wie möglich zu erhalten und wiederherzustellen. So wurde ein neuer eigener Eingang für den Zugang zum alleinigen Geschäft und zu den Räumlichkeiten in den oberen Stockwerken geschaffen, mit einer neuen Halle und ihrem Treppenhaus auf 2 Ebenen, das mit dem ursprünglichen Treppenhaus verbunden ist.

Die Erneuerung der Räume durch die vollständige Rekonstruktion der südlichen Nebengebäude ohne historischen Wert, die Umstrukturierung der Höhen des Erdgeschosses und des 1. Stockwerks in Verbindung mit der steilen Rue de Bourg und die Einführung neuer HLKK-Techniken hat zu erheblichen baulichen Eingriffen geführt.

Transformation et Rénovation de CCHE d'un bâtiment à la rue de Bourg à Lausanne Suisse
Transformation et Rénovation de CCHE d'un bâtiment à la rue de Bourg à Lausanne Suisse
Zurück zu Projekte