Avenue Général - Guisan

Yverdon-les-Bains

Le projet de rénovation énergétique et de transformation des combles en appartements s’inscrit dans une zone d’habitations situées le long de l’Avenue Général Guisan à Yverdon. Le bâtiment, construit dans les années 1960, comporte 2 accès avec une zone carrossable à l’avant desservant les garages semi-enterrés et un parc arboré à l’arrière.

Les travaux de rénovation énergétique ont inclus l’isolation périphérique des façades, l’isolation au plafond des sous-sols et l’isolation des cages d’escaliers. Ceci a permis de traiter efficacement les différents ponts thermiques de l'enveloppe et ainsi contribuer à une performance énergétique optimisée et un confort accru pour les locataires.

Développé par

CCHE Lausanne SA

Maître de l'ouvrage

Privé

Typologie

Transformation

Programme

Rénovation énergétique et transformation des combles en appartements

Procédure

Appel d'offres

Surface (SBP)

2'400 m2

Volume (SIA)

9'200 m3

Réalisation

CCHE Lausanne SA

Architecture CCHE pour Avenue Général Guisan à Yverdon Suisse
Architecture CCHE pour Avenue Général Guisan à Yverdon Suisse

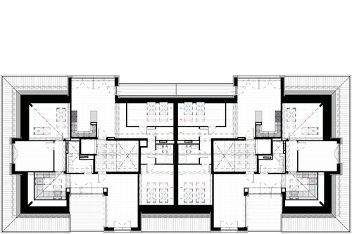
L’ancien toit a été démonté et reconstruit pour faire place à 4 nouveaux appartements en attique, construits en ossature bois et offrant une vue dégagée sur la Thièle et la ville d’Yverdon. Les typologies mises en place ont dû prendre en compte la géométrie complexe de la charpente d’une part et d’autre part les contraintes règlementaires.

Architecture CCHE pour Avenue Général Guisan à Yverdon Suisse
Architecture CCHE pour Avenue Général Guisan à Yverdon Suisse

La transformation des combles en logements est une démarche particulièrement intéressante du point de vue de la valorisation d’un bien car elle optimise l'utilisation du foncier disponible. Ce projet répond ainsi à la demande croissante de logements dans la région.

Les teintes brunes et beiges, couleurs naturelles choisies pour leurs connotations chaudes, se marient harmonieusement avec l'environnement.

Le chantier a été réalisé en un peu plus d’une année, avec les appartements occupés par les locataires pendant toute la durée des travaux.

Architecture CCHE pour Avenue Général Guisan à Yverdon Suisse
Architecture CCHE pour Avenue Général Guisan à Yverdon Suisse
Architecture CCHE pour Avenue Général Guisan à Yverdon Suisse
Architecture CCHE pour Avenue Général Guisan à Yverdon Suisse
Architecture CCHE pour Avenue Général Guisan à Yverdon Suisse
Architecture CCHE pour Avenue Général Guisan à Yverdon Suisse

Plans

Architecture CCHE pour Avenue Général Guisan à Yverdon Suisse

Façade Nord

Architecture CCHE pour Avenue Général Guisan à Yverdon Suisse

Plan des combles

Retour aux projets