Avenue Général - Guisan

Yverdon-les-Bains

Das Projekt zur energetischen Sanierung und zum Ausbau des Dachgeschosses in Wohnungen ist Teil eines Wohngebiets entlang der Avenue Général Guisan in Yverdon. Das in den 1960er Jahren errichtete Gebäude hat zwei Zugänge mit einem befahrbaren Bereich auf der Vorderseite, der die halbunterirdischen Garagen und einen Park mit Bäumen auf der Rückseite bedient.

Die energetische Sanierung umfasste die Perimeterdämmung der Fassaden, die Dämmung an der Kellerdecke und die Dämmung der Treppenhäuser. Dadurch konnten die verschiedenen Wärmebrücken der Gebäudehülle effizient behandelt werden, was zu einer optimierten Energieeffizienz und einem höheren Komfort für die Mieter beitrug.

Entwickelt von

CCHE Lausanne SA

Bauherr

privatkunde

Typologie

Umbau

Programm

Energetische Renovierung und Umbau des Dachgeschosses in Wohnungen

Verfahren

Ausschreibung

Geschossfläche (BGF)

2'400 m2

Volumen (SIA)

9'200 m3

Realisierung

CCHE Lausanne SA

Architecture CCHE pour Avenue Général Guisan à Yverdon Suisse
Architecture CCHE pour Avenue Général Guisan à Yverdon Suisse

Das alte Dach wurde abgetragen und neu aufgebaut, um Platz für vier neue Attikawohnungen zu schaffen, die in Holzrahmenbauweise errichtet wurden und einen freien Blick auf den Fluss Thièle und die Stadt Yverdon bieten. Die eingesetzten Typologien mussten einerseits die komplexe Geometrie des Dachstuhls und andererseits die regulatorischen Auflagen berücksichtigen.

Architecture CCHE pour Avenue Général Guisan à Yverdon Suisse
Architecture CCHE pour Avenue Général Guisan à Yverdon Suisse

Die Umwandlung von Dachböden in Wohnungen ist ein besonders interessanter Ansatz zur Wertsteigerung einer Immobilie, da er die Nutzung des verfügbaren Bodens optimiert. Das Projekt ist somit eine Antwort auf die steigende Nachfrage nach Wohnraum in der Region.

Die Braun- und Beigetöne, natürliche Farben, die aufgrund ihrer warmen Konnotationen gewählt wurden, fügen sich harmonisch in die Umgebung ein.

Die Bauarbeiten wurden in etwas mehr als einem Jahr abgeschlossen, wobei die Wohnungen während der gesamten Bauzeit von den Mietern bewohnt wurden.

Architecture CCHE pour Avenue Général Guisan à Yverdon Suisse
Architecture CCHE pour Avenue Général Guisan à Yverdon Suisse
Architecture CCHE pour Avenue Général Guisan à Yverdon Suisse
Architecture CCHE pour Avenue Général Guisan à Yverdon Suisse
Architecture CCHE pour Avenue Général Guisan à Yverdon Suisse
Architecture CCHE pour Avenue Général Guisan à Yverdon Suisse

Pläne

Architecture CCHE pour Avenue Général Guisan à Yverdon Suisse

Nordfassade

Architecture CCHE pour Avenue Général Guisan à Yverdon Suisse

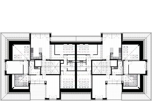
Grundriss des Dachgeschosses

Zurück zu Projekte