Piscine de Marly

16.02.2021 · Actualités

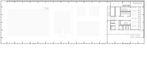
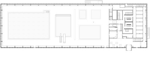
Construction d’une piscine scolaire et publique à l’interface entre le Marly Innovation Center et l’éco-quartier de l’Ancienne papeterie. Le centre nautique devient ainsi la pierre angulaire de ce nouveau quartier. Il comprend un bassin de natation de 25m, un bassin de plongeon, un bassin d’apprentissage à fond mobile, un bassin de massage et des jeux d’eau. En collaboration avec Magizan SA.

Urbanisme et Architecture de CCHE pour la piscine du Quartier de l'Ancienne Papeterie à Marly Suisse
Urbanisme et Architecture de CCHE pour la piscine du Quartier de l'Ancienne Papeterie à Marly Suisse
Urbanisme et Architecture de CCHE pour la piscine du Quartier de l'Ancienne Papeterie à Marly Suisse
Urbanisme et Architecture de CCHE pour la piscine du Quartier de l'Ancienne Papeterie à Marly Suisse
Urbanisme et Architecture de CCHE pour la piscine du Quartier de l'Ancienne Papeterie à Marly Suisse
Retour aux actualités