Schwimmbad Marly

16.02.2021 · Neuigkeiten

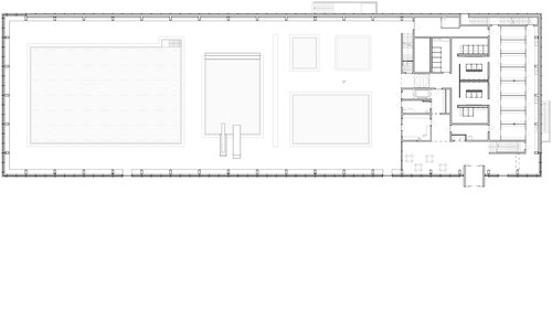
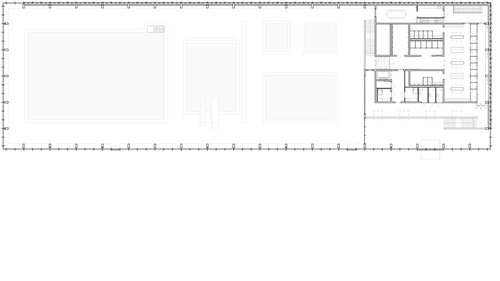
Bau eines Schulschwimmbads mit öffentlichem Zugang an der Schnittstelle zwischen dem Marly Innovation Center und dem Ökoquartier Ancienne Papeterie. Das Wassersportzentrum wird so zum Mittelpunkt des neuen Stadtteils. Es umfasst ein 25m-Schwimmbecken, ein Tauchbecken, ein Trainingsbecken mit beweglichem Boden, ein Massagebecken und Wasserspiele. In Zusammenarbeit mit Magizan SA.

Urbanisme et Architecture de CCHE pour la piscine du Quartier de l'Ancienne Papeterie à Marly Suisse
Urbanisme et Architecture de CCHE pour la piscine du Quartier de l'Ancienne Papeterie à Marly Suisse
Urbanisme et Architecture de CCHE pour la piscine du Quartier de l'Ancienne Papeterie à Marly Suisse
Urbanisme et Architecture de CCHE pour la piscine du Quartier de l'Ancienne Papeterie à Marly Suisse
Urbanisme et Architecture de CCHE pour la piscine du Quartier de l'Ancienne Papeterie à Marly Suisse
Zurück zu den Aktualitäten