Quartier La Pique

Gland

A family-friendly neighbourhood that encourages social interaction

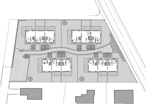
Situated at the top of a hill on the northern edge of the old town, the new district comprises 4 residential units along a pedestrian walkway. The staggered layout of the compact areas gives each unit a view of the Alps and the Jura mountains.

Each dwelling offers 5 habitable rooms on a modular floor plan which is spread over 3 floors. Private car parking is confined to the basement in order to maximise the use of landscaped outdoor areas. The external extensions are carefully designed, with a covered terrace and a palisade entrance.

In view of current energy concerns and the comfort of future users, MINERGIE certification will be achieved. The buildings will be heated by a central district wood-fired boiler, with optional solar panels.

Year

2012

Developed by

CCHE Nyon SA (ex-Suard Architectes SA)

Client

Jacques Suard

Typology

New building

Program

Construction of 12 adjoining MINERGIE villas in 4 groups of 3 units, with underground car park

Floor area (GFA)

1,776 m²

Volume (SIA)

11,192 m³

Realization

CCHE Nyon SA (ex-Suard Architectes SA)

Architecture de CCHE pour le Quartier La Pique à Gland Suisse
Architecture de CCHE pour le Quartier La Pique à Gland Suisse
Architecture de CCHE pour le Quartier La Pique à Gland Suisse
Architecture de CCHE pour le Quartier La Pique à Gland Suisse
Architecture de CCHE pour le Quartier La Pique à Gland Suisse
Architecture de CCHE pour le Quartier La Pique à Gland Suisse
Architecture de CCHE pour le Quartier La Pique à Gland Suisse
Architecture de CCHE pour le Quartier La Pique à Gland Suisse
Architecture de CCHE pour le Quartier La Pique à Gland Suisse
Architecture de CCHE pour le Quartier La Pique à Gland Suisse

Construction

Architecture de CCHE pour le Quartier La Pique à Gland Suisse
Back to projects