Quartier La Pique

Gland

Ein familienfreundliches Quartier, das Begegnungen fördert

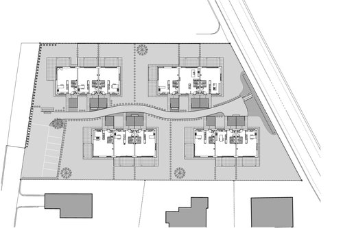
Das neue Viertel liegt auf einem Hügel am nördlichen Rand des alten Dorfes. Es besteht aus vier Wohngebäuden, die entlang eines Fußgängerweges angeordnet sind. Die versetzte Anordnung der kompakten Baukörper ermöglicht jeder Einheit einen Blick auf die Alpen und den Jura.

Jede Wohneinheit bietet 5 Wohnräume auf einem modulierbaren Grundriss, der auf 3 Etagen verteilt ist. Der Parkplatz für Privatfahrzeuge ist auf das Untergeschoss beschränkt, um die begrünten Außenanlagen zu maximieren. Die Außenanlagen sind gepflegt und werden von einer überdachten Terrasse und einer Eingangspalisade begleitet.

Aus Rücksicht auf die aktuellen energetischen Bedenken und den Komfort der zukünftigen Nutzer wird die MINERGIE-Zertifizierung erreicht. Die Gebäude werden von einem zentralen Holzkessel des Quartiers beheizt und optional mit Sonnenkollektoren ausgestattet.

Jahr

2012

Entwickelt von

CCHE Nyon SA (ex-Suard Architectes SA)

Bauherr

Jacques Suard

Typologie

Neubau

Programm

Bau von 12 MINERGIE-Reihenhäusern in 4 Gruppen à 3 Einheiten, mit Tiefgarage.

Geschossfläche (BGF)

1.776 m²

Volumen (SIA)

11.192 m³

Realisierung

CCHE Nyon SA (ex-Suard Architectes SA)

Architecture de CCHE pour le Quartier La Pique à Gland Suisse
Architecture de CCHE pour le Quartier La Pique à Gland Suisse
Architecture de CCHE pour le Quartier La Pique à Gland Suisse
Architecture de CCHE pour le Quartier La Pique à Gland Suisse
Architecture de CCHE pour le Quartier La Pique à Gland Suisse
Architecture de CCHE pour le Quartier La Pique à Gland Suisse
Architecture de CCHE pour le Quartier La Pique à Gland Suisse
Architecture de CCHE pour le Quartier La Pique à Gland Suisse
Architecture de CCHE pour le Quartier La Pique à Gland Suisse
Architecture de CCHE pour le Quartier La Pique à Gland Suisse

Konstruktion

Architecture de CCHE pour le Quartier La Pique à Gland Suisse
Zurück zu Projekte