Quartier Ancienne Papeterie - Piscine de Marly

Marly

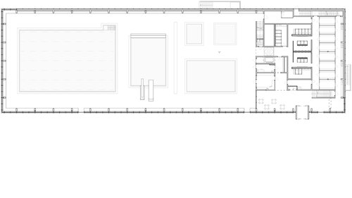
The public and school aquatic centre in Marly includes a 25m swimming pool, a diving pool, an adjustable depth learning pool, a massage pool and a water play area.

Built within the eco-neighbourhood of Ancienne Papeterie, the Marly swimming pool has the Minergie-P label.

Developed by

CCHE Lausanne SA

Client

Marly Piscine SA

Typology

Public swimming pool

Program

Construction of a school and public aquatic centre

Procedure

Call for tenders

Floor area (GFA)

4837 m2

Volume (SIA)

30,690 m3

Realization

CCHE Lausanne SA

Architecture et Direction de travaux de CCHE pour la piscine de Marly Suisse
Actualité de CCHE pour l'inauguration de la piscine de Marly
Actualité de CCHE pour l'inauguration de la piscine de Marly
Actualité de CCHE pour l'inauguration de la piscine de Marly
Architecture et Direction de travaux de CCHE pour la piscine de Marly Suisse
Architecture et Direction de travaux de CCHE pour la piscine de Marly Suisse
Architecture et Direction de travaux de CCHE pour la piscine de Marly Suisse
Architecture et Direction de travaux de CCHE pour la piscine de Marly Suisse
Architecture et Direction de travaux de CCHE pour la piscine de Marly Suisse
Actualité de CCHE pour l'inauguration de la piscine de Marly
Actualité de CCHE pour l'inauguration de la piscine de Marly
Actualité de CCHE pour l'inauguration de la piscine de Marly
Actualité de CCHE pour l'inauguration de la piscine de Marly
Actualité de CCHE pour l'inauguration de la piscine de Marly
Actualité de CCHE pour l'inauguration de la piscine de Marly

Plans and 3D image of the project

Urbanisme et Architecture de CCHE pour la piscine du Quartier de l'Ancienne Papeterie à Marly Suisse
Urbanisme et Architecture de CCHE pour la piscine du Quartier de l'Ancienne Papeterie à Marly Suisse
Urbanisme et Architecture de CCHE pour la piscine du Quartier de l'Ancienne Papeterie à Marly Suisse
Urbanisme et Architecture de CCHE pour la piscine du Quartier de l'Ancienne Papeterie à Marly Suisse
Back to projects