Migros Fitnessparc

Malley

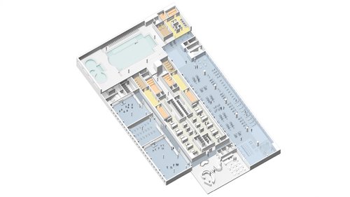
The FitnessParc is located in the multifunctional building of Malley-Lumières, since its opening in 2001. Between shopping malls, office space and cinemas, the center occupies more than 4'000 m2.

The transformation project led by CCHE reorganizes and optimizes the distribution of the different spaces and clarifies the internal traffic flows. In the end, the fitness area is enlarged, as well as the three classrooms. The new layout of the changing rooms offers greater flexibility of use and gains in fluidity. Saunas, hammams and relaxation areas are integrated into the rooms. On the first floor, next to the swimming pool, a new mixed wellness area brings together various wellness facilities.

The project plays with a simple, sober and elegant materiality. From luminous and pure white to intimate black, the shades of grey vary and contrast, forming a unitary and coherent whole. The spaces are enlivened by the multiple colors of the material and sportswear worn and staged by the users...

The FitnessParc remained open during the 22 weeks of construction.

Year

2015

Developed by

CCHE Lausanne SA

Client

Migros Vaud société coopérative

Program

fitness room, classrooms, changing rooms, wellness facilities

Floor area (GFA)

4,150 m²

Volume (SIA)

16,100 m³

Realization

CCHE Lausanne SA

Architecture d'intérieur pour le Migros FitnessParc de Malley Suisse
Architecture d'intérieur pour le Migros FitnessParc de Malley Suisse
Architecture d'intérieur pour le Migros FitnessParc de Malley Suisse
Architecture d'intérieur pour le Migros FitnessParc de Malley Suisse
Architecture d'intérieur pour le Migros FitnessParc de Malley Suisse
Architecture d'intérieur pour le Migros FitnessParc de Malley Suisse
Architecture d'intérieur pour le Migros FitnessParc de Malley Suisse
Architecture d'intérieur pour le Migros FitnessParc de Malley Suisse
Architecture d'intérieur pour le Migros FitnessParc de Malley Suisse
Architecture d'intérieur pour le Migros FitnessParc de Malley Suisse
Architecture d'intérieur pour le Migros FitnessParc de Malley Suisse
Back to projects