Q11 - "Les Chênes de Renens"

Renens

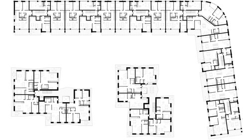
The three housing buildings on the Chemin du Chêne are organised around a tree-lined courtyard. A real haven of peace contrasting with the industrial context of the south of Renens, it offers a place of sharing and relaxation for the inhabitants with its adjoining common room.

The three covered passages, animated by the windows of the community laundry-lounges, mark the entrances to the main building and allow access to the two similar buildings located in the courtyard. These are organised by distributive corridors, favouring the exchange of inhabitants.

The diversity of the 175 flats in terms of size and typology (through-houses, duplexes with workshops, LUPs, flats on corridors) encourages a social and intergenerational mix.

Resolutely sustainable, the project proposes a careful social approach through its many interior and exterior shared spaces, and an environmental approach through Minergie certification and the proposed eco-mobility.

Year

Ongoing

Developed by

CCHE Lausanne SA

Client

Q11 AG

Program

Housing

Floor area (GFA)

17'622 m2

Volume (SIA)

88'055 m3

Area

7'987 m2

Density

IUS 2.2

Urbanisme et architecte de CCHE pour Q11 - Les Chênes de Renens

Inspired by the industrial context, the architecture proposes an orthogonal grid in prefabricated concrete which is transformed in the courtyard to keep only the horizontal of the balconies.

Urbanisme et architecte de CCHE pour Q11 - Les Chênes de Renens
Urbanisme et architecte de CCHE pour Q11 - Les Chênes de Renens
Urbanisme et architecte de CCHE pour Q11 - Les Chênes de Renens
Urbanisme et architecte de CCHE pour Q11 - Les Chênes de Renens
Urbanisme et architecte de CCHE pour Q11 - Les Chênes de Renens
Urbanisme et architecte de CCHE pour Q11 - Les Chênes de Renens
Urbanisme et architecte de CCHE pour Q11 - Les Chênes de Renens
Urbanisme et architecte de CCHE pour Q11 - Les Chênes de Renens
Urbanisme et architecte de CCHE pour Q11 - Les Chênes de Renens
Urbanisme et architecte de CCHE pour Q11 - Les Chênes de Renens
Urbanisme et architecte de CCHE pour Q11 - Les Chênes de Renens
Back to projects