Collège du Mottier B

Mont-sur-Lausanne

Located in Mont-sur-Lausanne, the Collège du Mottier is a primary and secondary education facility. The school comprises numerous irregularly arranged cubic buildings that form an architectural entity in its own right. Building B was originally constructed in 1977 by the architect Frédéric Brugger, a co-founder of CCHE. The aim of the project is to increase the site's capacity and modernize the building to meet current standards in terms of energy performance, user comfort, fire safety, accessibility for people with reduced mobility, and general safety.

Rather than demolish and rebuild, it was decided to raise the building by two levels, a solution that was both economical and environmentally friendly as it allowed considerable savings in terms of materials. In addition, the original structure offered sufficient flexibility for conversion.

The decision to raise the building was made on the basis of the modularity of the original structure, designed according to the CROCS (Centre de Rationalisation et d'Organisation des Constructions Scolaires) principle, a model developed in the 1960s and 1970s. This design is based on a metal framework, mixed floors (ribbed sheet metal and concrete) and non-load-bearing partitions. Even 50 years after the initial construction, these factors offer great adaptability.

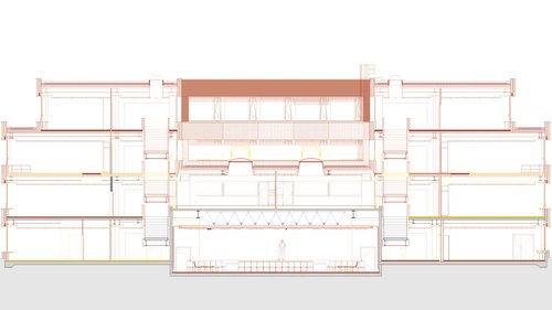
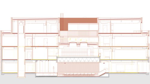
The building has a square floor plan with a two-level patio, providing generous natural lighting for the classrooms and a smooth flow of traffic. The central areas include the teachers' lounge (illuminated with skylights) and the auditorium which can accommodate up to 250 people.

Year

2024

Developed by

CCHE Lausanne SA

Client

Commune of Mont-sur-Lausanne

Typology

Transformation
Raising

Program

22 classrooms, science, visual arts and crafts rooms, offices, secretariat
Auditorium for 250 people

Floor area (GFA)

6'978 m²

Volume (SIA)

26'993 m³

Collaboration

General contractors:
EDIFEA
SIEMENS

Architecture de CCHE pour le collège Mottier B Suisse

Facade in sheet metal, punctuated by various folds

Architecture de CCHE pour le collège Mottier B Suisse
Architecture de CCHE pour le collège Mottier B Suisse
Architecture de CCHE pour le collège Mottier B Suisse

Exposed structural elements

Building B is now home to 22 classrooms and a number of specialized areas, such as science, visual arts, IT and craft workshops. The building also includes offices for the principal, deans, and secretariat, as well as a resource area comprising a mediation and school guidance center and an infirmary.

The materials chosen aim to create a harmonious, contemporary atmosphere conducive to teaching: wood wool ceiling panels, oak doors, OSB furniture with a white glaze finish, and monochrome linoleum flooring.

In the circulation areas, the building's metal framework remains visible, and is covered in white intumescent paint that helps to create a calm, uncluttered atmosphere.

Architecture de CCHE pour le collège Mottier B Suisse
Architecture de CCHE pour le collège Mottier B Suisse

Circulation areas

Architecture de CCHE pour le collège Mottier B Suisse

Classroom with integrated furniture

Architecture de CCHE pour le collège Mottier B Suisse
Architecture de CCHE pour le collège Mottier B Suisse
Architecture de CCHE pour le collège Mottier B Suisse

Signage

Architecture de CCHE pour le collège Mottier B Suisse

The signage at Collège du Mottier B was designed and made to measure by CCHE. Each element has been designed to ensure intuitive orientation throughout the building, while blending harmoniously with the overall project aesthetics.

This approach ensures perfect legibility while reinforcing the building's visual identity, while simultaneously contributing to a fluid user experience tailored to individual needs.

Architecture de CCHE pour le collège Mottier B Suisse
Architecture de CCHE pour le collège Mottier B Suisse
Architecture de CCHE pour le collège Mottier B Suisse

Privatization of space and glazing covered with a sandblasted film

Architecture de CCHE pour le collège Mottier B Suisse
Architecture de CCHE pour le collège Mottier B Suisse
Architecture de CCHE pour le collège Mottier B Suisse

Signage with stainless steel elements

Architecture de CCHE pour le collège Mottier B Suisse
Architecture de CCHE pour le collège Mottier B Suisse

Plans

Architecture de CCHE pour le collège Mottier B Suisse
Architecture de CCHE pour le collège Mottier B Suisse
Architecture de CCHE pour le collège Mottier B Suisse
Architecture de CCHE pour le collège Mottier B Suisse

Building facades

Architecture de CCHE pour le collège Mottier B Suisse
Architecture de CCHE pour le collège Mottier B Suisse

Building sections

Back to projects