Collège du Mottier B

Mont-sur-Lausanne

Das Collège du Mottier befindet sich in Mont-sur-Lausanne und ist der Grund- und Sekundarschulbildung gewidmet. Die Schule besteht aus mehreren Gebäuden mit kubischem Volumen, die unregelmäßig angeordnet sind und ein architektonisches Ensemble bilden. Das Gebäude B wurde ursprünglich 1977 von dem Architekten Frédéric Brugger, dem historischen Mitbegründer von CCHE, errichtet. Das Projekt zielt darauf ab, die Aufnahmekapazität des Standorts zu erhöhen und das Gebäude zu modernisieren, um den aktuellen Standards in Bezug auf Energieeffizienz, Nutzerkomfort, Brandschutz, Zugänglichkeit für Personen mit eingeschränkter Mobilität und allgemeine Sicherheit zu entsprechen.

Anstatt das Gebäude abzureißen und neu zu bauen, wurde beschlossen, es um zwei Stockwerke zu erhöhen - eine sowohl wirtschaftliche als auch umweltfreundliche Lösung, die es ermöglichte, Materialien einzusparen. Die ursprüngliche Struktur bietet zudem genügend Flexibilität, um einen Umbau in Betracht zu ziehen.

Die Entscheidung, das Gebäude aufzustocken, war aufgrund der Modularität der ursprünglichen Struktur sinnvoll, die nach dem CROCS-Prinzip (Centre de Rationalisation et d'Organisation des Constructions Scolaires) entworfen wurde, einem Modell, das in den 1960er und 1970er Jahren entwickelt wurde. Dieses Konzept beruht auf einem Stahlskelett, Verbunddecken (Riffelblech und Beton) und nicht tragenden Trennwänden, wodurch eine hohe Anpassungsfähigkeit auch 50 Jahre nach dem Bau gewährleistet wird.

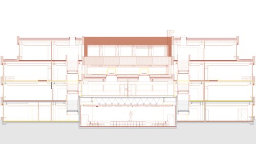
Das Gebäude hat einen quadratischen Grundriss mit einem Innenhof auf zwei Ebenen, was eine großzügige natürliche Beleuchtung der Klassenräume und eine fließende Zirkulation begünstigt. In den zentralen Räumen befinden sich das von oben beleuchtete Lehrerzimmer und die Aula mit Platz für bis zu 250 Personen.

Jahr

2024

Entwickelt von

CCHE Lausanne SA

Bauherr

Gemeinde Mont-sur-Lausanne

Typologie

Umbau
Aufstockung

Programm

22 Klassenzimmer, Räume für Naturwissenschaften, Bildnerisches Gestalten und Handarbeit, Büros, Sekretariat
Aula für 250 Personen

Geschossfläche (BGF)

6'978 m²

Volumen (SIA)

26'993 m³

Zusammenarbeit

Generalunternehmen:
EDIFEA
SIEMENS

Architecture de CCHE pour le collège Mottier B Suisse

Fassade aus Metallblech, rhythmisiert durch verschiedene Faltungen

Architecture de CCHE pour le collège Mottier B Suisse
Architecture de CCHE pour le collège Mottier B Suisse
Architecture de CCHE pour le collège Mottier B Suisse

Sichtbare strukturelle Elemente

Das Gebäude B beherbergt nun 22 Klassenzimmer und mehrere Fachbereiche, wie z. B. Räume für Naturwissenschaften, visuelle Kunst, Informatik und Handarbeitsräume. Das Gebäude umfasst außerdem die Büros der Schulleitung, der Dekane, ein Sekretariat sowie einen Ressourcenbereich, der einen Raum für Mediation, Bildungsberatung und eine Krankenstation umfasst.

Die gewählten Materialien sollen eine harmonische und zeitgemäße Atmosphäre schaffen, die dem Unterricht förderlich ist: Holzwolleplatten an der Decke, Eichentüren, Möbel aus OSB mit weißer Lasuroberfläche, einfarbiger Linoleumboden.

In den Zirkulationsbereichen bleibt das Metallskelett des Gebäudes sichtbar, das mit einer weißen intumeszierenden Farbe überzogen ist, die zu einer ruhigen und reinen Atmosphäre beiträgt.

Architecture de CCHE pour le collège Mottier B Suisse
Architecture de CCHE pour le collège Mottier B Suisse

Bereiche der Zirkulation

Architecture de CCHE pour le collège Mottier B Suisse

Klassenzimmer mit integrierten Möbeln

Architecture de CCHE pour le collège Mottier B Suisse
Architecture de CCHE pour le collège Mottier B Suisse
Architecture de CCHE pour le collège Mottier B Suisse

Beschilderung

Architecture de CCHE pour le collège Mottier B Suisse

Die Beschilderung des Collège du Mottier B wurde von CCHE entworfen und maßgefertigt. Jedes Element wurde so konzipiert, dass es eine intuitive Orientierung durch das Gebäude gewährleistet und sich gleichzeitig harmonisch in die Gesamtästhetik des Projekts einfügt.

Dieser Ansatz gewährleistet eine perfekte Lesbarkeit und stärkt gleichzeitig die visuelle Identität der Einrichtung, was zu einer flüssigen und an die Bedürfnisse der Nutzer angepassten Nutzererfahrung beiträgt.

Architecture de CCHE pour le collège Mottier B Suisse
Architecture de CCHE pour le collège Mottier B Suisse
Architecture de CCHE pour le collège Mottier B Suisse

Privatisierung von Räumen und Belebung der Verglasung mit einer Sandstrahlfolie

Architecture de CCHE pour le collège Mottier B Suisse
Architecture de CCHE pour le collège Mottier B Suisse
Architecture de CCHE pour le collège Mottier B Suisse

Beschilderung mit Elementen aus rostfreiem Stahl

Architecture de CCHE pour le collège Mottier B Suisse
Architecture de CCHE pour le collège Mottier B Suisse

Pläne

Architecture de CCHE pour le collège Mottier B Suisse
Architecture de CCHE pour le collège Mottier B Suisse
Architecture de CCHE pour le collège Mottier B Suisse
Architecture de CCHE pour le collège Mottier B Suisse

Fassaden des Gebäudes

Architecture de CCHE pour le collège Mottier B Suisse
Architecture de CCHE pour le collège Mottier B Suisse

Schnitte des Gebäudes

Zurück zu Projekte